U gebruikt een verouderde internetbrowser.
We raden u aan om de meest recente internetbrowser te installeren voor de beste weergave van deze website.
Een internetbrowser die up to date is, staat ook garant voor veilig surfen.

Helaas, dit pand is verkocht

3620 Lanaken

Omschrijving

IN OPTIE ! RUIM APPARTEMENT MET 3 SLPKS + 2 BADKAMERS OP EEN GUNSTIGE LOCATIE !

IN OPTIE ! RUIM APPARTEMENT MET 3 SLPKS + 2 BADKAMERS OP EEN GUNSTIGE LOCATIE !

We treffen dit appartement aan in residentie 'Heihoeven' in de gemeente Lanaken. Het appartement, gelegen op de eerste verdieping, werd in 2004 gebouwd waardoor het een frisse en moderne uitstraling heeft.
Het pand is gelegen op fietsafstand van het centrum van Lanaken. Zowel scholen, de bibliotheek en winkels bevinden zich in de nabije omgeving.
Eveneens zijn de E314 en omliggende steden zoals Zutendaal, Maasmechelen en Maastricht van hieruit vlot bereikbaar.

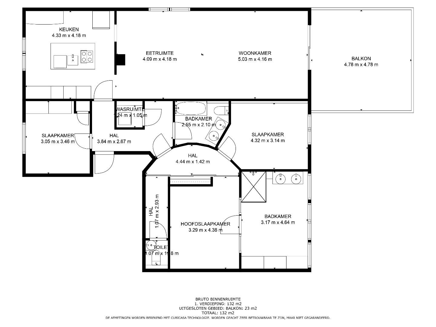
INDELING

U komt binnen via de inkomhal, dewelke toegang verleent naar de diverse ruimtes.
Het appartement is voorzien van een riante leefruimte van maar liefst +/- 38 m², in deze ruimte zijn er veel ramen aanwezig waardoor er een overvloed aan natuurlijk licht binnenstroomt. De woonkamer beschikt over een elektrische haard en verleent bovendien toegang naar het zuid-westelijk georiënteerde balkon.
Aansluitend aan de eetkamer bevindt zich de keuken, dewelke voorzien is van een inductiekookplaat, koelkast, ingebouwd afwasmachine, oven en magnetron.

In het appartement zijn er 3 slaapkamers aanwezig. De masterbedroom beschikt over een eigen badkamer met een dubbele lavabo, douche en voldoende bergruimte. In de tweede badkamer is er een dubbele lavabo, bad en toilet aanwezig.

Het appartement wordt verkocht met een eigen carport, deze is langs het gebouw gesitueerd.
Daarnaast werden er recentelijk 9 zonnepanelen op het dak geïnstalleerd.
Er zijn bovendien automatische rolluiken aanwezig, deze bieden extra privacy en bescherming tegen de zon.

Enkele PLUSPUNTEN van deze woning opgelijst:
+ Instapklaar !
+ Fietsafstand van centrum Lanaken !
+ Rolluiken !
+ Zonnepanelen !
+ Energiezuinig, label A !
+ Elektriciteit conform !
+ Carport !

Voor meer info of een bezoek ter plaatse kan u ons contacteren via info@sterkvastgoedmakelaars.be of bel ons op +32(0)89-308888.


Niet gevonden wat u zocht? Schrijf u dan vrijblijvend in en blijf op de hoogte van ons recentste aanbod.
Schrijf u in
Terug naar boven
Sluit menu STERK vastgoedmakelaars