U gebruikt een verouderde internetbrowser.
We raden u aan om de meest recente internetbrowser te installeren voor de beste weergave van deze website.
Een internetbrowser die up to date is, staat ook garant voor veilig surfen.

Helaas, dit pand is verkocht

3620 Lanaken

Omschrijving

GELIJKVLOERS NIEUWBOUWAPPARTEMENT MET PRIVÉ TUIN IN HARTJE LANAKEN !

GELIJKVLOERS NIEUWBOUWAPPARTEMENT MET PRIVÉ TUIN IN HARTJE LANAKEN !

We vinden dit kwalitatief nieuwbouwappartement terug in 'Residentie Tulleners' op een toplocatie in het centrum van Lanaken. Het appartement ligt op wandelafstand van het bruisend centrum van Lanaken. Hier bevinden zich alle faciliteiten zoals scholen, het Cultureel Centrum, de bioscoop, winkels, horeca, het openbaar vervoer en zoveel meer...
Bovendien is deze locatie slechts op fietsafstand van het centrum van Maastricht vandaan.

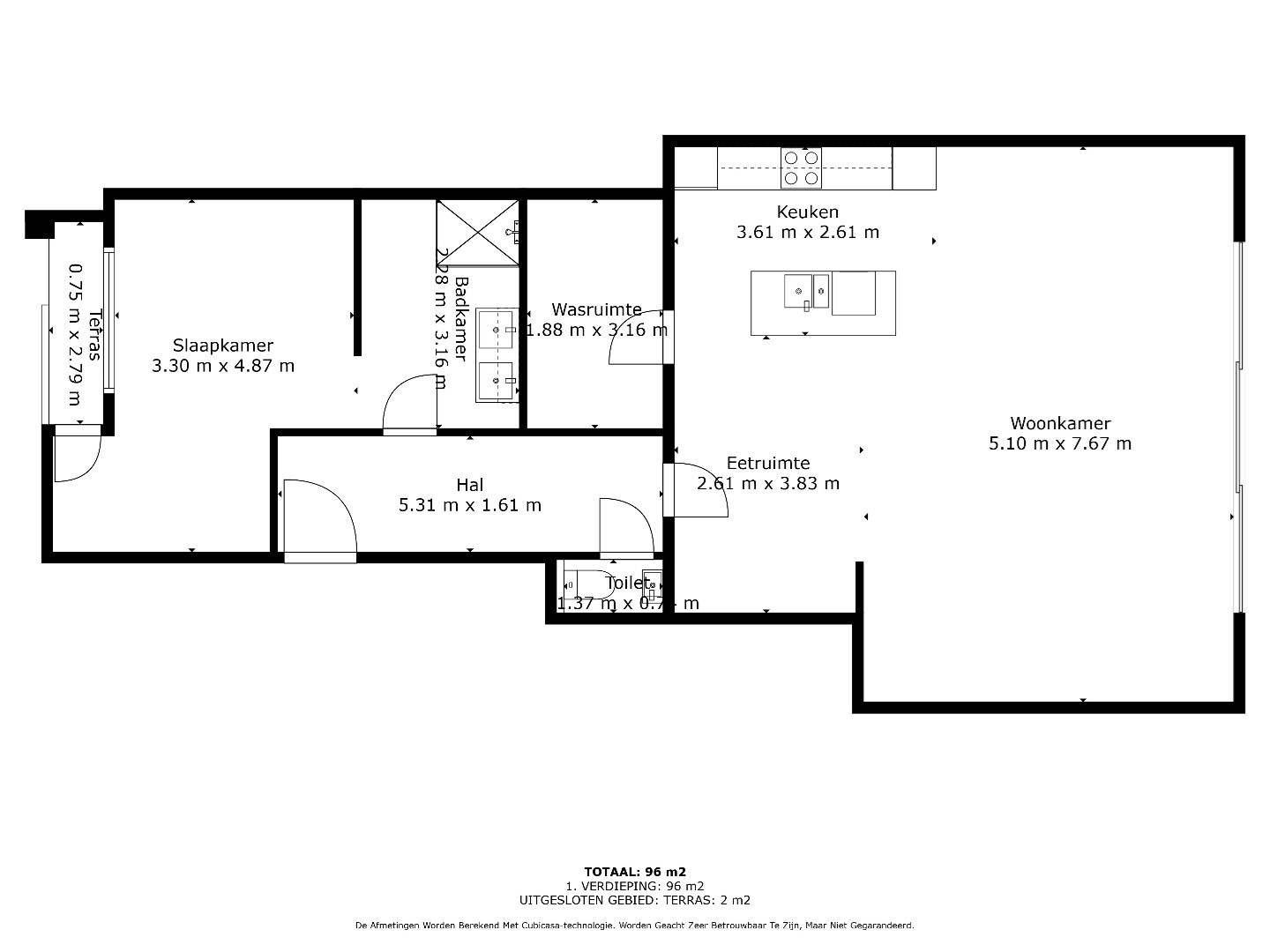
INDELING:

Bij binnenkomst in het appartement wordt u vanuit de inkomhal onmiddellijk aangetrokken door het open leefgedeelte met grote raampartijen. Deze ruimte omvat een zit- en eethoek en een kwalitatieve keuken. Deze moderne keuken is volledig uitgerust met alle nodige voorzieningen. Vanuit deze ruimte is er directe toegang naar de volledig omheinde privé tuin met terras en gazon, gelegen op het zuid-westen.

Bovendien bevindt zich in het appartement een slaapkamer met ensuite badkamer.
De badkamer is voorzien van een dubbele lavabo en praktische inloopdouche.

Tevens biedt dit appartement een parkeerplaats en berging, gelegen in de ondergrondse garage.

Enkele PLUSPUNTEN van dit appartement opgelijst:
+ Toplocatie, in het centrum van Lanaken !
+ Lichtrijk appartement !
+ Gebruik van kwalitatieve materialen !
+ Private tuin met gratis robotmaaier !
+ Energiezuinig !
+ 6% BTW !
+ Eigen parking met kelderberging !

Het appartement valt onder het BTW-stelsel (van 6%) en dient samen met een parking en kelderberging aangekocht te worden.

Meer info of een bezoek ter plaatse kan u ons contacteren via joyce@sterkvastgoedmakelaars.be of bel ons op +32(0)471-444004.


Niet gevonden wat u zocht? Schrijf u dan vrijblijvend in en blijf op de hoogte van ons recentste aanbod.
Schrijf u in
Terug naar boven
Sluit menu STERK vastgoedmakelaars