U gebruikt een verouderde internetbrowser.
We raden u aan om de meest recente internetbrowser te installeren voor de beste weergave van deze website.
Een internetbrowser die up to date is, staat ook garant voor veilig surfen.

Helaas, dit pand is verkocht

3620 Lanaken

Omschrijving

IN OPTIE ! INSTAPKLAAR APPARTEMENT IN CENTRUM LANAKEN MET EPC LABEL A !

IN OPTIE ! INSTAPKLAAR APPARTEMENT IN CENTRUM LANAKEN MET EPC LABEL A !

We vinden dit energiezuinig appartement terug in de kleinschalige residentie 'De Ark', pal in het centrum van Lanaken.

Het appartement bevindt zich vlakbij het Domein Pietersheim, de kinderboerderij en het natuurgebied ‘Nationaal park Hoge Kempen’. Scholen, de bibliotheek en winkels bevinden zich op wandelafstand.
Eveneens zijn de E314 en omliggende steden zoals Bilzen, Genk, Maasmechelen en Maastricht van hieruit vlot bereikbaar.

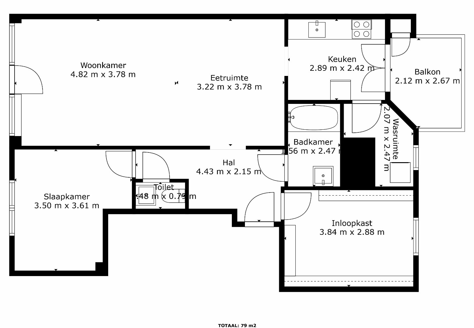
INDELING:

Het appartement is gelegen op de eerste verdieping en is te bereiken via de trappenhal met lift.

De inkomhal van het appartement verleent toegang naar zowel het leefgedeelte, als de slaapkamers en badkamer. Het leefgedeelte heeft een mooie oppervlakte van circa 30 m² en biedt daarmee voldoende ruimte voor het inrichten van een zit- en eethoek.
Vanuit de leefkamer betreedt men de keuken met aansluitend de wasruimte. De wasruimte is voorzien van een aansluiting voor een wasmachine en droger. Daarnaast biedt de keuken ook toegang naar het zuid-oostelijk georiënteerd balkon.

Het appartement is voorzien van 2 slaapkamers met elk een oppervlakte van +/- 11 en 13 m².
De badkamer is uitgerust met een lavabo en bad-douchecombinatie.

Verder beschikt het appartement over een garagebox in de ondergrondse parkeergarage.
Bovendien is er een parking op minder dan 100 meter van het appartement vandaan, goed voor maar liefst 313 parkeerplaatsen.

Enkele PLUSPUNTEN van dit appartement opgelijst:
+ Toplocatie, in het centrum van Lanaken !
+ Alle voorzieningen op wandelafstand !
+ Energiezuinig, EPC label A !
+ Inclusief ondergrondse garagebox !
+ Airco (met garantie) !
+ Elektriciteit conform !

Voor meer info of een bezoek ter plaatse kan u ons contacteren via info@sterkvastgoedmakelaars.be of bel ons op +32(0)89-308888.


Niet gevonden wat u zocht? Schrijf u dan vrijblijvend in en blijf op de hoogte van ons recentste aanbod.
Schrijf u in
Terug naar boven
Sluit menu STERK vastgoedmakelaars