U gebruikt een verouderde internetbrowser.
We raden u aan om de meest recente internetbrowser te installeren voor de beste weergave van deze website.
Een internetbrowser die up to date is, staat ook garant voor veilig surfen.

Helaas, dit pand is verkocht

3620 Lanaken

Omschrijving

IN OPTIE ! APPARTEMENT MET 3 SLAAPKAMERS OP EEN ZEER CENTRALE LIGGING TE LANAKEN !

IN OPTIE ! APPARTEMENT MET 3 SLAAPKAMERS OP EEN ZEER CENTRALE LIGGING TE LANAKEN !

We vinden we dit verhuurd appartement terug in het hartje van Lanaken.
Het appartement is gelegen op een boogscheut van alle voorzieningen, waaronder winkels, horeca, scholen, dokters, apothekers, het openbaar vervoer, het cultureel centrum, de bibliotheek enzoverder.

Het pand ligt tegenover de kerk in het centrum van Lanaken, door deze locatie zijn er voldoende parkeermogelijkheden. Parkeren kan zowel op het Kerkplein zelf, als op het Molenweideplein en het Europaplein. Deze locaties zijn goed voor meer dan 500 gratis parkeerplaatsen.

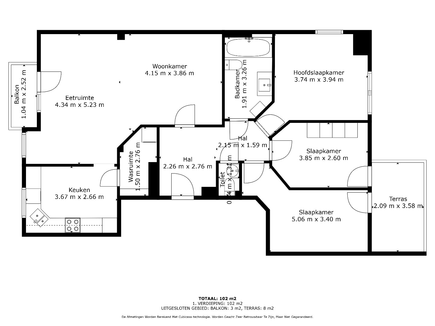
INDELING:

Het appartement is gelegen op de derde verdieping en is bereikbaar via de trappenhal met lift.
Er is een ruime inkom voorzien, dewelke toegang biedt tot zowel het leef-, als het slaapgedeelte.

De lichtrijke leefruimte heeft een mooie oppervlakte van +/- 39 m² en biedt toegang tot het eerste terras aan de voorzijde van het gebouw. De keuken is naadloos verbonden met de leefkamer en is uitgerust met een elektrische kookplaat, ingebouwde koelkast, afwasmachine en oven. In de keuken is er tevens een praktische berging voorzien.

Verder zijn er 3 slaapkamers en een badkamer.
De master bedroom heeft een oppervlakte van 15 m². De overige 2 slaapkamers hebben toegang tot het tweede terras, dewelke op het zuid-westelijk georiënteerd is.
De badkamer beschikt over een wastafel, bad-douchecombinatie en toilet.

Bovendien is er een kelderberging met een oppervlakte van +/- 5 m² aanwezig.

Enkele PLUSPUNTEN van dit appartement opgelijst:
+ Toplocatie, in het centrum van Lanaken !
+ 3 slaapkamers !
+ 2 terrassen !
+ Energiezuinig, EPC label B !
+ Voldoende parkeergelegenheid in de directe omgeving !
+ Interessante investering !
+ Optie tot aankoop garagebox !

Voor meer info of een bezoek ter plaatse kan u ons contacteren via info@sterkvastgoedmakelaars.be of bel ons op +32(0)89-308888.


Niet gevonden wat u zocht? Schrijf u dan vrijblijvend in en blijf op de hoogte van ons recentste aanbod.
Schrijf u in
Terug naar boven
Sluit menu STERK vastgoedmakelaars