U gebruikt een verouderde internetbrowser.
We raden u aan om de meest recente internetbrowser te installeren voor de beste weergave van deze website.
Een internetbrowser die up to date is, staat ook garant voor veilig surfen.

Helaas, dit pand is verkocht

3620 Lanaken

Omschrijving

IN OPTIE ! BIJNA ENERGIENEUTRAAL DUPLEXAPPARTEMENT MET 3 SLPKS IN LANAKEN !

IN OPTIE ! BIJNA ENERGIENEUTRAAL DUPLEXAPPARTEMENT MET 3 SLPKS IN LANAKEN !

Dit energiezuinig duplexappartement van bouwjaar 2020 is gelegen in Lanaken, op fietsafstand van het centrum en in de nabijheid van Zutendaal, Maasmechelen, Bilzen en Maastricht. Dankzij deze centrale ligging geniet u van een vlotte bereikbaarheid en zijn alle faciliteiten in de directe nabijheid gelegen.

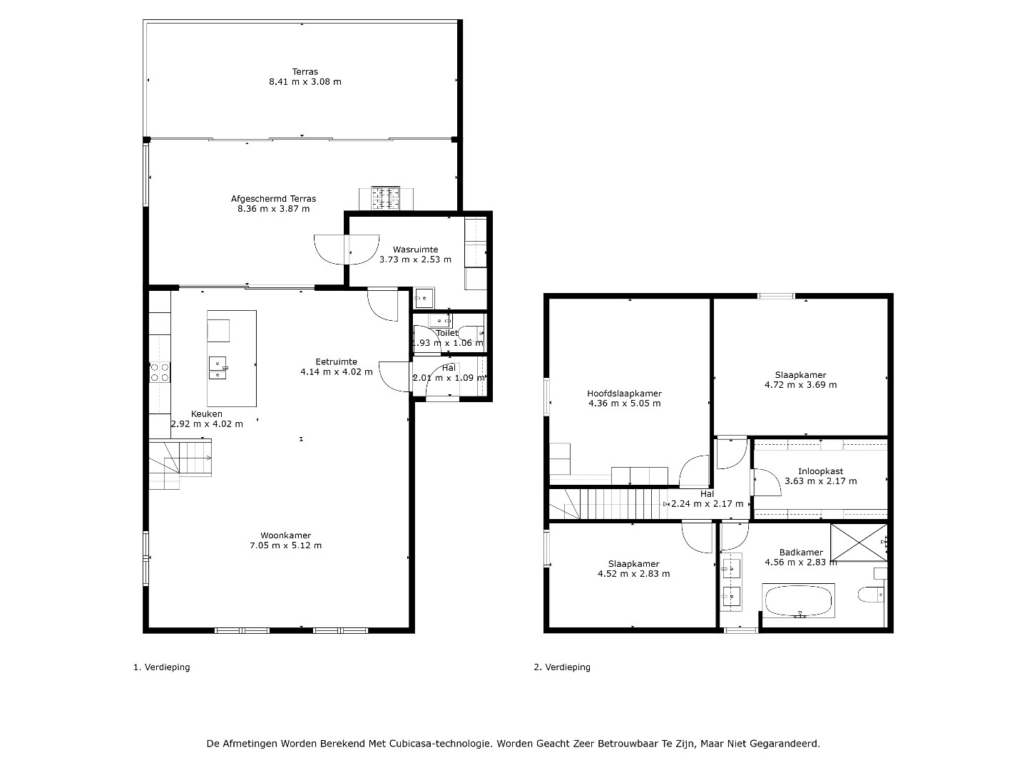
INDELING:

Het appartement bevindt zich op de eerste en tweede verdieping en is toegankelijk via de trappenhal met lift.

Bij binnenkomst wordt men verwelkomd in een ruime en lichtrijke woonkamer, dewelke naadloos overloopt in de eetruimte en open keuken. De keuken is uitgerust met hoogwaardige apparatuur van het merk Bosch, waaronder een inductiekookplaat, ingebouwde koelkast, afwasmachine, magnetron en combi-oven.
Aansluitend aan de eetruimte is er een aparte wasruimte, dewelke zorgt voor extra comfort. Verder is er op deze verdieping een gastentoilet aanwezig.

Via de trap bereikt u de tweede verdieping, waar zich 3 ruime slaapkamers van 13 tot 22 m², de inloopkast en badkamer bevinden. De moderne badkamer is voorzien van een dubbele wastafel, ligbad, inloopdouche, toilet en vloerverwarming. Vanuit de nachthal is toegang tot de zolder via vlizotrap, deze ruimte van circa 50 m² kan perfect dienen als extra opbergplaats.

Eén van de grote troeven van dit appartement is het ruime terras van circa 58 m², dewelke gedeeltelijk afgeschermd kan worden voor extra privacy en comfort. Het terras is deels overdekt waardoor dit de perfecte setting biedt om te genieten van buitenmomenten, zowel overdag als ‘s avonds.

Bij het appartement horen 2 privé parkeerplaatsen en een kelderberging in de ondergrondse parkeergarage. Bovendien zijn er ook gemeenschappelijke parkeerplaatsen voor het pand aanwezig.

Enkele PLUSPUNTEN van dit appartement opgelijst:
+ Luxe-appartement op een toplocatie nabij centrum Lanaken !
+ 192 m² bewoonbare oppervlakte !
+ Zonnepanelen !
+ Airco !
+ Ventilatiesysteem C+ !
+ Gemeenschappelijke regenwaterput !
+ Vloerverwarming (eerste verdieping + badkamer) !
+ Aansluiting voorzien voor elektrische screens !
+ Gemeenschappelijke kost van slechts €70,00/maand !

Alle dossierstukken kan u terugvinden onder het tabblad 'downloads'.

Voor een bezoek ter plaatse kan u ons contacteren via info@sterkvastgoedmakelaars.be of bel ons op +32(0)89-308888.


Niet gevonden wat u zocht? Schrijf u dan vrijblijvend in en blijf op de hoogte van ons recentste aanbod.
Schrijf u in
Terug naar boven
Sluit menu STERK vastgoedmakelaars