U gebruikt een verouderde internetbrowser.
We raden u aan om de meest recente internetbrowser te installeren voor de beste weergave van deze website.
Een internetbrowser die up to date is, staat ook garant voor veilig surfen.

Kerkplein 17 / 1, 3620 Lanaken

Omschrijving

IN OPTIE ! APPARTEMENT MET EEN RUIM TERRAS IN HET CENTRUM VAN LANAKEN !

IN OPTIE ! APPARTEMENT MET EEN RUIM TERRAS IN HET CENTRUM VAN LANAKEN !

We vinden we dit appartement terug in 'Residentie Molenweidewinning', gelegen op een zeer centrale locatie in het centrum van Lanaken.
Het appartement is gelegen op een boogscheut van alle voorzieningen, waaronder winkels, horeca, scholen, dokters, apothekers, het openbaar vervoer, het cultureel centrum, de bibliotheek enzoverder.

Het pand ligt tegenover de kerk in het centrum van Lanaken, door deze locatie zijn er voldoende parkeermogelijkheden. Parkeren kan zowel op het Kerkplein zelf, als op het Molenweideplein en het Europaplein. Deze locaties zijn goed voor meer dan 500 gratis parkeerplaatsen.

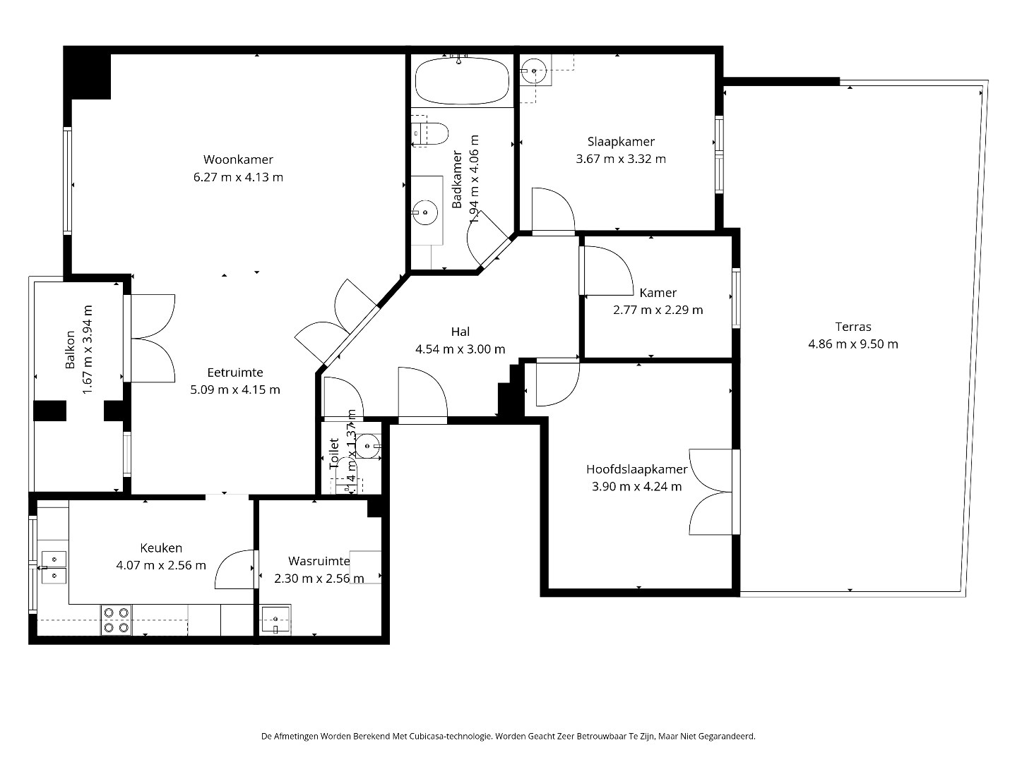
INDELING:

Het appartement is gelegen op de eerste verdieping en is bereikbaar via de trappenhal met lift.

Er is een ruime inkom voorzien, dewelke toegang biedt tot zowel het leef-, als het slaapgedeelte.
De lichtrijke leefkamer heeft een ruime oppervlakte van +/- 47 m² en biedt toegang tot het eerste terras aan de voorzijde van het gebouw met uitzicht over het Kerkplein van Lanaken. De keuken is uitgerust met een ingebouwde koelkast, afwasmachine, oven en voldoende opbergruimte. De keuken verleent op zijn beurt toegang naar de praktische berging.

Het appartement beschikt over 3 slaapkamers en een badkamer.
De oppervlaktes van de slaapkamers variëren tussen de 6 en 17 m². De hoofdslaapkamer heeft toegang tot het tweede terras, dewelke zuid-westelijk georiënteerd is. De badkamer is voorzien van een wastafel, bad-douchecombinatie en toilet.

Bovendien is er een kelderberging met een oppervlakte van +/- 5 m² aanwezig.

Enkele PLUSPUNTEN van dit appartement opgelijst:
+ Toplocatie, in het centrum van Lanaken !
+ Energiezuinig, EPC label B !
+ 2 terrassen, waarvan 1 van 46 m² !
+ Kelderberging !
+ Voldoende parkeergelegenheid in de directe omgeving !

Alle dossierstukken kan u terugvinden onder het tabblad 'downloads'.

Voor een bezoek ter plaatse kan u ons contacteren via info@sterkvastgoedmakelaars.be of bel ons op +32(0)89-308888.


Kenmerken

Algemeen

Adres:Kerkplein 17/1
Lanaken
Referentie:TK431
Type:Appartement
Beschikbaar vanaf:Bij akte
Perceeloppervlakte:223 m²
Bewoonbare opp.:133 m²
Type constructie:Traditioneel
Bouwjaar:1992
Algemene staat:Normaal

Indeling

Slaapkamers:3
Badkamers:Ja
WC:2
Woonkamer:Ja
Keuken:Ja
Berging:Ja
Kelder:Ja
Balkon:Ja
Terras:Ja
Tuin:Ja
Tuin oriëntatie:Zuid-West
Parking:Ja
Parking Types:Gratis

Comfort

Busknooppunt:Ja - op minder dan 500 m
Winkel:Ja
School:Ja
Kinderopvang:Ja
Bank:Ja
Ontspanning:Ja
Restaurant:Ja
Raamwerk:Andere
Beglazing:Dubbel
Elektriciteit:Niet conform
Verwarming:Aardgas
Lift:Ja

Kadastrale gegevens

Niet geïndexeerd K.I.:€ 971
Kadastrale benaming:Afd 1 Sectie D
Kadastrale Nummers:688T P0000 en P0001
Kadastrale Oppervlakte:223 m²

Informatieplicht

EPC Index:134,00 kWh/(m² jaar)
Energielabel:B
Renovatieplicht:Neen
Stedenbouwkundige vergunning:Ja
Voorkooprecht:Neen
Verkavelingsvergunning van toepassing:Neen
Stedenbouwkundige bestemming:Woongebied
Dagvaarding en herstelvordering:Geen rechterlijke herstelmaatregel of bestuurlijke maatregel opgelegd
Overstromingsgevoelig:Niet meegedeeld
Overstromingsgebied:Niet meegedeeld
Overstromingskans perceel (P-score):C
Overstromingskans gebouw (G-score):C
Erfgoed:Geen beschermd erfgoed

Ligging

Neem vrijblijvend contact op

Wenst u meer informatie of het pand te bezoeken? Contacteer ons vrijblijvend voor meer informatie. 
Wanneer wij uw aanvraag hebben ontvangen zullen wij verder contact met u opnemen. 


U moet akkoord gaan met het privacybeleid van deze website
* Verplicht in te vullen

Chanou Bastiaens

Commercieel medewerker
089 30 88 88
chanou@sterkvastgoedmakelaars.be
Niet gevonden wat u zocht? Schrijf u dan vrijblijvend in en blijf op de hoogte van ons recentste aanbod.
Schrijf u in
Terug naar boven
Sluit menu STERK vastgoedmakelaars