U gebruikt een verouderde internetbrowser.
We raden u aan om de meest recente internetbrowser te installeren voor de beste weergave van deze website.
Een internetbrowser die up to date is, staat ook garant voor veilig surfen.

Bessemerstraat 57 / 2.2., 3620 Lanaken
Vraagprijs: € 365.000

Omschrijving

RECENT APPARTEMENT INCLUSIEF PARKING + 2 BERGINGEN IN CENTRUM LANAKEN !

RECENT APPARTEMENT INCLUSIEF PARKING + 2 BERGINGEN IN CENTRUM LANAKEN !

We vinden dit appartement met een bewoonbare oppervlakte van 100 m² terug in het centrum van Lanaken. Het appartement geniet van een uitstekende ligging waar comfort en bereikbaarheid centraal staan. In de directe omgeving bevinden zich tal van winkels, supermarkten, scholen en andere dagelijkse voorzieningen. Dankzij de vlotte verbinding met het openbaar vervoer en de nabijheid van belangrijke invalswegen is onder andere het centrum van Maastricht snel en eenvoudig bereikbaar.

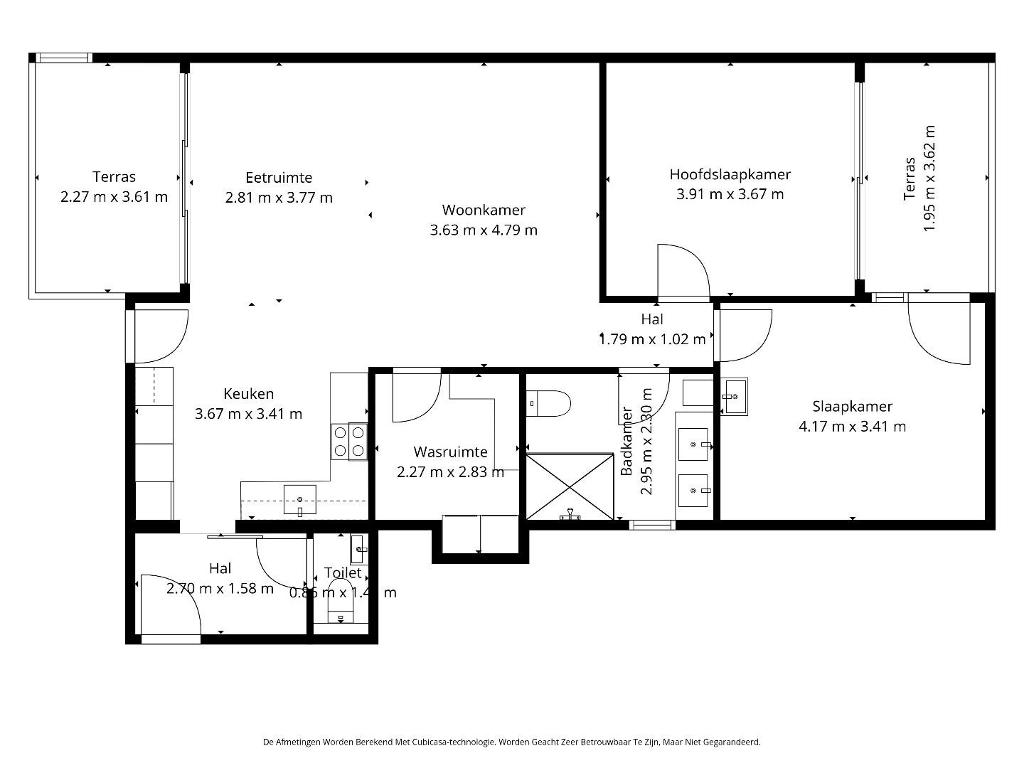
INDELING:

Het appartement is gelegen op de tweede verdieping en is bereikbaar via de trappenhal met lift.
Via de inkomhal betreedt men de ruime en lichtrijke leefruimte met aansluitend de open keuken. De keuken is volledig en kwalitatief ingericht en voorzien van een inductiekookplaat, ingebouwde koelkast, afwasmachine, oven en combi-oven. Grote raampartijen zorgen voor een aangename lichtinval en een open gevoel. Vanuit de leefruimte heeft men toegang tot het terras, dewelke uitgerust is met een zonneluifel.

Verder telt het appartement 2 volwaardige slaapkamers. De hoofdslaapkamer beschikt over een rechtstreekse toegang tot het tweede terras. De tweede slaapkamer is bovendien uitgerust met een eigen lavabo, wat extra comfort biedt. De badkamer is praktisch en verzorgd ingericht met een dubbele lavabo, douche en toilet. Daarnaast is er nog een wasruimte en een apart gastentoilet aanwezig.

Tot slot beschikt het appartement over een privatieve parkeerplaats in de ondergrondse kelder. Daarnaast zijn er 2 bergingen, eveneens gelegen in de ondergrondse verdieping, die zorgen voor extra opslagmogelijkheden.

Enkele PLUSPUNTEN van dit appartement opgelijst:
+ Gelegen in het centrum van Lanaken !
+ Energiezuinig, EPC label A !
+ Ventilatiesysteem C+ !
+ 2 terrassen
+ Vloerverwarming !
+ Parkeerplaats en 2 kelderbergingen !
+ 2% registratierechten bij aankoop als eerste, eigen woning !

Alle dossierstukken kan u terugvinden onder het tabblad 'downloads'.

Voor een bezoek ter plaatse kan u ons contacteren via info@sterkvastgoedmakelaars.be of bel ons op +32(0)89-308888.


Kenmerken

Algemeen

Adres:Bessemerstraat 57/2.2.
Lanaken
Referentie:TK467
Vraagprijs:€ 365.000
Type:Appartement
Beschikbaar vanaf:Bij akte
Perceeloppervlakte:966 m²
Bewoonbare opp.:100 m²
Type constructie:Traditioneel
Bouwjaar:2021
Algemene staat:Instapklaar

Indeling

Slaapkamers:2
Badkamers:1
WC:2
Woonkamer:Ja
Keuken:Ja
Kelder:Ja
Terras:Ja
Wasplaats:Ja
Tuin:Ja
Garage:1 (1 plaats)
Garage Types:Parkeerkelder, Parkeerplaats
Parking:Ja
Parking Types:Gratis

Comfort

Bushalte:Ja - op minder dan 500 m
Winkel:Ja
School:Ja
Kinderopvang:Ja
Bank:Ja
Ontspanning:Ja
Restaurant:Ja
Raamwerk:Aluminium
Beglazing:Dubbel
Elektriciteit:Conform
Verwarming:Vloerverw. gedeeltelijk, Aardgas
Lift:Ja
Zonnewering:Ja
Mech. ventilatie :Ja - C+

Kadastrale gegevens

Niet geïndexeerd K.I.:€ 937
Kadastrale benaming:Afd 1
Kadastrale Nummers:1234A P0000, P0008, P0023, P0027 en P0052
Kadastrale Oppervlakte:966 m²

Informatieplicht

EPC Index:51,00 kWh/(m² jaar)
Energielabel:A
Renovatieplicht:Neen
EPC E-peil:33,00
Stedenbouwkundige vergunning:Ja
Voorkooprecht:Neen
Verkavelingsvergunning van toepassing:Neen
Stedenbouwkundige bestemming:Woongebied
Dagvaarding en herstelvordering:Geen rechterlijke herstelmaatregel of bestuurlijke maatregel opgelegd
Overstromingsgevoelig:Niet meegedeeld
Overstromingsgebied:Niet meegedeeld
Overstromingskans perceel (P-score):  D
Overstromingskans gebouw (G-score):  D
Erfgoed:Geen beschermd erfgoed

Ligging

Neem vrijblijvend contact op

Wenst u meer informatie of het pand te bezoeken? Contacteer ons vrijblijvend voor meer informatie. 
Wanneer wij uw aanvraag hebben ontvangen zullen wij verder contact met u opnemen. 


U moet akkoord gaan met het privacybeleid van deze website
* Verplicht in te vullen

Chanou Bastiaens

Commercieel medewerker
089 30 88 88
chanou@sterkvastgoedmakelaars.be
Niet gevonden wat u zocht? Schrijf u dan vrijblijvend in en blijf op de hoogte van ons recentste aanbod.
Schrijf u in
Terug naar boven
Sluit menu STERK vastgoedmakelaars