U gebruikt een verouderde internetbrowser.
We raden u aan om de meest recente internetbrowser te installeren voor de beste weergave van deze website.
Een internetbrowser die up to date is, staat ook garant voor veilig surfen.

Kerkstraat 7 / 6, 3620 Lanaken
Vraagprijs: € 199.000

Omschrijving

APPARTEMENT MET 2 SLPKS OP EEN GUNSTIGE LOCATIE TE GELLIK-LANAKEN !

APPARTEMENT MET 2 SLPKS OP EEN GUNSTIGE LOCATIE TE GELLIK-LANAKEN !

We vinden dit appartement met een bewoonbare oppervlakte van 67 m² terug op een perceel van 17a 22ca te Gellik, deelgemeente van Lanaken. De locatie combineert een groene, landelijke omgeving met een uitstekende bereikbaarheid. In de onmiddellijke omgeving vindt men lokale handelszaken, scholen, horeca en recreatiemogelijkheden. Bovendien ligt het appartement op korte afstand van Maastricht, Lanaken en Bilzen, waardoor zowel winkels, restaurants als andere voorzieningen vlot bereikbaar zijn.

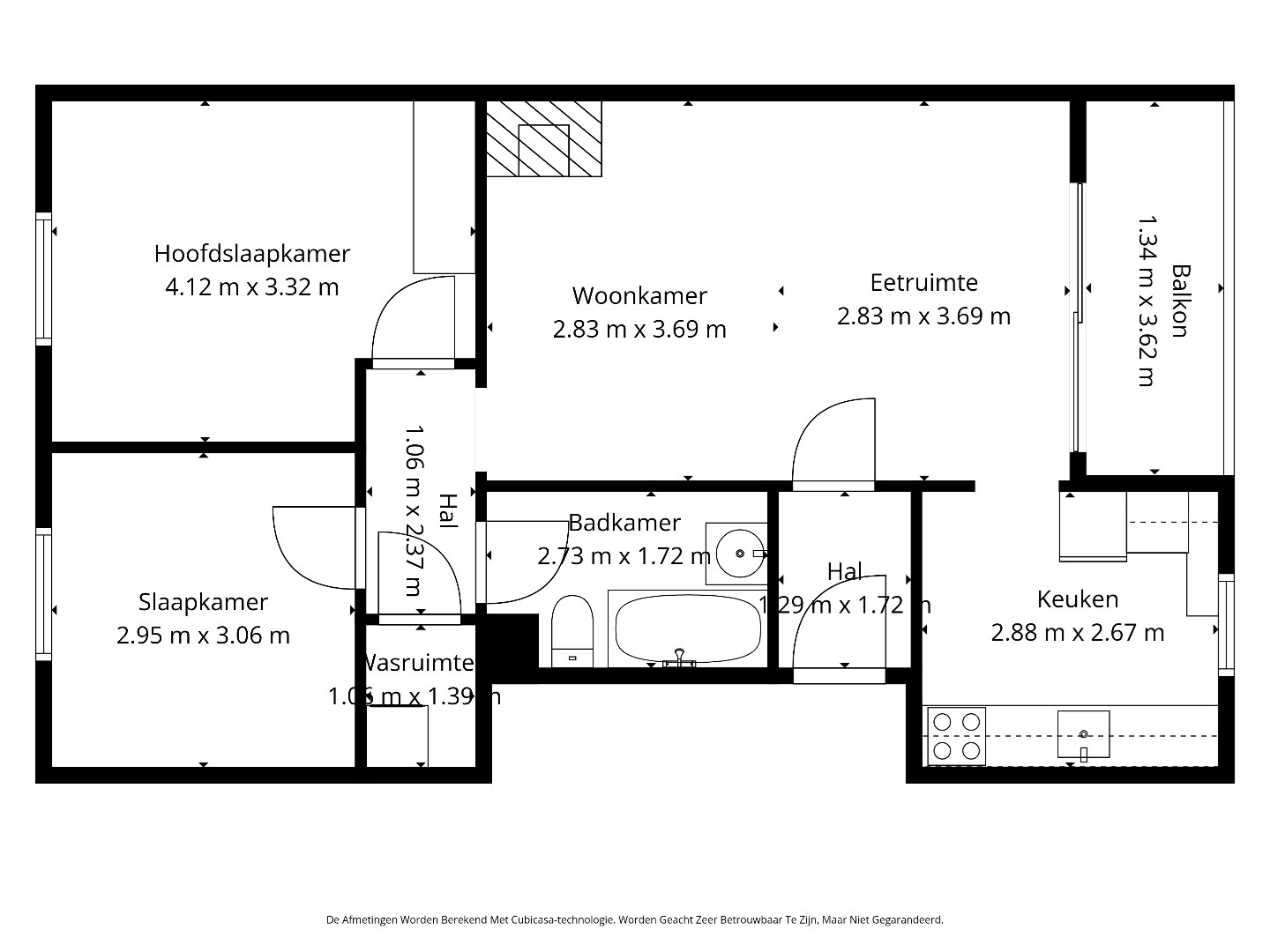
INDELING:

Het appartement is gelegen op de 2e verdieping en is bereikbaar via de trappenhal.

Bij het betreden van het appartement komt men in de inkomhal dewelke toegang biedt tot de leefruimte. De woon- en eetkamer vormen samen een aangename leefruimte met veel natuurlijk licht dankzij de grote raampartij. Vanuit de eetruimte heeft men bovendien rechtstreeks toegang tot het oostelijk georiënteerde terras.
Aansluitend bevindt zich de keuken, die 3 jaar geleden volledig werd vernieuwd. Deze is praktisch ingericht met moderne toestellen, waaronder een inductiekookplaat, ingebouwde koelkast en oven.

Via de nachthal bereikt men de overige ruimtes van het appartement. De badkamer is functioneel ingericht en beschikt over een wastafel, ligbad en toilet. Daarnaast zijn er 2 slaapkamers met een oppervlakte van 9 en 14 m². Verder beschikt het appartement over een praktische wasruimte.

Aan de achterzijde van het gebouw bevinden zich gemeenschappelijke parkeerplaatsen, terwijl er in de directe omgeving ook voldoende openbare parkeergelegenheid beschikbaar is.

Enkele PLUSPUNTEN van dit appartement opgelijst:
+ Centraal gelegen in het landelijke Gellik !
+ 2 slaapkamers !
+ Vernieuwde keuken !
+ Ideaal als investering !
+ Rolluik !
+ Onmiddellijk beschikbaar (na akte) !
+ Voldoende parkeergelegenheid in de directe omgeving !

Alle dossierstukken kan u terugvinden onder het tabblad 'downloads'.

Voor een bezoek ter plaatse kan u ons contacteren via info@sterkvastgoedmakelaars.be of bel ons op +32(0)89-308888.


Kenmerken

Algemeen

Adres:Kerkstraat 7/6
Lanaken
Referentie:TK485A
Vraagprijs:€ 199.000
Type:Appartement
Beschikbaar vanaf:Bij akte
Perceeloppervlakte:1.722 m²
Bewoonbare opp.:67 m²
Type constructie:Traditioneel
Bouwjaar:1981
Algemene staat:Normaal

Indeling

Slaapkamers:2
Badkamers:1
WC:1
Woonkamer:Ja
Keuken:Ja
Wasplaats:Ja
Tuin:Ja
Tuin oriëntatie:Oost
Parking:Ja

Comfort

Bushalte:Ja - op minder dan 500 m
Winkel:Ja
School:Ja
Kinderopvang:Ja
Bank:Ja
Ontspanning:Ja
Restaurant:Ja
Raamwerk:Aluminium
Beglazing:Dubbel
Verwarming:Aardgas
Rolluiken:Ja
Parlofoon:Ja

Kadastrale gegevens

Niet geïndexeerd K.I.:€ 609
Kadastrale benaming:Afd 6
Kadastrale Nummers:143F P0000 en 143F P0017
Kadastrale Oppervlakte:1.722 m²

Informatieplicht

Stedenbouwkundige vergunning:Ja
Voorkooprecht:Neen
Verkavelingsvergunning van toepassing:Neen
Stedenbouwkundige bestemming:Woongebied
Dagvaarding en herstelvordering:Geen rechterlijke herstelmaatregel of bestuurlijke maatregel opgelegd
Overstromingsgevoelig:Niet meegedeeld
Overstromingsgebied:Niet meegedeeld
Overstromingskans perceel (P-score):B
Overstromingskans gebouw (G-score):A
Erfgoed:Geen beschermd erfgoed

Ligging

Neem vrijblijvend contact op

Wenst u meer informatie of het pand te bezoeken? Contacteer ons vrijblijvend voor meer informatie. 
Wanneer wij uw aanvraag hebben ontvangen zullen wij verder contact met u opnemen. 


U moet akkoord gaan met het privacybeleid van deze website
* Verplicht in te vullen

Chanou Bastiaens

Commercieel medewerker
089 30 88 88
chanou@sterkvastgoedmakelaars.be
Niet gevonden wat u zocht? Schrijf u dan vrijblijvend in en blijf op de hoogte van ons recentste aanbod.
Schrijf u in
Terug naar boven
Sluit menu STERK vastgoedmakelaars