U gebruikt een verouderde internetbrowser.
We raden u aan om de meest recente internetbrowser te installeren voor de beste weergave van deze website.
Een internetbrowser die up to date is, staat ook garant voor veilig surfen.

Helaas, dit pand is verkocht

3630 Maasmechelen

Omschrijving

IN OPTIE ! ZEER RUIM APPARTEMENT OP TOPLOCATIE TE MAASMECHELEN !

IN OPTIE ! ZEER RUIM APPARTEMENT OP TOPLOCATIE TE MAASMECHELEN !

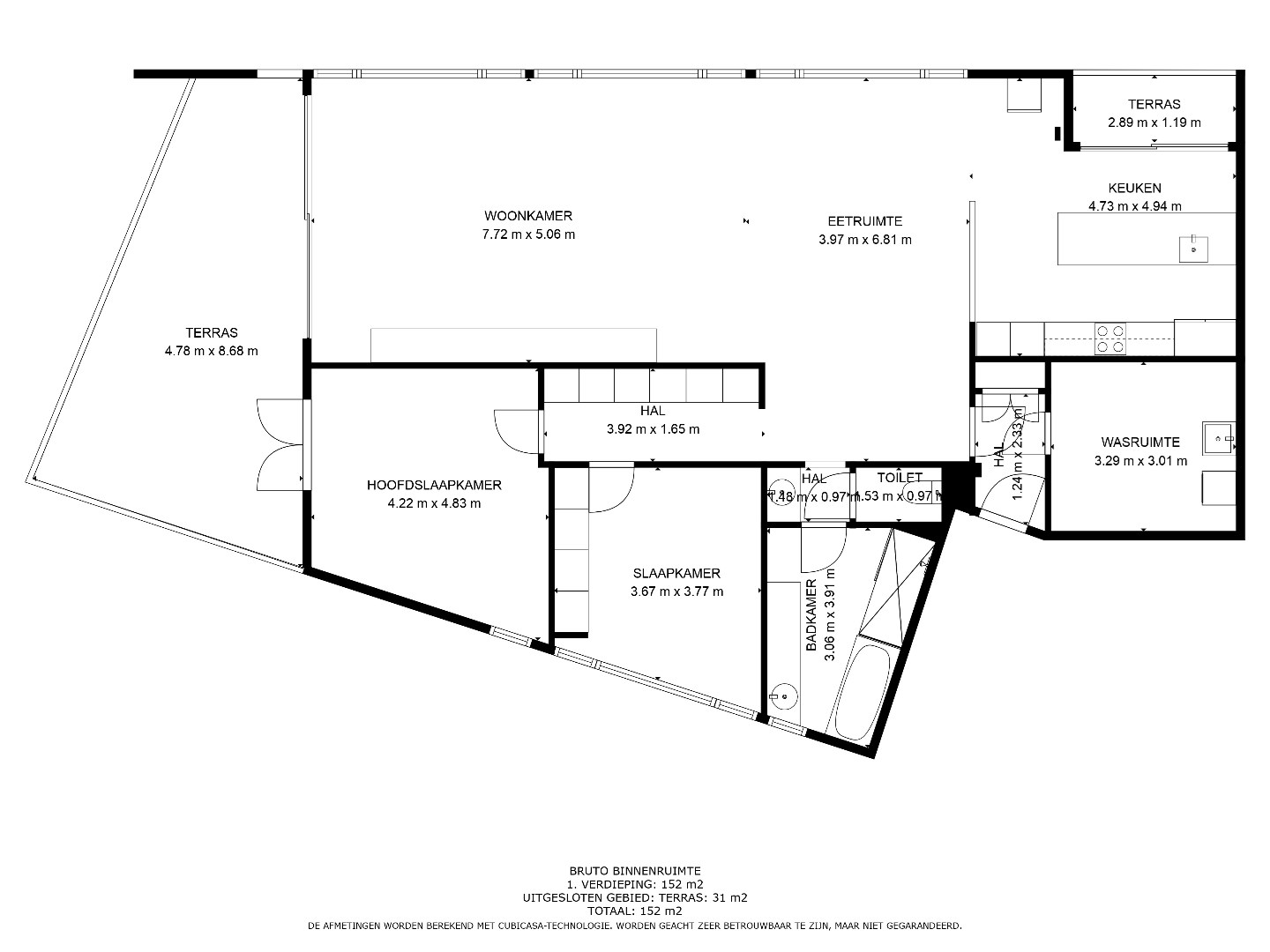
We vinden dit ruim appartement terug in het bruisende Maasmechelen. Het appartement is gelegen op de derde verdieping in de kleinschalige 'Residentie Mentor' en heeft een netto woonoppervlakte van maar liefst +/- 152 m².
De locatie biedt tal van winkels, restaurants en andere voorzieningen. Zowel scholen, shoppingcenter M2 als Maasmechelen Village en Connecterra zijn nabij gelegen.
Dankzij deze centrale locatie heeft u een goede bereikbaarheid met zowel het centrum van Maasmechelen, de omliggende gemeenten Dilsen-Stokkem en Lanaken en de oprit van de E314.

INDELING

Dit appartement, gelegen op de derde verdieping, is makkelijk te bereiken via de trappenhal of lift. Bij binnenkomst in het appartement kan u de wasruimte, nachthal en leefgedeelte betreden.
De riante leefkamer, bestaande uit een woon- en eetruimte, straalt een overvloed aan natuurlijk licht uit dankzij de grote raampartijen. Bovendien biedt het schuifraam in de woonkamer directe toegang tot het zuidelijk georiënteerde terras van maar liefst +/- 41 m², compleet met een zonneluifel.
Langs de eetkamer bevindt zich een volledig uitgeruste keuken met een eigen balkon. Deze keuken is voorzien van alle moderne gemakken en hoogwaardige apparaturen.

Vanuit de nachthal betreedt u de 2 ruime slaapkamers van 14 m² en 20 m², waarvan de masterbedroom eveneens directe toegang biedt tot het terras. De aangrenzende badkamer is uitgerust met een lavabo, ligbad en inloopdouche.

Dit appartement is inclusief een handige kelderberging en een bovengrondse privé parkeerplaats.

Enkele PLUSPUNTEN van dit appartement opgelijst:
+ Toplocatie, nabij alle voorzieningen !
+ Airco !
+ Alarm !
+ Elektriciteit conform !
+ Kelderberging !
+ Privé parkeerplaats !

Voor meer info of een bezoek ter plaatse kan u ons contacteren via info@sterkvastgoedmakelaars.be of bel ons op +32(0)89-308888.


Niet gevonden wat u zocht? Schrijf u dan vrijblijvend in en blijf op de hoogte van ons recentste aanbod.
Schrijf u in
Terug naar boven
Sluit menu STERK vastgoedmakelaars