U gebruikt een verouderde internetbrowser.
We raden u aan om de meest recente internetbrowser te installeren voor de beste weergave van deze website.
Een internetbrowser die up to date is, staat ook garant voor veilig surfen.

Rijksweg 403 / C 7, 3630 Maasmechelen
Vraagprijs: € 279.000

Omschrijving

INSTAPKLAAR 2-SLPK APPARTEMENT MET EPC LABEL A TE MAASMECHELEN !

INSTAPKLAAR 2-SLPK APPARTEMENT MET EPC LABEL A TE MAASMECHELEN !

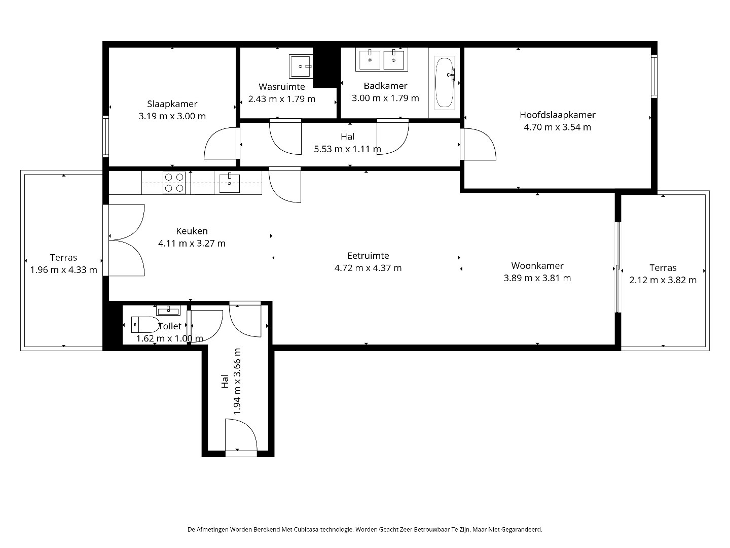
We vinden dit appartement met een bewoonbare oppervlakte van 111 m² terug in 'Residentie De Warande II - Blok C", in Maasmechelen.
Deze locatie biedt tal van winkels, restaurants en andere voorzieningen. Zowel scholen, shoppingcenter M2 als Maasmechelen Village en Connecterra zijn nabij gelegen.
Dankzij deze centrale ligging heeft u een goede bereikbaarheid met zowel het centrum van Maasmechelen, de omliggende gemeenten Dilsen-Stokkem en Lanaken en de oprit van de E314.

INDELING:

Het appartement is gelegen op de tweede verdieping en is bereikbaar via de trappenhal met lift.

De inkomhal biedt rechtstreekse toegang tot het ruime en lichtrijke leefgedeelte. De open leefruimte omvat voldoende ruimte voor het inrichten van een zithoek en eetplaats. Dankzij de grote raampartijen biedt deze ruimte een open gevoel en veel natuurlijk daglicht. De keuken sluit naadloos aan bij de eetruimte en is praktisch ingericht met een elektrische kookplaat, ingebouwde koelkast en oven.

Vanuit het leefgedeelte is er toegang tot het terras aan de voorzijde, georiënteerd op het noordoosten. Aan de achterzijde bevindt zich een tweede terras, gunstig gelegen op het zuidwesten.

Het appartement beschikt over 2 slaapkamers met een oppervlakte van circa 10 m² en en 17 m². De badkamer is modern en comfortabel ingericht met een dubbele lavabo en een bad-douchecombinatie. Daarnaast is er een afzonderlijk toilet en een aparte wasruimte, wat bijdraagt aan het wooncomfort van het appartement.

Tot slot beschikt het appartement over een ruime privatieve parkeerplaats in de ondergrondse garage.

Enkele PLUSPUNTEN van dit appartement opgelijst:
+ Centraal gelegen te Maasmechelen !
+ Energiezuinig, EPC label A !
+ Instapklaar !
+ 2 terrassen !
+ Parkeerplaats in de parkeerkelder !
+ Lift !

Alle dossierstukken kan u terugvinden onder het tabblad 'downloads'.

Voor een bezoek ter plaatse kan u ons contacteren via info@sterkvastgoedmakelaars.be of bel ons op +32(0)89-308888.


Kenmerken

Algemeen

Adres:Rijksweg 403-C/7
Maasmechelen
Referentie:TK457
Vraagprijs:€ 279.000
Type:Appartement
Beschikbaar vanaf:Bij akte
Perceeloppervlakte:733 m²
Bewoonbare opp.:111 m²
Type constructie:Traditioneel
Bouwjaar:2013
Algemene staat:Instapklaar

Indeling

Slaapkamers:2
Badkamers:1
WC:1
Woonkamer:Ja
Keuken:Ja
Terras:Ja
Wasplaats:Ja
Tuin:Ja
Tuin oriëntatie:Zuid-West
Garage:1 plaats
Garage Types:Parkeerkelder, Parkeerplaats
Parking:Ja

Comfort

Bushalte:Ja - op minder dan 500 m
Winkel:Ja
School:Ja
Kinderopvang:Ja
Bank:Ja
Ontspanning:Ja
Restaurant:Ja
Raamwerk:Aluminium
Beglazing:Dubbel
Elektriciteit:Conform
Verwarming:Aardgas
Lift:Ja

Kadastrale gegevens

Niet geïndexeerd K.I.:€ 896
Kadastrale benaming:Afd 1
Kadastrale Nummers:237G5 P0001, P0020 en 237F5 P0106, P0173, P0174
Kadastrale Oppervlakte:733 m²

Informatieplicht

EPC Index:93,00 kWh/(m² jaar)
Energielabel:A
Renovatieplicht:Neen
Stedenbouwkundige vergunning:Ja
Voorkooprecht:Neen
Verkavelingsvergunning van toepassing:Neen
Stedenbouwkundige bestemming:Woongebied
Dagvaarding en herstelvordering:Geen rechterlijke herstelmaatregel of bestuurlijke maatregel opgelegd
Overstromingsgevoelig:Niet meegedeeld
Overstromingsgebied:Niet meegedeeld
Overstromingskans perceel (P-score):B
Overstromingskans gebouw (G-score):B
Erfgoed:Geen beschermd erfgoed

Ligging

Neem vrijblijvend contact op

Wenst u meer informatie of het pand te bezoeken? Contacteer ons vrijblijvend voor meer informatie. 
Wanneer wij uw aanvraag hebben ontvangen zullen wij verder contact met u opnemen. 


U moet akkoord gaan met het privacybeleid van deze website
* Verplicht in te vullen

Chanou Bastiaens

Commercieel medewerker
089 30 88 88
chanou@sterkvastgoedmakelaars.be
Niet gevonden wat u zocht? Schrijf u dan vrijblijvend in en blijf op de hoogte van ons recentste aanbod.
Schrijf u in
Terug naar boven
Sluit menu STERK vastgoedmakelaars