U gebruikt een verouderde internetbrowser.
We raden u aan om de meest recente internetbrowser te installeren voor de beste weergave van deze website.
Een internetbrowser die up to date is, staat ook garant voor veilig surfen.

Geisterweg 4 / B , 3630 Maasmechelen
Vraagprijs: € 275.000

Omschrijving

INSTAPKLAAR DUPLEXAPPARTEMENT MET 3 SLPKS IN HET GEZELLIGE LEUT !

INSTAPKLAAR DUPLEXAPPARTEMENT MET 3 SLPKS IN HET GEZELLIGE LEUT !

We vinden dit appartement met een bewoonbare oppervlakte van 175 m² terug op een perceel van 3a 89ca te Leut, deelgemeente van Maasmechelen. De ligging van het duplexappartement combineert een aangename woonomgeving met een vlotte bereikbaarheid naar omliggende gemeenten, lokale voorzieningen en groene wandel- en fietsroutes, wat het een ideale uitvalsbasis maakt voor wie comfortabel en centraal wil wonen. Daarnaast is er een makkelijke verbinding naar de E314.

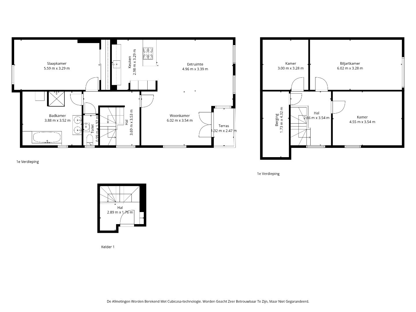
INDELING:

Bij het betreden van het appartement via de privé inkom, komt men binnen in de inkomhal op het gelijkvloers. De leefruimte op de eerste verdieping sluit naadloos aan op de keuken, wat zorgt voor een open sfeer. De keuken is voorzien van een gasfornuis, ingebouwde koelkast, diepvriezer, afwasmachine, oven en magnetron. Verder vindt men hier de hoofdslaapkamer en de badkamer terug. De badkamer is ingericht met een dubbele lavabo, ligbad en douche.
Op deze verdieping bevindt zich tevens het terras, gelegen aan de voorzijde van het gebouw.

Op de tweede verdieping bevinden zich 2 slaapkamers met een oppervlakte van circa 16 m² en 19 m² en 2 bergruimtes.

Het appartement is voorzien van 2 privé parkeerplaatsen.

Enkele PLUSPUNTEN van dit appartement opgelijst:
+ Instapklaar !
+ 3 slaapkamers !
+ Rustige ligging !
+ Incl. 2 autostaanplaatsen !
+ Slechts 2 appartementen in het gebouw !

Alle dossierstukken kan u terugvinden onder het tabblad 'downloads'.

Voor een bezoek ter plaatse kan u ons contacteren via info@sterkvastgoedmakelaars.be of bel ons op +32(0)89-308888.


Kenmerken

Algemeen

Adres:Geisterweg 4-B
Maasmechelen
Referentie:TK476A
Vraagprijs:€ 275.000
Type:Appartement
Beschikbaar vanaf:Bij akte
Perceeloppervlakte:289 m²
Bewoonbare opp.:175 m²
Type constructie:Traditioneel
Bouwjaar:2000
Algemene staat:Instapklaar

Indeling

Slaapkamers:3
Badkamers:1
WC:1
Woonkamer:Ja
Keuken:Ja
Zolder:Ja
Balkon:Ja
Wasplaats:Ja
Tuin:Ja
Tuin oriëntatie:West
Parking:2
Parking Types:Privé

Comfort

Bushalte:Ja - op minder dan 500 m
Winkel:Ja
School:Ja
Kinderopvang:Ja
Bank:Ja
Ontspanning:Ja
Restaurant:Ja
Raamwerk:PVC
Beglazing:Dubbel
Verwarming:Airconditioning, Aardgas
Airco:Ja - 2

Kadastrale gegevens

Niet geïndexeerd K.I.:€ 819
Kadastrale benaming:Afd 5
Kadastrale Nummers:73045 P0000 en P0002
Kadastrale Oppervlakte:389 m²

Informatieplicht

EPC Index:167,00 kWh/(m² jaar)
Energielabel:B
Renovatieplicht:Neen
Stedenbouwkundige vergunning:Ja
Voorkooprecht:Neen
Verkavelingsvergunning van toepassing:Neen
Stedenbouwkundige bestemming:Woongebied met landelijk karakter
Dagvaarding en herstelvordering:Geen rechterlijke herstelmaatregel of bestuurlijke maatregel opgelegd
Overstromingsgevoelig:Niet meegedeeld
Overstromingsgebied:Niet meegedeeld
Overstromingskans perceel (P-score):A
Overstromingskans gebouw (G-score):A
Erfgoed:Geen beschermd erfgoed

Ligging

Neem vrijblijvend contact op

Wenst u meer informatie of het pand te bezoeken? Contacteer ons vrijblijvend voor meer informatie. 
Wanneer wij uw aanvraag hebben ontvangen zullen wij verder contact met u opnemen. 


U moet akkoord gaan met het privacybeleid van deze website
* Verplicht in te vullen

Chanou Bastiaens

Commercieel medewerker
089 30 88 88
chanou@sterkvastgoedmakelaars.be
Niet gevonden wat u zocht? Schrijf u dan vrijblijvend in en blijf op de hoogte van ons recentste aanbod.
Schrijf u in
Terug naar boven
Sluit menu STERK vastgoedmakelaars