U gebruikt een verouderde internetbrowser.
We raden u aan om de meest recente internetbrowser te installeren voor de beste weergave van deze website.
Een internetbrowser die up to date is, staat ook garant voor veilig surfen.

Helaas, dit pand is verkocht

3700 Tongeren

Omschrijving

IN OPTIE ! INSTAPKLAAR 2 SLPK-APPARTEMENT GELEGEN IN DE DORPSKERN VAN TONGEREN !

IN OPTIE ! INSTAPKLAAR 2 SLPK-APPARTEMENT GELEGEN IN DE DORPSKERN VAN TONGEREN !

Dit appartement is gelegen op een uitstekende locatie in het historische dorp Tongeren. Er zijn verschillende voorzieningen binnen handbereik, waaronder huisdokters, het ziekenhuis, winkels, scholen etc. Bovendien biedt deze centrale ligging een goede bereikbaarheid met het openbaar vervoer. Zo zijn er diverse bushaltes op loopafstand en het station van Tongeren op slechts 3 minuten wandelen.

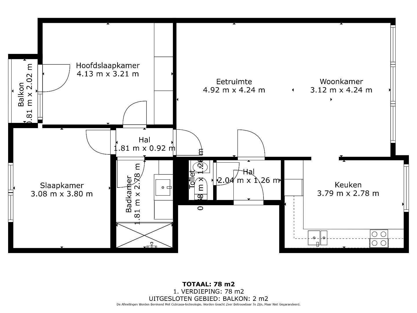
INDELING:

Bij het betreden van het appartement, gelegen op de eerste verdieping en toegankelijk via zowel een trappenhal als de lift, wordt u verwelkomd in een ruim leefgedeelte. Deze ruimte is optimaal ontworpen, met voldoende ruimte voor zowel een woonkamer als een eetkamer. Vanuit hier heeft u toegang tot de royale keuken, dewelke uitgerust is met alle benodigde voorzieningen en voldoende opbergruimte.

Het appartement beschikt over 2 ruime slaapkamers, elk variërend tussen de 11 en 13 m². De master bedroom biedt bovendien een overdekt balkon. De badkamer is voorzien van een lavabo en een inloopdouche.

Voor extra opslagmogelijkheden is er een kelderberging beschikbaar.
Parkeergelegenheid in de nabije omgeving is ruim voorzien.

Bovendien zijn er recent enkele grote werken volbracht in de blok, namelijk:
- De ramen zijn vervangen in 2022
- Het dak is vernieuwd in 2022
- Nieuwe verwarmingsketel in 2023
- Er komt een nieuwe lift in 2024 (dewelke reeds betaald werd door de huidige eigenaar)

Enkele PLUSPUNTEN van dit appartement opgelijst:
+ Toplocatie, gelegen in het centrum !
+ Alle voorzieningen in de directe nabijheid !
+ Instapklaar !
+ Goed onderhouden !
+ Inclusief kelderberging !

Meer info of een bezoek ter plaatse kan u ons contacteren via info@sterkvastgoedmakelaars.be of bel ons op +32(0)89-308888.


Niet gevonden wat u zocht? Schrijf u dan vrijblijvend in en blijf op de hoogte van ons recentste aanbod.
Schrijf u in
Terug naar boven
Sluit menu STERK vastgoedmakelaars