U gebruikt een verouderde internetbrowser.
We raden u aan om de meest recente internetbrowser te installeren voor de beste weergave van deze website.
Een internetbrowser die up to date is, staat ook garant voor veilig surfen.

Helaas, dit pand is verkocht

3621 Lanaken

Omschrijving

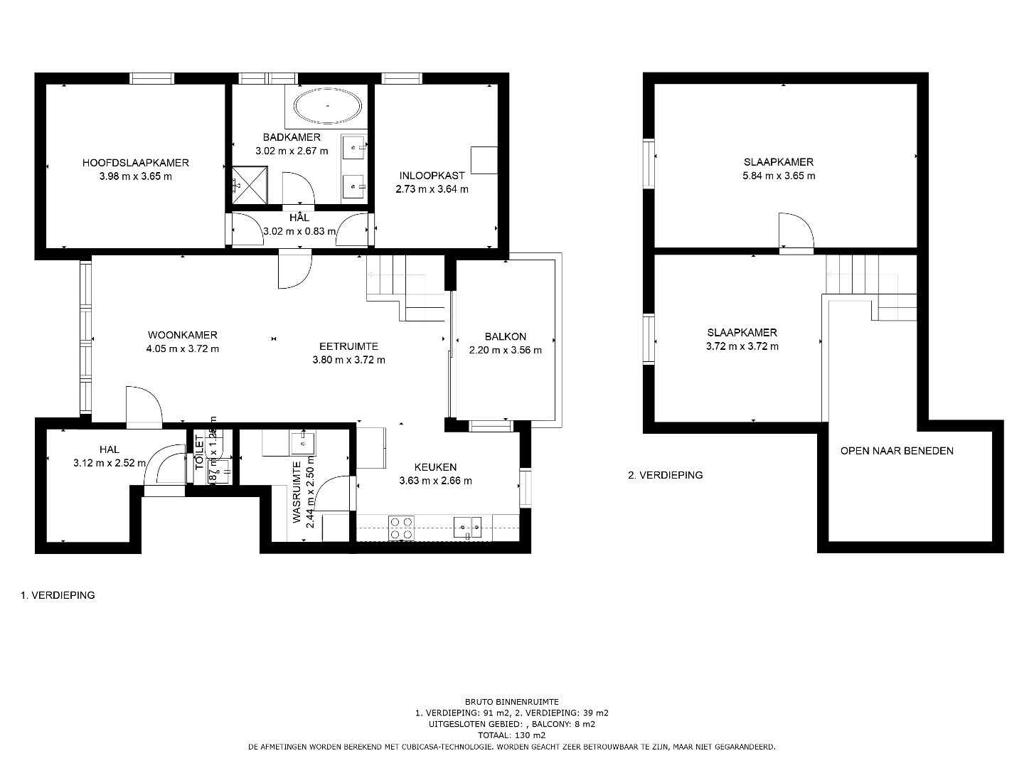
IN OPTIE ! APPARTEMENT VAN 130M² MET 3 SLAAPKAMERS IN REKEM !

IN OPTIE ! APPARTEMENT VAN 130M² MET 3 SLAAPKAMERS IN REKEM !

Dit ruime duplex-appartement kan u terugvinden aan de Groenstraat in het charmante Rekem, deelgemeente van Lanaken. Het pand ligt op een leuke locatie in de dorpskern van Rekem. Andere faciliteiten zoals winkels, horeca, bakkers en scholen bevinden zich in de directe omgeving.
Eveneens zijn de E314 en omliggende gemeentes zoals Maastricht, Lanaken en Zutendaal van hieruit vlot bereikbaar !

Deze kleinschalige residentie bestaat uit 4 appartementen namelijk 2 op de gelijkvloerse verdieping en 2 op de verdiepingen.

INDELING

Het appartement is gelegen op de eerste en tweede verdieping en toegankelijk via een mooie trappenhal.
De oppervlakte van het appartement is 130m² + 8m² aan terrassen.

Vanuit de royale inkomhal met gastentoilet is er toegang via een glazen deur naar de lichtrijke woonkamer met een open keuken. Naast de keuken is er een berging die handig is voor opbergruimte, wasmachine en droogkast.
Door het grote schuifraam in de woonkamer beschikt u over veel lichtinval en een makkelijke toegang naar het overdekte zuidelijk gelegen terras.
Verder beschikt deze verdieping over 2 slaapkamers en een volledig uitgeruste badkamer. De badkamer is uitgerust met een grote dubbele lavabo met spiegelkast, een inloop regendouche en een ligbad.
Op de bovenverdieping zijn er 2 ruime kamers voorzien. Momenteel ingericht als slaapkamer en dressing.

Het appartement werd over de hele lijn afgewerkt met kwalitatieve materialen!

Er is één parkeerplaats inbegrepen bij het appartement. Er zijn ook nog extra parkeerplaatsen voorzien voor bezoekers of voor een tweede wagen.

Het appartement is op dit moment verhuurd en is beschikbaar in overleg.

Enkele PLUSPUNTEN van dit appartement opgelijst:

+ Luxe afwerking !
+ Toplocatie te Rekem !
+ 130 m² bewoonbare oppervlakte + 8m² aan terras !
+ Uitzonderlijk goed onderhouden !
+ Lichtrijk en ruimtelijk appartement !
+ Op dit moment verhuurd !
+ 1 privé autostaanplaats!
+ Gemeenschappelijk kosten van slechts 50 €/maand !

Voor meer info of een bezoek ter plaatse kan u ons contacteren via info@sterkvastgoedmakelaars.be of bel ons op +32(0)468-27.15.35


Niet gevonden wat u zocht? Schrijf u dan vrijblijvend in en blijf op de hoogte van ons recentste aanbod.
Schrijf u in
Terug naar boven
Sluit menu STERK vastgoedmakelaars