U gebruikt een verouderde internetbrowser.
We raden u aan om de meest recente internetbrowser te installeren voor de beste weergave van deze website.
Een internetbrowser die up to date is, staat ook garant voor veilig surfen.

Putstraat 5 / 2, 3770 Riemst
Vraagprijs: € 104.000

Omschrijving

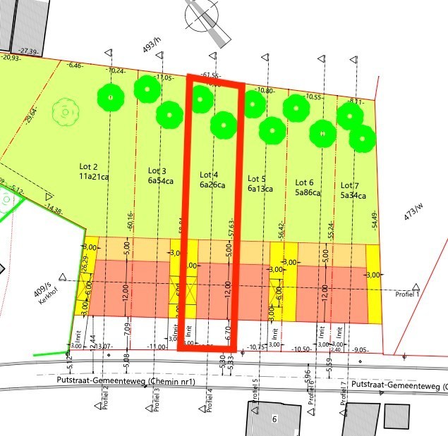
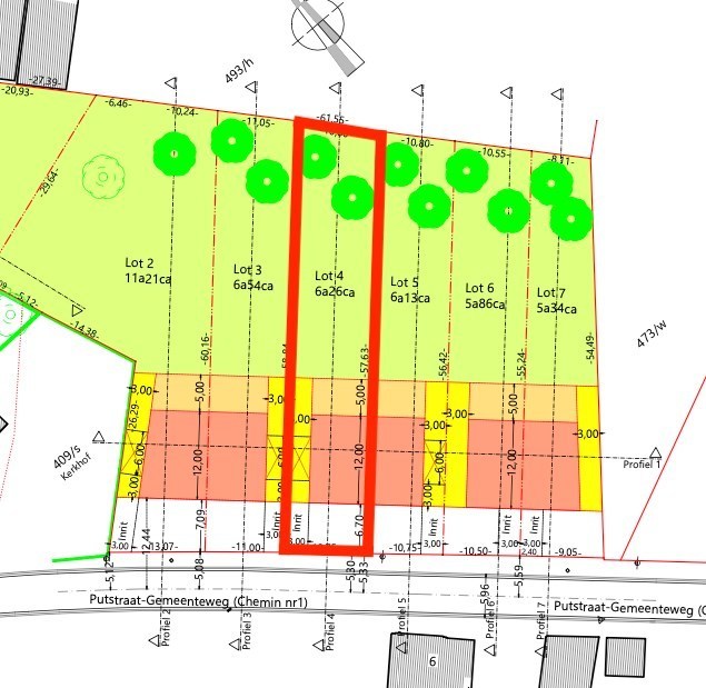
HALFOPEN BOUWGROND VAN 6A 26CA OP EEN TOPLOCATIE TE RIEMST !

HALFOPEN BOUWGROND VAN 6A 26CA OP EEN TOPLOCATIE TE RIEMST !

We vinden deze bouwgrond terug in het hart van Riemst, een rustige en groene gemeente. Deze locatie combineert de charme van een landelijke omgeving met de nabijheid van stedelijke voorzieningen. Op slechts enkele minuten rijden liggen steden zoals Maastricht, Bilzen en Tongeren, wat zorgt voor een uitstekende bereikbaarheid via de N79 en de E313.
In de directe omgeving vindt u winkels, bakkers, scholen en openbaar vervoer terug.

BOUWVOORSCHRIFTEN:

- Bouwhoogte: 2 volwaardige bouwlagen onder de kroonlijst
- Bouwdiepte: 17 m op het gelijkvloers, 12 m op de verdieping
- Bouwbreedte: volgens aanduiding op het verkavelingsplan

Enkele PLUSPUNTEN van deze bouwgrond opgelijst:
+ Toplocatie, rustige en landelijke ligging !
+ Goede bereikbaarheid !
+ Alle voorzieningen in de directe omgeving !
+ Bouwklaar perceel !

DEZE BOUWGRONDEN ZIJN ALLEMAAL BESCHIKBAAR:
- Lot 1: Verkocht
- Lot 2: Verkocht
- Lot 3: 6a 54ca - € 109.000,00
- Lot 4: 6a 26ca - € 104.000,00
- Lot 5: 6a 13ca - € 104.000,00
- Lot 4+5: 6a 26ca + 6a 13ca - € 205.000,00
- Lot 6: Verkocht
- Lot 7: Verkocht

Alle dossierstukken kan u terugvinden onder het tabblad 'downloads'.

Voor een bezoek ter plaatse kan u ons contacteren via info@sterkvastgoedmakelaars.be of bel ons op +32(0)89-308888.


Kenmerken

Algemeen

Adres:Putstraat 5/2
Riemst
Referentie:TK392BBB
Vraagprijs:€ 104.000
Type:Grond
Beschikbaar vanaf:Bij akte
Perceeloppervlakte:626 m²
Type constructie:Traditioneel

Indeling

Tuin:Ja
Tuin oriëntatie:Noord-Oost

Comfort

Bushalte:Ja - op minder dan 500 m
Winkel:Ja
School:Ja
Kinderopvang:Ja
Bank:Ja
Ontspanning:Ja
Restaurant:Ja

Kadastrale gegevens

Niet geïndexeerd K.I.:€ 6
Kadastrale benaming:Afd 1 Sectie A
Kadastrale Nummers:490X P0000
Kadastrale Oppervlakte:626 m²

Informatieplicht

Stedenbouwkundige vergunning:Neen
Voorkooprecht:Neen
Verkavelingsvergunning van toepassing:Ja
Stedenbouwkundige bestemming:Woongebied
Dagvaarding en herstelvordering:Geen rechterlijke herstelmaatregel of bestuurlijke maatregel opgelegd
Overstromingsgevoelig:Niet meegedeeld
Overstromingsgebied:Niet meegedeeld
Overstromingskans perceel (P-score):A
Erfgoed:Geen beschermd erfgoed

Ligging

Neem vrijblijvend contact op

Wenst u meer informatie of het pand te bezoeken? Contacteer ons vrijblijvend voor meer informatie. 
Wanneer wij uw aanvraag hebben ontvangen zullen wij verder contact met u opnemen. 


U moet akkoord gaan met het privacybeleid van deze website
* Verplicht in te vullen

Chanou Bastiaens

Commercieel medewerker
089 30 88 88
chanou@sterkvastgoedmakelaars.be
Niet gevonden wat u zocht? Schrijf u dan vrijblijvend in en blijf op de hoogte van ons recentste aanbod.
Schrijf u in
Terug naar boven
Sluit menu STERK vastgoedmakelaars