U gebruikt een verouderde internetbrowser.
We raden u aan om de meest recente internetbrowser te installeren voor de beste weergave van deze website.
Een internetbrowser die up to date is, staat ook garant voor veilig surfen.

Helaas, dit pand is verkocht

3621 Lanaken

Omschrijving

IN OPTIE ! VAKANTIEWONING GELEGEN IN DE WEELDERIGE LIMBURGSE NATUUR !

IN OPTIE ! VAKANTIEWONING GELEGEN IN DE WEELDERIGE LIMBURGSE NATUUR !

Gelegen in het domein Sunclass Sonnevijver in Rekem, biedt deze vakantiewoning de perfecte uitvalsbasis voor een onvergetelijk verblijf in de Limburgse natuur.

In de directe omgeving vind je een overvloed aan bezienswaardigheden en activiteiten zoals Nationaal Park Hoge Kempen met zijn uitgestrekte bossen en prachtige wandel- en fietspaden. Of breng een bezoek aan Oud-Rekem, waar u kan genieten in gezellige restaurants. Voor de liefhebbers van watersport is de nabijgelegen Maasplassen een paradijs, waar je kan zeilen, zwemmen, kajakken. Overigens is het bekende Maasmechelen Village ook in de directe nabijheid gelegen.

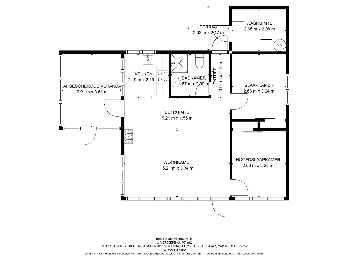
INDELING

Bij binnenkomst in de vakantiewoning betreed je het leefgedeelte, bestaande uit een woonkamer met een eethoek en aangrenzende keuken. De grote ramen rondom het leefgedeelte laten overvloedig daglicht binnen en bieden uitzicht op de omringende natuur.
Vanuit de woonkamer leidt een deur naar de afgeschermde veranda, een perfecte plek om te ontspannen en te genieten van de natuur, zelfs bij minder gunstig weer.

De bungalow beschikt over 2 comfortabele slaapkamers, elk geschikt voor een tweepersoonsbed.
Bovendien is er een badkamer, voorzien van een lavabo, douche, ventilatiesysteem en toilet.

In de tuin zijn er 2 handige bergingen waar je fietsen, wandelschoenen en andere uitrusting in kunt opbergen.
Daarnaast is er ook een overdekt terras aanwezig, bereikbaar via de veranda.

Let wel, er kan geen domicilie gevestigd worden op deze vakantiewoning.
De bungalow komt gepaard met erfpachtvergoeding, beheersvergoeding en gemeentelijke belastingen.

Enkele PLUSPUNTEN van deze vakantiewoning opgelijst:
+ Toplocatie, nabij alle faciliteiten !
+ Op te frissen naar eigen smaak !
+ Inclusief meubilair !
+ Afgeschermde veranda !

Voor meer info of een bezoek ter plaatse kan u ons contacteren via info@sterkvastgoedmakelaars.be of bel ons op +32(0)89-308888.


Niet gevonden wat u zocht? Schrijf u dan vrijblijvend in en blijf op de hoogte van ons recentste aanbod.
Schrijf u in
Terug naar boven
Sluit menu STERK vastgoedmakelaars