U gebruikt een verouderde internetbrowser.
We raden u aan om de meest recente internetbrowser te installeren voor de beste weergave van deze website.
Een internetbrowser die up to date is, staat ook garant voor veilig surfen.

Helaas, dit pand is verkocht

3621 Lanaken

Omschrijving

IN OPTIE ! TE RENOVEREN VAKANTIEWONING NABIJ HET WATER TE SONNEVIJVER !

IN OPTIE ! TE RENOVEREN VAKANTIEWONING NABIJ HET WATER TE SONNEVIJVER !

We vinden deze te renoveren vakantiewoning terug in het vakantiepark 'Sunclass Sonnevijver'. Deze bungalow geniet van een uitstekende locatie nabij de vijver. Bovendien is dit de unieke kans om een vakantiewoning aan te kopen, dewelke u kan renoveren naar eigen smaak en wensen.
Het bungalowpark is op fietsafstand gelegen van de historische stad Maastricht en "Het mooiste dorp van Vlaanderen", namelijk Oud-Rekem.

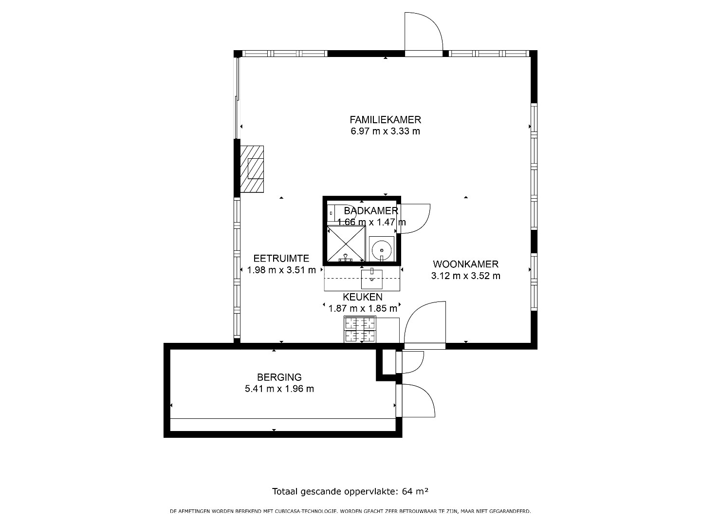
INDELING:

Deze vakantiewoning beschikt momenteel over een keuken en badkamer met lavabo, douche en toilet.
Voor het overige is de indeling van deze woning volledig vrij te kiezen. Er is voldoende ruimte voor het inrichten van een zit- en eetkamer en één of meerdere slaapkamers.

Verder is de bungalow voorzien van een buitenberging van circa 11 m². Ideaal voor het opbergen van persoonlijke spullen zoals fietsen, gereedschap enzoverder.

Let wel, er kan geen domicilie gevestigd worden op deze vakantiewoning.
De bungalow komt gepaard met erfpachtvergoeding, beheersvergoeding en gemeentelijke belastingen.

Enkele PLUSPUNTEN van deze vakantiewoning opgelijst:
+ Rustig gelegen nabij de vijver !
+ Omgeven door groen !
+ Te renoveren naar eigen wensen !
+ Merendeel van de sloopwerken zijn reeds gedaan !
+ Tuin rondom !

Voor meer info of een bezoek ter plaatse kan u ons contacteren via info@sterkvastgoedmakelaars.be of bel ons op +32(0)89-308888.


Niet gevonden wat u zocht? Schrijf u dan vrijblijvend in en blijf op de hoogte van ons recentste aanbod.
Schrijf u in
Terug naar boven
Sluit menu STERK vastgoedmakelaars