U gebruikt een verouderde internetbrowser.
We raden u aan om de meest recente internetbrowser te installeren voor de beste weergave van deze website.
Een internetbrowser die up to date is, staat ook garant voor veilig surfen.

Helaas, dit pand is verkocht

3621 Lanaken

Omschrijving

IN OPTIE ! VRIJSTAANDE VAKANTIEWONING MET ZICHT OP WATER TE VIJVERDORP !

IN OPTIE ! VRIJSTAANDE VAKANTIEWONING MET ZICHT OP WATER TE VIJVERDORP !

We vinden deze vakantiewoning terug in het Vijverdorp te Sunclass Sonnevijver.
Deze recreatiewoning is als laatste woning op de straat gelegen, dit maakt dat er slechts 1 rechtstreekse buur is. Momenteel wordt de woning gebruikt voor vakantieverhuur, dewelke een goed rendement opbrengt.

In de directe omgeving vind je een overvloed aan bezienswaardigheden en activiteiten zoals Nationaal Park Hoge Kempen met zijn uitgestrekte bossen en prachtige wandel- en fietspaden. Of breng een bezoek aan Oud-Rekem, waar u kan genieten in gezellige restaurants en historische bezienswaardigheden. Voor de liefhebbers van watersport is de nabijgelegen Maasplassen een paradijs, waar je kan zeilen, zwemmen, kajakken. Overigens is het bekende Maasmechelen Village ook in de directe nabijheid gelegen.

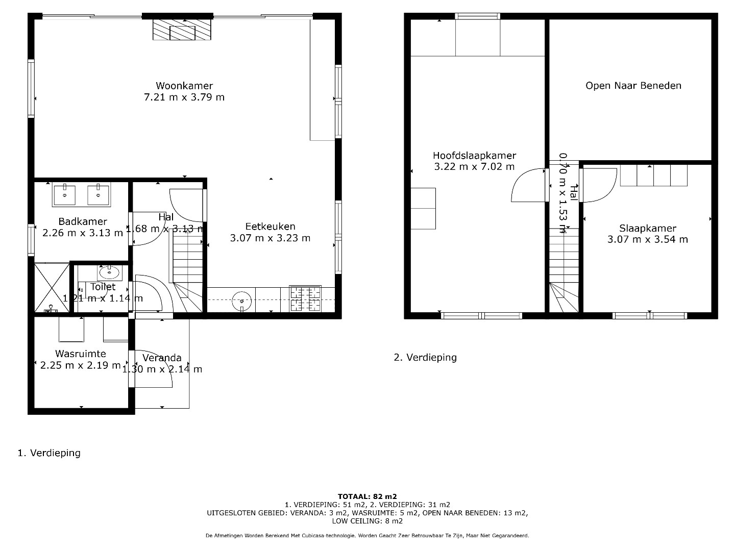
INDELING:

Bij binnenkomst in de vakantiewoning leidt de inkomhal naar het open leefgedeelte.
Het leefgedeelte bestaat uit een comfortabele zit- en eethoek met aansluitend de keuken.
De leefruimte beschikt over een gezellige haard en biedt uitzicht op de tuin. Door het hoge plafond en de vele lichtinval, wordt er een ruimtelijk gevoel gecreëerd.
Verder vinden we op de begane grond de badkamer terug. Deze is voorzien van een dubbele lavabo en douche. Het toilet is apart.

Op de eerste verdieping vinden we de 2 ruime slaapkamers van 11 en 23 m² terug.
Momenteel zijn de kamers voorzien voor 4 slaapplekken.

Verder beschikt de vakantiewoning over een praktische buitenberging.
De tuin situeert zich rondom de woning. Het terras biedt direct zicht op de vijver en beschikt over een sfeervolle barbecue.

Let wel, er kan geen domicilie gevestigd worden.
De bungalow komt gepaard met erfpachtvergoeding, beheersvergoeding en gemeentelijke belastingen.

Enkele PLUSPUNTEN van deze vakantiewoning opgelijst:
+ Toplocatie, als laatste op de straat !
+ Vrij zicht op de vijver !
+ 2 slaapkamers voor minstens 4 slaapplekken !
+ Goed rendement voor vakantieverhuur !
+ Ideaal voor investering !

Voor meer info of een bezoek ter plaatse kan u ons contacteren via info@sterkvastgoedmakelaars.be of bel ons op +32(0)89-308888.


Niet gevonden wat u zocht? Schrijf u dan vrijblijvend in en blijf op de hoogte van ons recentste aanbod.
Schrijf u in
Terug naar boven
Sluit menu STERK vastgoedmakelaars