U gebruikt een verouderde internetbrowser.
We raden u aan om de meest recente internetbrowser te installeren voor de beste weergave van deze website.
Een internetbrowser die up to date is, staat ook garant voor veilig surfen.

Stationsstraat 29 / 4-6-8, 3620 Lanaken
Vraagprijs: € 169.000

Omschrijving

COMMERCIEEL PAND VAN 175 M² IN PASSAGE BEGAS, GELEGEN IN HARTJE LANAKEN !

COMMERCIEEL PAND VAN 175 M² IN PASSAGE BEGAS, GELEGEN IN HARTJE LANAKEN !

We vinden dit veelzijdig handelspand terug op een toplocatie in het centrum van Lanaken.
Het pand bevindt zich in Passage Begas, gelegen tussen de 2 grote parkings in centrum Lanaken, namelijk het Europaplein en Molenweideplein. Met tal van winkels, horecagelegenheden en andere voorzieningen in de directe omgeving trekt deze locatie een constante stroom bezoekers.

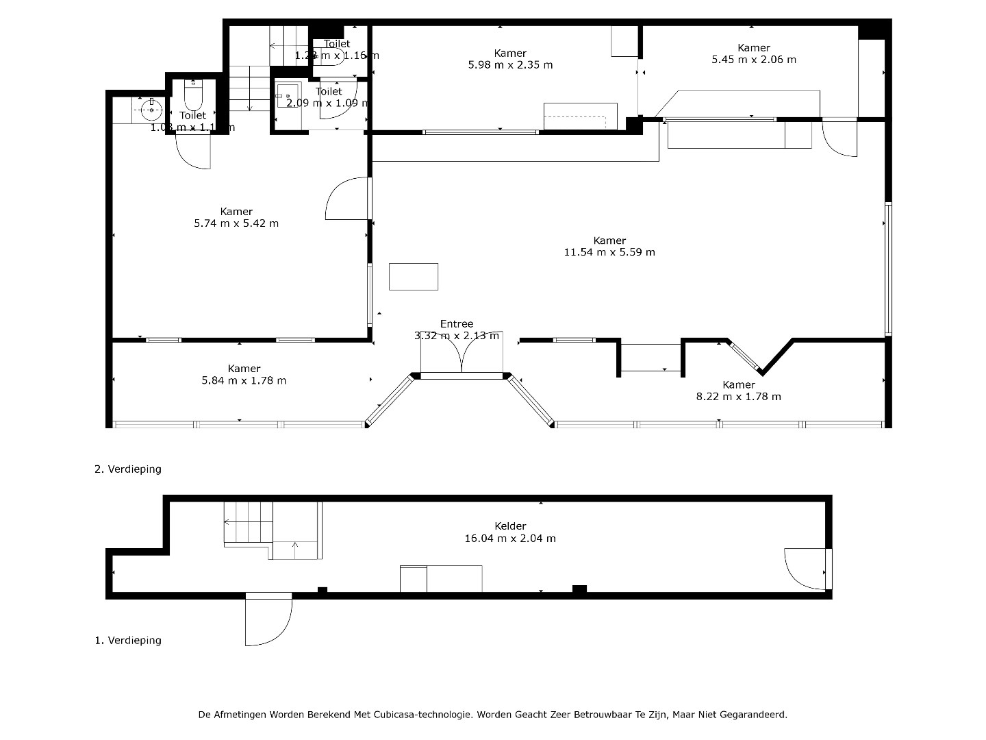
INDELING:

Bij binnenkomst in het pand, wordt men verwelkomd in een ruimte met een mooie oppervlakte van circa 65 m², dewelke beschikt over een etalage. De grote raampartijen bieden uitstekende zichtbaarheid en zijn ideaal om uw producten of diensten te presenteren.
Vanuit deze hoofdruimte is er toegang naar de overige 3 kamers met oppervlaktes van 12 m², 14 m² en 31 m². Deze kunnen volledig naar eigen wens ingericht worden.

Verder beschikt het pand over een gastentoilet en kelder, dewelke +/- 33 m² groot is.

Optioneel kan er een staanplaats in de ondergrondse parkeergarage aangekocht worden.

Enkele PLUSPUNTEN van dit pand opgelijst:
+ Toplocatie, gelegen in hartje Lanaken !
+ Meer dan 500 gratis parkeerplaatsen in de directe omgeving !
+ Grote raampartijen, veel visibiliteit !
+ Inclusief kelder !
+ Op te splitsen naar 2 ruimtes !
+ Optie tot aankoop autostaanplaats !

Alle dossierstukken kan u terugvinden onder het tabblad 'downloads'.

Voor een bezoek ter plaatse kan u ons contacteren via info@sterkvastgoedmakelaars.be of bel ons op +32(0)89-308888.


Kenmerken

Algemeen

Adres:Stationsstraat 29/4-6-8
Lanaken
Referentie:TK363
Vraagprijs:€ 169.000
Type:Winkelruimte
Beschikbaar vanaf:Bij akte
Perceeloppervlakte:1.777 m²
Bouwjaar:1996
Algemene staat:Normaal

Indeling

WC:1
Opslagruimte:Ja
Kelder:33 m²
Showroom:Ja

Comfort

Busknooppunt:Ja - op minder dan 500 m
Winkel:Ja
School:Ja
Kinderopvang:Ja
Bank:Ja
(Stads)centrum:Ja
Ontspanning:Ja
Restaurant:Ja
Raamwerk:Andere
Beglazing:Hoogrendementsglas
Elektriciteit:Niet conform
Verwarming:Aardgas

Kadastrale gegevens

Niet geïndexeerd K.I.:€ 1.755
Kadastrale benaming:Afd 1 Sectie C
Kadastrale Nummers:9X4 P0017

Informatieplicht

Energielabel:C
Renovatieplicht:Neen
Stedenbouwkundige vergunning:Ja
Voorkooprecht:Neen
Verkavelingsvergunning van toepassing:Neen
Stedenbouwkundige bestemming:Woongebied
Dagvaarding en herstelvordering:Geen rechterlijke herstelmaatregel of bestuurlijke maatregel opgelegd
Overstromingsgevoelig:Niet meegedeeld
Overstromingsgebied:Niet meegedeeld
Overstromingskans perceel (P-score):A
Overstromingskans gebouw (G-score):A
Erfgoed:Geen beschermd erfgoed

Ligging

Neem vrijblijvend contact op

Wenst u meer informatie of het pand te bezoeken? Contacteer ons vrijblijvend voor meer informatie. 
Wanneer wij uw aanvraag hebben ontvangen zullen wij verder contact met u opnemen. 


U moet akkoord gaan met het privacybeleid van deze website
* Verplicht in te vullen

Chanou Bastiaens

Commercieel medewerker
089 30 88 88
chanou@sterkvastgoedmakelaars.be
Niet gevonden wat u zocht? Schrijf u dan vrijblijvend in en blijf op de hoogte van ons recentste aanbod.
Schrijf u in
Terug naar boven
Sluit menu STERK vastgoedmakelaars