U gebruikt een verouderde internetbrowser.
We raden u aan om de meest recente internetbrowser te installeren voor de beste weergave van deze website.
Een internetbrowser die up to date is, staat ook garant voor veilig surfen.

Helaas, dit pand is verkocht

3740 Bilzen

Omschrijving

OP TE FRISSEN WONING MIDDEN IN HET GROEN OP PERCEEL VAN 5 464M² TE ROSMEER !

OP TE FRISSEN WONING MIDDEN IN HET GROEN OP PERCEEL VAN 5 464M² TE ROSMEER !

Deze bungalow-woning uit 1966 ligt op een zeer ruim perceel van 54A64CA in Rosmeer-Bilzen. Door zijn zonevreemde ligging grenst deze woning enkel aan landbouwgronden. De E313 alsook andere faciliteiten liggen in de directe omgeving.

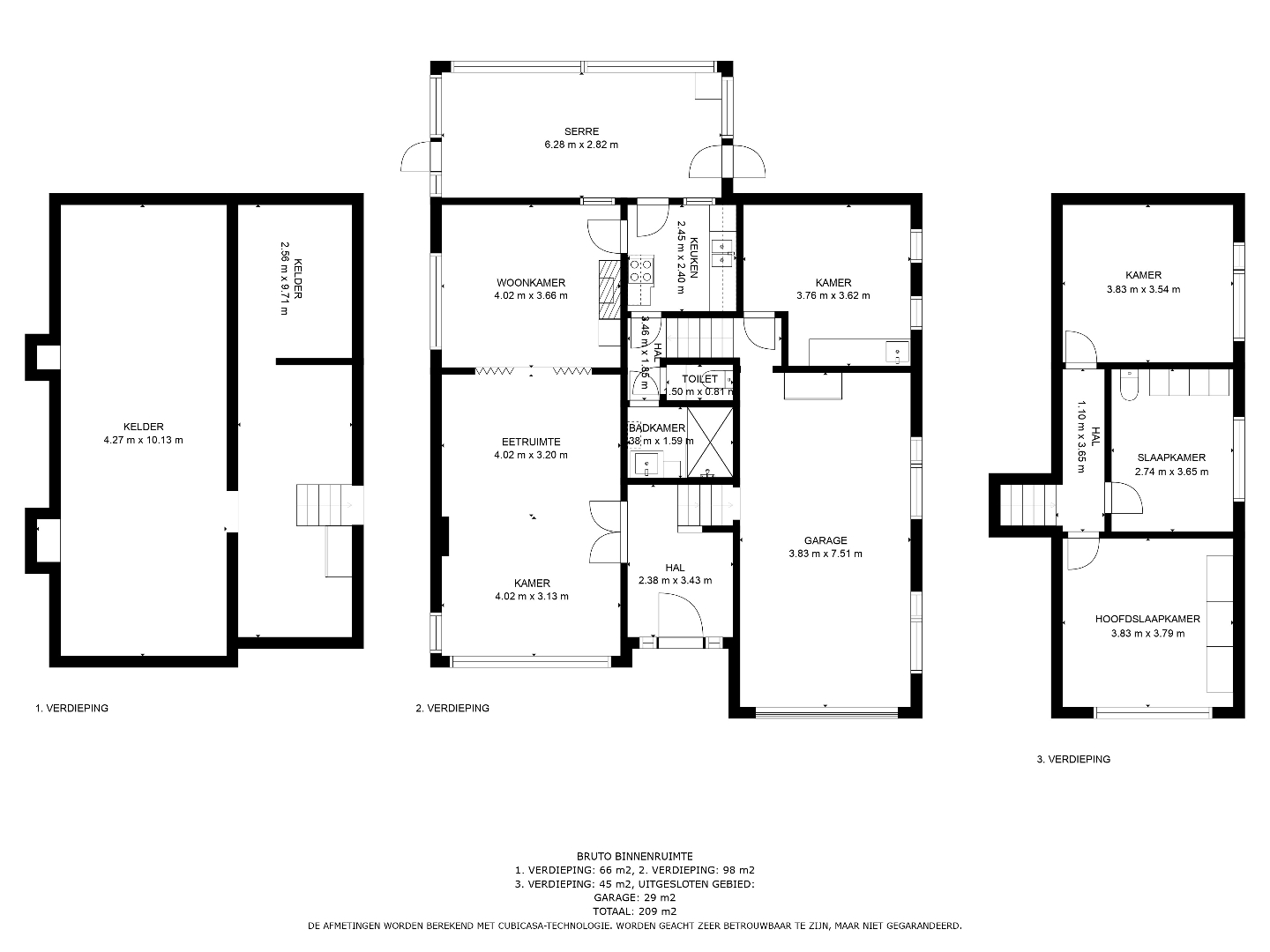
INDELING:

De benedenverdieping is voorzien van een leefruimte en eetkamer met zicht op de zuid-georiënteerde tuin alsook kunt u hier een aparte keuken en badkamer terugvinden. Vanuit deze keuken is er toegang tot de veranda. Van hieruit is er een prachtig zicht op de tuin alsook op de prachtige velden rondom het huis!
Via de hal gaan we naar de bovenverdieping waar er 3 slaapkamers zijn ingericht.

De woning is volledig onderkelderd, hier is er ruimte voor het parkeren van een wagen d.m.v. een elektrische poort maar ook is er voldoende opbergruimte.

In de tuin staan tevens 2 vrijstaande garages.

De ramen in PVC met dubbele beglazing alsook het dak werden rond 2001 allemaal vernieuwd. De ramen zijn eveneens bijna allemaal voorzien van rolluiken.

Enkele PLUSPUNTEN van deze woning opgelijst:

+ Gelegen in een landelijke omgeving !
+ Zonevreemd dus nooit buren in directe omgeving !
+ Zeer groot perceel met leuke uitzichten !
+ Dak en ramen in 2001 vernieuwd !
+ Op te frissen dus inrichting naar eigen smaak !
+ Voldoende parkeergelegenheid !

Voor meer info of een bezoek ter plaatse kan u ons contacteren via info@sterkvastgoedmakelaars.be of bel ons op +32(0)472-757004


Niet gevonden wat u zocht? Schrijf u dan vrijblijvend in en blijf op de hoogte van ons recentste aanbod.
Schrijf u in
Terug naar boven
Sluit menu STERK vastgoedmakelaars