U gebruikt een verouderde internetbrowser.
We raden u aan om de meest recente internetbrowser te installeren voor de beste weergave van deze website.
Een internetbrowser die up to date is, staat ook garant voor veilig surfen.

Helaas, dit pand is verkocht

3740 Bilzen

Omschrijving

IN OPTIE ! TE RENOVEREN PAND OP GROOT PERCEEL VAN 17A 17CA TE EIGENBILZEN !

IN OPTIE ! TE RENOVEREN PAND OP GROOT PERCEEL VAN 17A 17CA TE EIGENBILZEN !

We vinden deze te renoveren woning terug op een riant perceel van 17a 17ca te Eigenbilzen, deelgemeente van Bilzen.
De woning bevindt zich in een groene omgeving aan de bosrand, nabij het Albertkanaal.

Met een gunstige ligging combineert deze woning het beste van rustige natuur en voldoende toegankelijkheid . Daarnaast zijn alle faciliteiten zoals scholen en winkels en de E313 in de directe nabijheid gelegen.

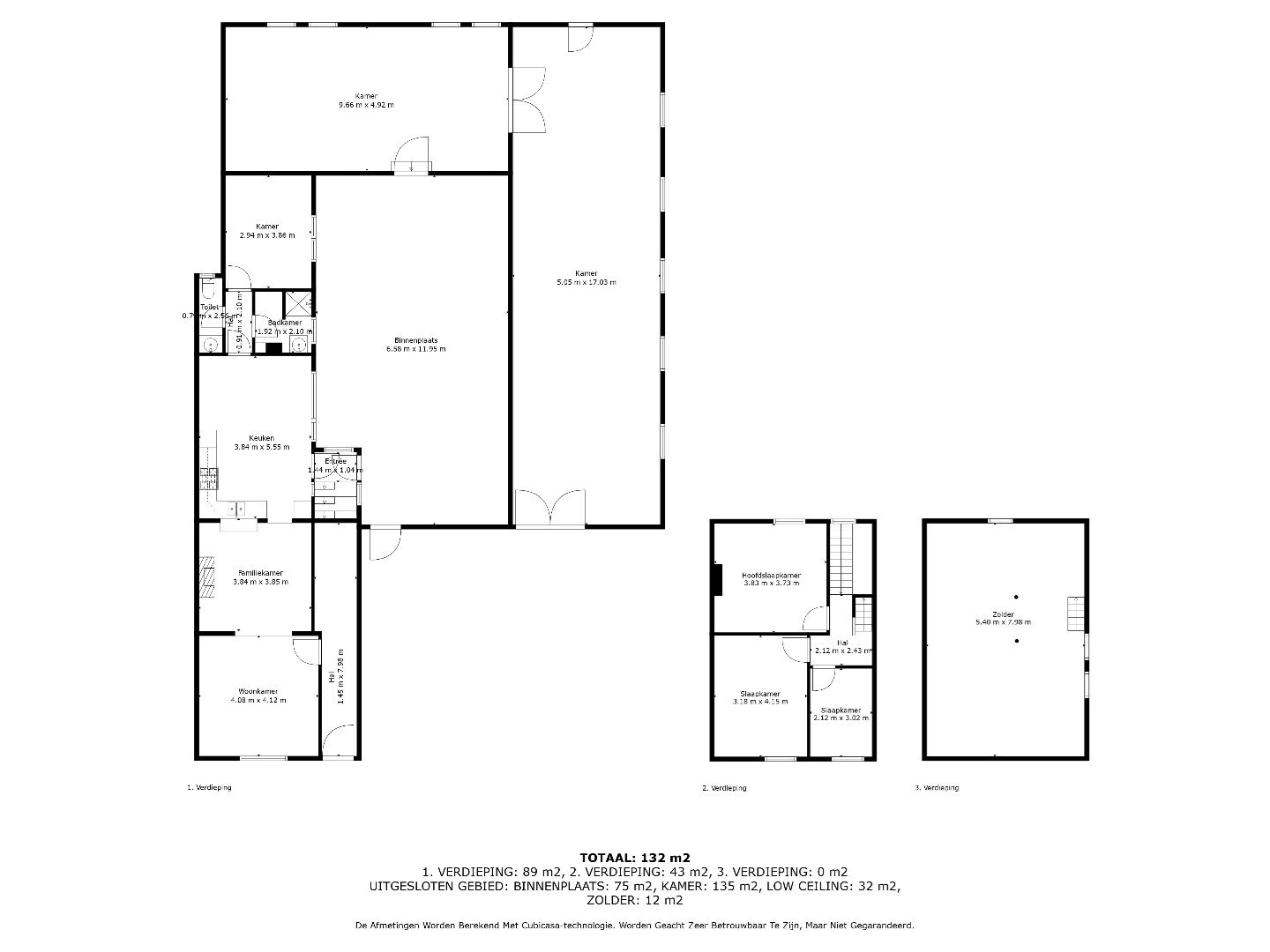
INDELING:

Op het gelijkvloers is er een veelzijdige indeling, met onder andere een ruime woon- en eetkamer. Achter deze leefruimte bevindt zich de keuken, dewelke genoeg ruimte biedt voor extra eetgelegenheid en opbergruimte. Verder vinden we op deze verdieping 2 extra kamers terug, dewelke flexibel kunnen worden ingezet als slaapkamers, kantoorruimtes of hobbykamers.
Bovendien bevindt zich op de begane grond ook nog een badkamer.

Langs de zijkant van de woning strekt zich een riante schuur uit, met een oppervlakte van 86 m². Deze biedt veel mogelijkheden, van opslagruimte tot hobbyruimte, afhankelijk van uw eigen behoeften. Tussen de woning en de schuur bevindt zich een binnenplaats. Op het perceel staan meerdere bijgebouwen.

Op de eerste verdieping bevinden zich 3 comfortabele slaapkamers, variërend tussen de 6 en 14 m².
Een vaste trap leidt verder naar de zolder, dewelke potentieel biedt voor verdere uitbreiding of aanpassing naar wens.

*Dit pand is onderhevig aan de renovatieverplichting.

Enkele PLUSPUNTEN van deze woning opgelijst:
+ Toplocatie, rustig gelegen te Eigenbilzen !
+ Groot perceel van 17a 17ca !
+ Riante opslagplaats !
+ Te renoveren naar eigen smaak en wensen !
+ 6% BTW bij afbraak en wederopbouw !

Alle dossierstukken kan u terugvinden op onze website www.sterkvastgoedmakelaars.be onder het tabblad 'downloads'.

Voor een bezoek ter plaatse kan u ons contacteren via info@sterkvastgoedmakelaars.be of bel ons op +32(0)89-308888.


Niet gevonden wat u zocht? Schrijf u dan vrijblijvend in en blijf op de hoogte van ons recentste aanbod.
Schrijf u in
Terug naar boven
Sluit menu STERK vastgoedmakelaars