U gebruikt een verouderde internetbrowser.
We raden u aan om de meest recente internetbrowser te installeren voor de beste weergave van deze website.
Een internetbrowser die up to date is, staat ook garant voor veilig surfen.

Helaas, dit pand is verkocht

3620 Lanaken

Omschrijving

IN OPTIE ! DUBBELE WOONST OP TOPLOCATIE NABIJ MAASTRICHT !

IN OPTIE ! DUBBELE WOONST OP TOPLOCATIE NABIJ MAASTRICHT !

Op een boogscheut van Maastricht treffen we deze dubbele woning aan gelegen in Smeermaas, deelgemeente van Lanaken.
Dankzij deze centrale locatie heeft u een goede bereikbaarheid met zowel het centrum van Maastricht, Lanaken en de omliggende gemeentes Bilzen en Zutendaal.

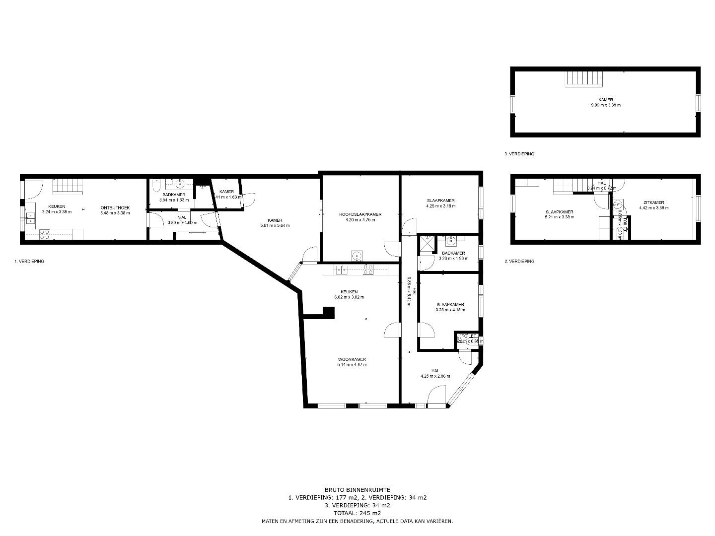
INDELING:

- Woning achterzijde:

Via de ruime inkomhal met gastentoilet heb je toegang tot zowel het nachtgedeelte met 2 slaapkamers en een ruime berging/slaapkamer, als de mooie leefruimte met open keuken. Deze keuken is uitgerust met alle comfort! Achtergelegen kan je de overdekte binnenplaats terugvinden die toegang geeft tot de andere woning aan de voorkant, gelegen aan de Brugstraat.

De woning is afgewerkt met degelijke materialen, er werd recent een nieuwe verwarmingsketel geïnstalleerd en de woning werd volledig voorzien van PVC ramen.

De tuin is eigendom van de Scheepvaart NV, het lopende huurcontract kan worden overgenomen.

- Woning voorzijde:

Via de poort aan de brugstraat heb je toegang tot een leefruimte met open keuken. Op de gelijkvloerse verdieping is er tevens nog een badkamer met toilet en toegang tot de achtergelegen woning via de overdekte binnenplaats.

Op de eerste verdieping bevinden zich een 2 ruime kamers waarvan een is ingedeeld als leefruimte en de andere als slaapkamer.

Via een vaste trap bereik je de zolder, hier kan je nog een leefruimte/slaapkamer inrichten.


Enkele PLUSPUNTEN van deze woning opgelijst:

+ Nieuwe verwarmingsketel !
+ Dubbele woonst !
+ Ligging langs het water !
+ Toplocatie nabij Maastricht !
+ Achtergelegen woning is instapklaar !
+ Lichtrijk en ruimtelijk !
+ Doodlopende straat !

Voor meer info of een bezoek ter plaatse kan u ons contacteren via info@sterkvastgoedmakelaars.be of bel ons op +32(0)468-271535.


Niet gevonden wat u zocht? Schrijf u dan vrijblijvend in en blijf op de hoogte van ons recentste aanbod.
Schrijf u in
Terug naar boven
Sluit menu STERK vastgoedmakelaars