U gebruikt een verouderde internetbrowser.
We raden u aan om de meest recente internetbrowser te installeren voor de beste weergave van deze website.
Een internetbrowser die up to date is, staat ook garant voor veilig surfen.

Helaas, dit pand is verkocht

3620 Lanaken

Omschrijving

IN OPTIE ! HEDENDAAGSE GEZINSWONING MET 3 SLPKS TE LANAKEN !

IN OPTIE ! HEDENDAAGSE GEZINSWONING MET 3 SLPKS TE LANAKEN !

Deze woning is gelegen op een ruim perceel van 596 m² op een toplocatie vlakbij het domein Pietersheim, de kinderboerderij en het natuurgebied ‘Nationaal park Hoge Kempen’. Ook het centrum van Lanaken, scholen, bibliotheek en winkels bevinden zich op fietsafstand.
Eveneens zijn de E314 en omliggende steden zoals Genk, Maasmechelen en Maastricht van hieruit vlot bereikbaar.

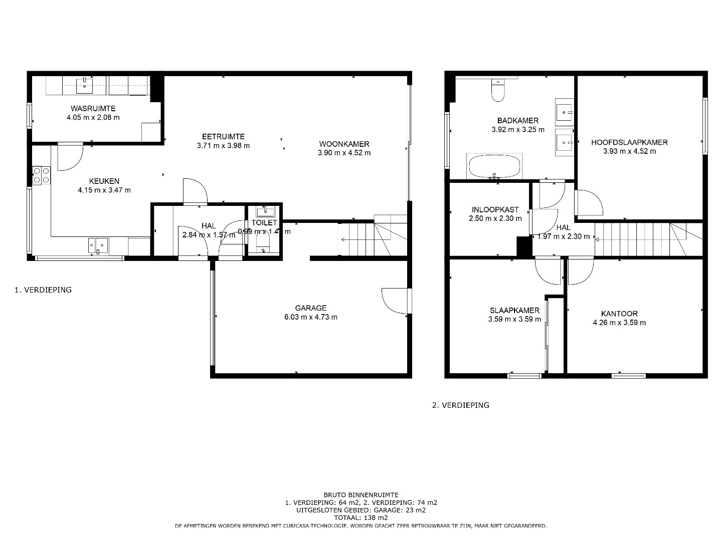
INDELING

Deze woning verwelkomt u in de inkomhal, compleet met een gastentoilet, en leidt u vervolgens naar de ruime en lichte leefruimte van +/- 32 m².
De woonkamer wordt gekenmerkt door zijn grote raampartijen waardoor er overvloedig natuurlijk licht binnenvalt.
Aansluitend aan de leefruimte bevindt zich de keuken, dewelke uitgerust is met alle moderne gemakken, waaronder een elektrische kookplaat, ingebouwde koelkast, geïntegreerd afwasmachine en een heteluchtoven.
Langs de keuken is er een praktische bijkeuken/wasruimte met een lavabo, voldoende opbergruimte en aansluitingen voor een wasmachine en droger.

Op de eerste verdieping bevinden zich de 3 comfortabele slaapkamers, waarvan de riante hoofdslaapkamer een oppervlakte heeft van +/- 18 m². Daarnaast biedt de inloopkast opslagruimte voor onder andere kleding en persoonlijke bezittingen.
De badkamer is bovendien uitgerust met een dubbele lavabo, bad-douche en toilet.

Deze woning biedt extra functionaliteit met een zolder, toegankelijk via een vlizotrap, en een volledig onderkelderd niveau met een kruipkelder.
Daarenboven biedt de ruime inpandige garage van +/- 29 m² voldoende ruimte voor het parkeren van voertuigen en extra opslag.

De fraai aangelegde tuin, deels betegeld en deels met gras bedekt, is gunstig georiënteerd op het zuidwesten.
Het terras is voorzien van een zonneluifel. Daarnaast is er een tuinhuis, met aangrenzend een overdekte loungehoek, waardoor u optimaal kunt genieten van de buitenomgeving.

Enkele PLUSPUNTEN van deze woning opgelijst:
+ Instapklaar !
+ EPC met label B !
+ Regenwaterput !
+ Ventilatiesysteem C+ !
+ Elektriciteit conform !

Meer info of een bezoek ter plaatse kan u ons contacteren via info@sterkvastgoedmakelaars.be of bel ons op +32(0)89-308888.


Niet gevonden wat u zocht? Schrijf u dan vrijblijvend in en blijf op de hoogte van ons recentste aanbod.
Schrijf u in
Terug naar boven
Sluit menu STERK vastgoedmakelaars