U gebruikt een verouderde internetbrowser.
We raden u aan om de meest recente internetbrowser te installeren voor de beste weergave van deze website.
Een internetbrowser die up to date is, staat ook garant voor veilig surfen.

Helaas, dit pand is verkocht

3620 Lanaken

Omschrijving

IN OPTIE ! EIGENTIJDSE GEZINSWONING IN LANAKEN-SMEERMAAS !

IN OPTIE ! EIGENTIJDSE GEZINSWONING IN LANAKEN-SMEERMAAS !

Op een boogscheut van Maastricht treffen we deze instapklare woning aan op een perceel van 591 m² gelegen in Smeermaas, deelgemeente van Lanaken.
Dankzij deze centrale locatie heeft u een goede bereikbaarheid met zowel het centrum van Maastricht, Lanaken en de omliggende gemeentes Bilzen en Zutendaal !
Alle faciliteiten zoals winkels, horeca, scholen, openbaar vervoer etc. zijn in de directe omgeving !

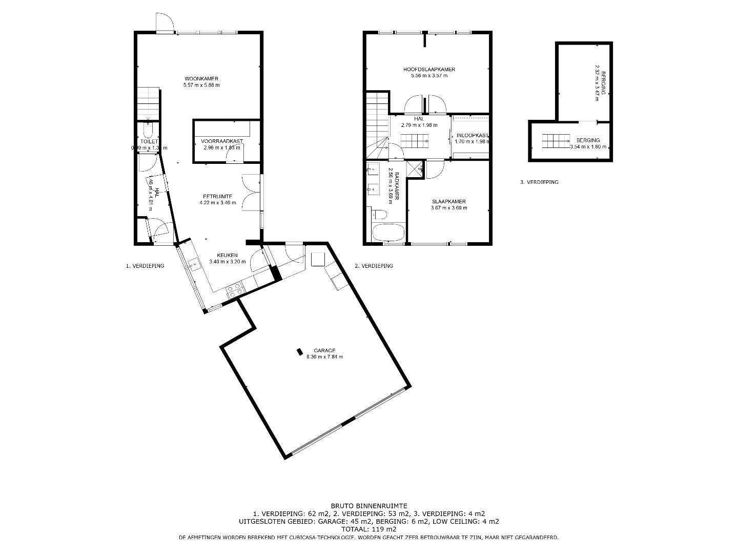
INDELING

Bij het betreden van de hal met gastentoilet, wordt u verwelkomd in het leefgedeelte van de woning.
De woonkamer biedt uitzicht op de weelderige tuin en het terras. Via de doorgang betreed men de eetkamer. Vanuit de eetkamer is er eveneens uitzicht op het tweede zuid-georiënteerde terras met automatische zonneluifel.
De L-vormige keuken staat in verbinding met de eetkamer, deze is voorzien van alle moderne apparatuur zoals een inductiekookplaat, ingebouwde koelkast, afwasmachine en combi-oven.
Bovendien is er op het gelijkvloers nog een bergruimte aanwezig.

Op de eerste verdieping vindt u 2 royale slaapkamers, waarvan de grootste kamer opgesplitst kan worden in 2 afzonderlijke slaapkamers. De badkamer, volledig vernieuwd in 2014, biedt een dubbele lavabo, ligbad, inloopdouche en toilet. Daarenboven is er in de badkamer elektrische vloerverwarming.

Praktisch gemak wordt verzekerd door de aanwezigheid van een zolderberging en een dubbele garage, dewelke van veel ruimte voorzien is.

De tuin is een oase van groen met 2 terrassen, waarvan 1 terras gedeeltelijk overdekt is. Het hekwerk in de tuin is in 2020 geplaatst en garandeert daarmee uw privacy. Daarnaast bevindt zich in de tuin een serre, dewelke ervoor zorgt dat men het hele jaar door kan genieten van de buitenomgeving.

Een bijkomend voordeel van deze woning is het duurzame karakter. Er zijn namelijk 19 zonnepanelen die jaarlijks 3 à 4 groenestroomcertificaten van €230/certificaat opleveren tot 2032.

Enkele PLUSPUNTEN van deze woning opgelijst:
+ Gelegen in een geliefde, kindvriendelijke omgeving !
+ Toplocatie nabij Maastricht, vlakbij alle faciliteiten !
+ EPC met label C !
+ Zonnepanelen !
+ Rolluiken !
+ Dubbele garage !

Voor meer info of een bezoek ter plaatse kan u ons contacteren via info@sterkvastgoedmakelaars.be of bel ons op +32(0)89-308888.


Niet gevonden wat u zocht? Schrijf u dan vrijblijvend in en blijf op de hoogte van ons recentste aanbod.
Schrijf u in
Terug naar boven
Sluit menu STERK vastgoedmakelaars