U gebruikt een verouderde internetbrowser.
We raden u aan om de meest recente internetbrowser te installeren voor de beste weergave van deze website.
Een internetbrowser die up to date is, staat ook garant voor veilig surfen.

Helaas, dit pand is verkocht

3621 Lanaken

Omschrijving

IN OPTIE ! TIJDLOZE WONING MET 3 SLPKS + 2 BADKAMERS OP EEN PERCEEL VAN 7A 68CA !

IN OPTIE ! TIJDLOZE WONING MET 3 SLPKS + 2 BADKAMERS OP EEN PERCEEL VAN 7A 68CA !

We vinden deze instapklare woning terug in Rekem, deelgemeente van Lanaken, gelegen op een onderhoudsvriendelijk perceel van 7a 68ca
De woning is gebouwd in 1994 en werd grotendeels gerenoveerd in 2022.
Dankzij deze ligging heeft u een goede bereikbaarheid met zowel het centrum van Lanaken, Maasmechelen, Maastricht en Zutendaal. Alle faciliteiten zoals winkels, scholen, dokters zijn op wandelafstand gelegen !

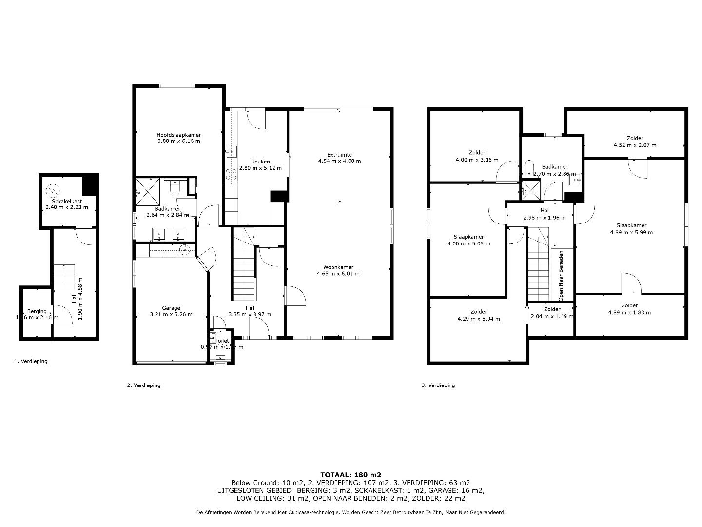
INDELING:

Bij het betreden van de woning leidt een ruime hal naar diverse ruimtes. Aan de rechterkant van het pand bevindt zich het leefgedeelte, bestaande uit een woon- en eetkamer met een aanzienlijke omvang van 46 m². Deze ruimte biedt uitzicht op de goed onderhouden tuin en grenst aan de moderne keuken, dewelke uitgerust met alle benodigde apparatuur.
Aan de linkerzijde van de woning bevindt zich de hoofdslaapkamer met ensuite badkamer, voorzien van een dubbele lavabo, inloopdouche en toilet. Dit maakt de woning geschikt voor gelijkvloers wonen, wat een praktisch voordeel biedt.

Op de eerste verdieping zijn er 2 slaapkamers met voldoende opbergruimte dankzij zolderbergingen. Deze kamers, met respectievelijke oppervlakten van 20 en 30 m², worden aangevuld met een tweede badkamer en extra zolderberging.
De badkamer op deze verdieping bestaat uit een lavabo, douche en toilet.

De zuidwestelijk georiënteerde tuin is voorzien van een royaal overdekt terras en een goed onderhouden gazon, samen met een tuinhuis voor extra opslagruimte. Daarnaast beschikt de woning nog over een kelderberging + kruipkelder en een garage met elektrische poort.

Enkele PLUSPUNTEN van deze woning opgelijst:
+ Gelegen op een rustige locatie te Rekem !
+ Degelijk afgewerkt met hoogwaardige materialen !
+ EPB label B !
+ 14 zonnepanelen !
+ Elektriciteit conform !
+ Centraal stofzuigsysteem !
+ Levensbestendig wonen op een toplocatie !

Voor meer info of een bezoek ter plaatse kan u ons contacteren via info@sterkvastgoedmakelaars.be of bel ons op +32(0)89-308888.


Niet gevonden wat u zocht? Schrijf u dan vrijblijvend in en blijf op de hoogte van ons recentste aanbod.
Schrijf u in
Terug naar boven
Sluit menu STERK vastgoedmakelaars