U gebruikt een verouderde internetbrowser.
We raden u aan om de meest recente internetbrowser te installeren voor de beste weergave van deze website.
Een internetbrowser die up to date is, staat ook garant voor veilig surfen.

Helaas, dit pand is verkocht

3620 Lanaken

Omschrijving

IN OPTIE ! CHARMANTE GEZINSWONING MET 4 SLPKS IN EEN GELIEFDE OMGEVING TE LANAKEN !

CHARMANTE GEZINSWONING MET 4 SLPKS IN EEN GELIEFDE OMGEVING TE LANAKEN !

We treffen deze instapklare gezinswoning van de jaren '60 aan op een mooi perceel van 896 m². De woning biedt voldoende privacy en rust, terwijl er toch voldoende voorzieningen in de buurt zijn. Het centrum van Lanaken, scholen, bibliotheek en winkels bevinden zich op fietsafstand.
Eveneens zijn de E314 en omliggende steden zoals Zutendaal, Maasmechelen en Maastricht van hieruit vlot bereikbaar.

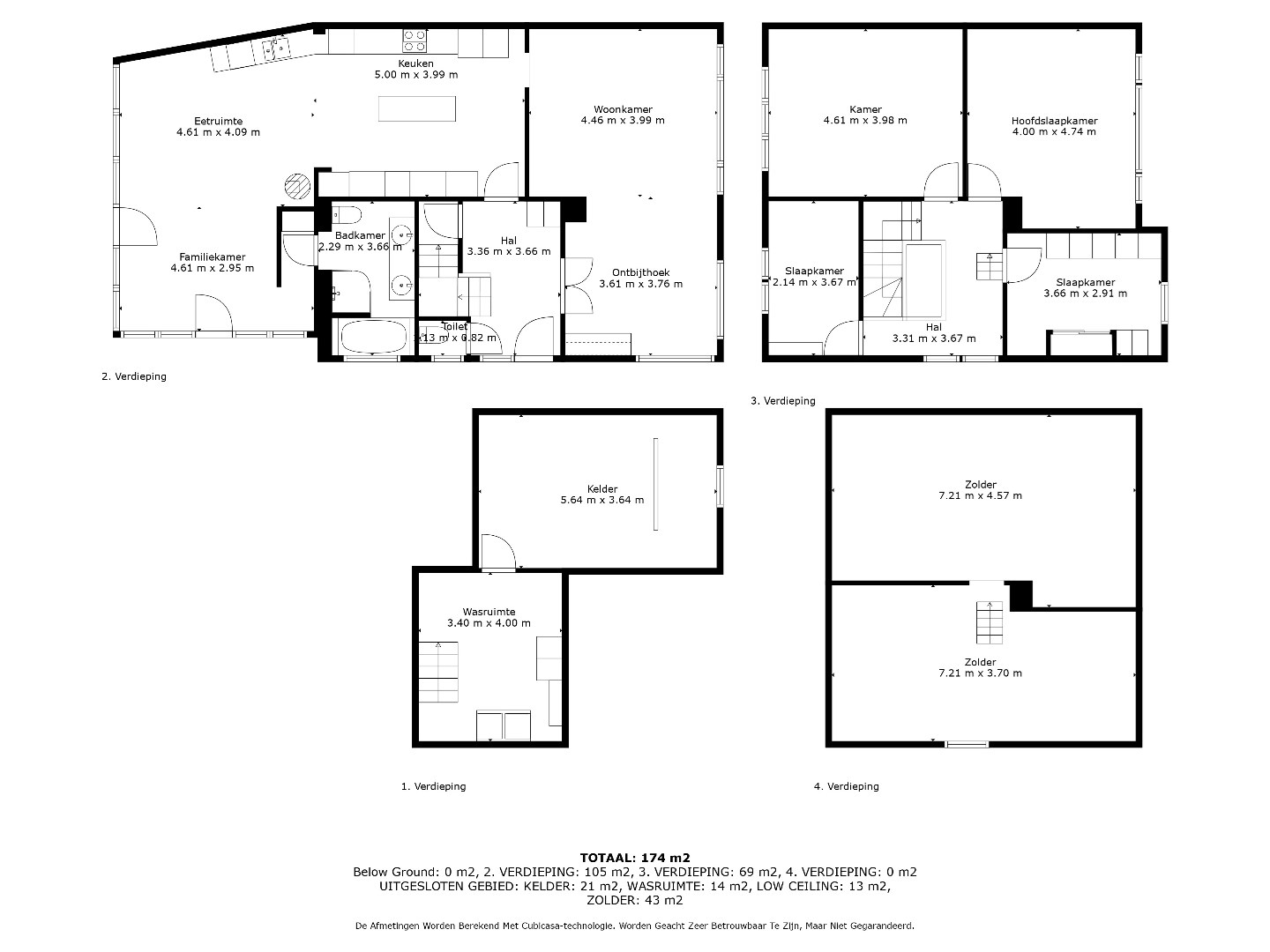
INDELING:

Vanuit de inkomhal wordt men geleid naar de woonkamer met eethoek.
Deze leefruimte biedt, net zoals de inkomhal, toegang naar de riante keuken. De keuken werd in 2014 volledig vernieuwd en is uitgerust met alle hedendaagse voorzieningen van het merk AEG. Denk hierbij aan een inductiekookplaat, ingebouwde koelkast, diepvriezer, afwasmachine, magnetron en combi-oven.
De keuken is naadloos verbonden met de ruime veranda. De veranda biedt de mogelijkheid voor het inrichten van een zit- en eethoek met uitzicht op de fraai aangelegde tuin.
Verder vinden we op het gelijkvloers de badkamer terug. Deze is voorzien van een dubbele lavabo, ligbad, douche en toilet. Er is bovendien nog een tweede toilet aanwezig op het gelijkvloers, zijnde in een aparte ruimte.

Op de eerste verdieping vinden we de 4 slaapkamers terug. De kamer variëren tussen de 8 en 18 m². De kamer van 8 m² deed vroeger dienst als badkamer en kan perfect opnieuw zo ingericht worden.

De woning beschikt tevens over een kelderberging en een zolderverdieping, te bereiken via vlizotrap.
Na het plaatsen van een vaste trap is de zolder eventueel nog om te vormen naar extra slaapkamers.

De zuid-oostelijk georiënteerde tuin is voorzien van een terras en mooi uitgestrekt gazon met tuinhuis, ideaal voor het opbergen van fietsen, gereedschap, etc.
De eyecatcher van de tuin is het overdekt terras met praktische buitenberging.

Enkele PLUSPUNTEN van deze woning opgelijst:
+ Gelegen op een toplocatie, nabij het centrum !
+ Lange oprit met voldoende parkeergelegenheid !
+ Grote bewoonbare oppervlakte van circa 200 m² !
+ 4 slaapkamers !
+ Zonnepanelen !
+ Airco !

Voor meer info of een bezoek ter plaatse kan u ons contacteren via info@sterkvastgoedmakelaars.be of bel ons op +32(0)89-308888.


Niet gevonden wat u zocht? Schrijf u dan vrijblijvend in en blijf op de hoogte van ons recentste aanbod.
Schrijf u in
Terug naar boven
Sluit menu STERK vastgoedmakelaars