U gebruikt een verouderde internetbrowser.
We raden u aan om de meest recente internetbrowser te installeren voor de beste weergave van deze website.
Een internetbrowser die up to date is, staat ook garant voor veilig surfen.

Helaas, dit pand is verkocht

3620 Lanaken

Omschrijving

IN OPTIE ! GEZINSWONING MET EEN BEWOONBARE OPP. VAN 198 M² OP EEN MOOI PERCEEL AAN DE MAAS !

IN OPTIE ! GEZINSWONING MET EEN BEWOONBARE OPP. VAN 198 M² OP EEN MOOI PERCEEL AAN DE MAAS !

We vinden deze jaren '60-woning terug op een ruim perceel van 8a 41ca in Smeermaas.
Dankzij deze centrale locatie heeft u een goede bereikbaarheid met zowel het centrum van Maastricht, Lanaken en de omliggende gemeentes Bilzen en Zutendaal. Het centrum van zowel Lanaken, als Maastricht zijn binnen 5 minuten te bereiken.

Alle faciliteiten zoals winkels, scholen, horeca, het openbaar vervoer bevinden zich in de directe omgeving.

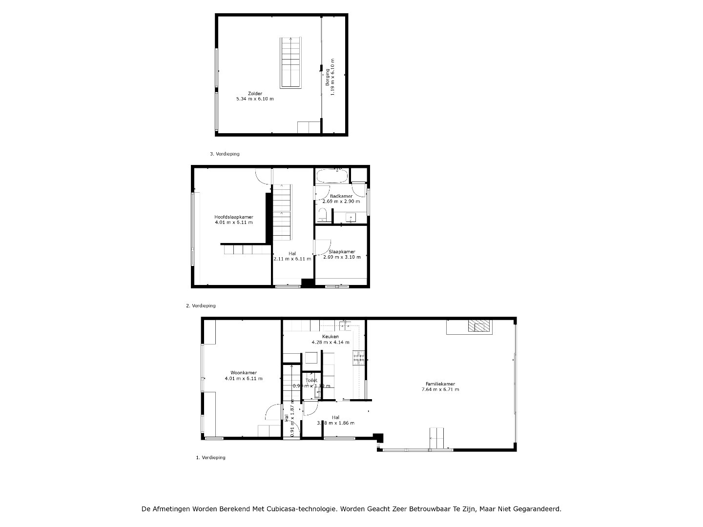
INDELING:

Bij binnenkomst in de hal kan men de keuken met aansluitend de ruime leefkamer van +/- 51 m² betreden. De leefruimte is voorzien van een gezellige gashaard en verleent toegang tot de tuin. De L-vormige keuken is uitgerust met een gasfornuis, ingebouwde koelkast met diepvries, afwasmachine, oven en meer dan voldoende opbergruimte. Tevens bevindt zich op de begane grond nog een apart toilet en bureauruimte. Deze kamer kan uiteraard ook een andere invulling krijgen zoals bijvoorbeeld een vierde slaapkamer of ruimte voor het uitoefenen van een vrij beroep/bijberoep.

Op de eerste verdieping bevinden zich 2 slaapkamers en een badkamer. De master bedroom beschikt over een inloopkast en biedt prachtig uitzicht over de Maas.
De badkamer is momenteel voorzien van een wastafel, bad-douchecombinatie en toilet.

Vanuit de nachthal is er een vaste trap naar de zolderverdieping. Deze verdieping kan onder andere dienen als slaapkamer, hobbykamer, kantoorruimte of speelkamer. Bovendien zijn er ook inbouwkasten aanwezig, ideaal voor het opbergen van persoonlijke spullen.

De grote troef van deze woning is zijn buitenomgeving, gelegen in een schilderachtige setting bij de Maas. De achtertuin is fraai aangelegd met diverse beplantingen en gezellige hoekjes.
Daarnaast beschikt de woning ook over een praktisch tuinhuis en een carport, dewelke de mogelijkheid biedt om 2 wagens te parkeren. In de voortuin kan men genieten van de rust die de Maas met zich meebrengt.

Enkele PLUSPUNTEN van deze woning opgelijst:
+ Toplocatie, aan de Maas !
+ Elektriciteit conform !
+ Energiezuinig, EPC label B !
+ Zonnepanelen van 2023 !
+ Airco op de zolder !
+ Optie tot 4 slaapkamers !
+ Voldoende parkeergelegenheid op eigen terrein !

Voor meer info of een bezoek ter plaatse kan u ons contacteren via info@sterkvastgoedmakelaars.be of bel ons op +32(0)89-308888.


Niet gevonden wat u zocht? Schrijf u dan vrijblijvend in en blijf op de hoogte van ons recentste aanbod.
Schrijf u in
Terug naar boven
Sluit menu STERK vastgoedmakelaars