U gebruikt een verouderde internetbrowser.
We raden u aan om de meest recente internetbrowser te installeren voor de beste weergave van deze website.
Een internetbrowser die up to date is, staat ook garant voor veilig surfen.

Helaas, dit pand is verkocht

3620 Lanaken

Omschrijving

IN OPTIE ! OP TE FRISSEN WONING MET 3 SLPKS + UITBREIDINGSMOGELIJKHEDEN TE NEERHAREN !

IN OPTIE ! OP TE FRISSEN WONING MET 3 SLPKS + UITBREIDINGSMOGELIJKHEDEN TE NEERHAREN !

We treffen deze jaren '30-woning aan in Neerharen, deelgemeente van Lanaken, op een onderhoudsvriendelijk perceel van 6a 56ca. We vinden het bos, de kinderboerderij en het gekende hotel "La Butte aux Bois" op fietsafstand terug. Andere faciliteiten zoals winkels, horeca en scholen bevinden zich in de directe omgeving.
De woning bevindt zich op nog geen 100 m van het openbaar vervoer en er is tevens een goede bereikbaarheid met de E314 en de omliggende gemeentes Lanaken, Maasmechelen, Maastricht en Zutendaal.

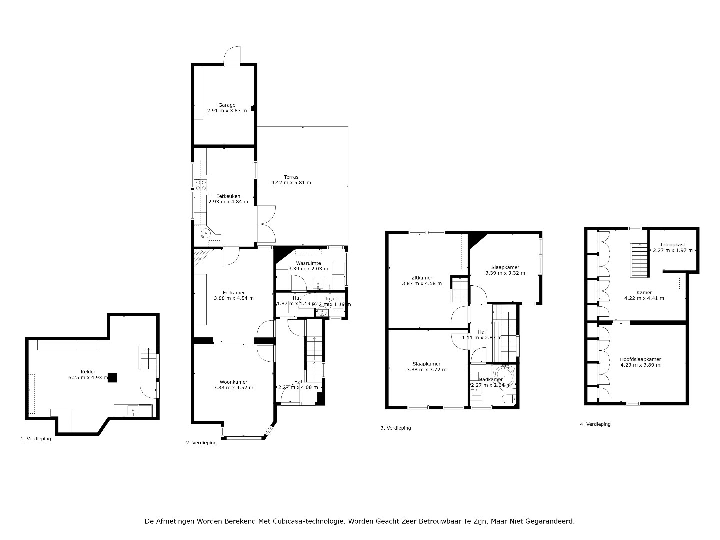
INDELING:

Bij binnenkomst in de woning betreed men via de hal de leefruimte. Deze ruimte bestaat uit een gezellige woonkamer en een eetkamer. De leefruimte wordt extra sfeervol gemaakt door de aanwezigheid van zowel een pelletkachel, als een elektrische haard.
De aansluitende keuken is praktisch ingericht met een elektrische kookplaat, ingebouwde koelkast en afwasmachine. Verder is er op het gelijkvloers een handige wasruimte aanwezig.

Op de eerste verdieping bevinden zich 3 slaapkamers en de badkamer.
De badkamer is voorzien van een wastafel, bad-douchecombinatie en toilet.

Vanuit de masterbedroom is er een vaste trap naar de zolderverdieping. Deze verdieping biedt veel mogelijkheden om de ruimtes naar eigen wens in te richten. Hier treft men namelijk 2 extra kamers, dewelke kunnen dienen als extra slaapkamers, thuiskantoor, hobbyruimte of speelkamer.

De woning beschikt over een zuid-gerichte tuin, dewelke volledig omheind is. Dit zorgt niet alleen voor voldoende privacy, maar ook voor een veilige omgeving. De tuin bestaat uit een terras, dewelke toegankelijk is vanuit de keuken, en een gazon. Verder zijn er op eigen terrein meerdere parkeerplaatsen aanwezig.

Enkele PLUSPUNTEN van deze woning opgelijst:
+ Centraal gelegen, nabij alle voorzieningen !
+ Zuidgerichte tuin !
+ Tal van mogelijkheden door de zolderverdieping !
+ Veel parkeergelegenheid op eigen terrein !
+ Op te frissen naar eigen smaak en budget !

Meer info of een bezoek ter plaatse kan u ons contacteren via info@sterkvastgoedmakelaars.be of bel ons op +32(0)89-308888.


Niet gevonden wat u zocht? Schrijf u dan vrijblijvend in en blijf op de hoogte van ons recentste aanbod.
Schrijf u in
Terug naar boven
Sluit menu STERK vastgoedmakelaars