U gebruikt een verouderde internetbrowser.
We raden u aan om de meest recente internetbrowser te installeren voor de beste weergave van deze website.
Een internetbrowser die up to date is, staat ook garant voor veilig surfen.

Helaas, dit pand is verkocht

3620 Lanaken

Omschrijving

IN OPTIE ! INSTAPKLARE GEZINSWONING OP EEN BOOGSCHEUT VAN MAASTRICHT !

IN OPTIE ! INSTAPKLARE GEZINSWONING OP EEN BOOGSCHEUT VAN MAASTRICHT !

We vinden deze woning terug in Smeermaas, deelgemeente van Lanaken, op slechts 200 meter van de Nederlandse grens. Vanuit deze locatie fietst u in slechts 15 minuten naar het bruisende centrum van Maastricht, waar u alles vindt wat u nodig heeft zoals onder andere winkels, horeca, culturele bezienswaardigheden ... Bovendien bent u ook dichtbij het centrum van Lanaken, Maasmechelen en Zutendaal. In de directe omgeving zijn tal van winkels, scholen en een bushalte.

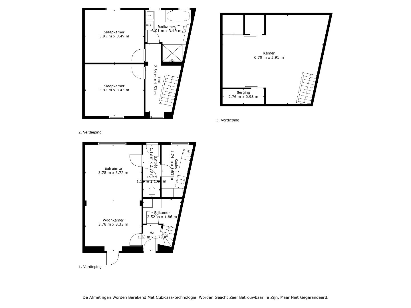
INDELING:

Bij binnenkomst in de woning bevindt zich aan de rechterkant de lichtrijke leefkamer van 27 m².
Deze ruimte biedt directe toegang tot de hal met een praktische berging, die vervolgens leidt naar de tuin.
Aan de andere zijde van de woning bevindt zich de moderne keuken, uitgerust met een inductiekookplaat, ingebouwde koelkast, afwasmachine en combi-oven.

Op de eerste verdieping vinden we 2 slaapkamers terug. Deze kamers hebben ieder een oppervlakte van circa 14 m². Verder vinden we hier de volledig uitgeruste badkamer terug. In de badkamer is er een dubbele wastafel, ligbad, ruime inloopdouche en toilet aanwezig.

Vanuit de nachthal is er toegang naar de royale zolderverdieping. De zolder is volledig afgewerkt en voorzien van inbouwkasten, waardoor deze perfect dienst kan doen als derde slaapkamer. Daarnaast beschikt de woning over een kelderberging van +/- 12 m².

De tuin is volledig betegeld en onderhoudsvriendelijk, en dankzij de omheining geniet u van optimale privacy. In de directe nabijheid van de woning zijn er voldoende parkeerplaatsen beschikbaar.

Enkele PLUSPUNTEN van deze woning opgelijst:
+ Toplocatie, 200 meter van de Nederlandse grens !
+ 3 slaapkamers !
+ Energiezuinig, EPC label B !
+ Elektriciteit conform !
+ Asbestveilig !
+ Zonnepanelen !

Alle dossierstukken kan u terugvinden op onze website www.sterkvastgoedmakelaars.be onder het tabblad 'downloads'.

Voor een bezoek ter plaatse kan u ons contacteren via info@sterkvastgoedmakelaars.be of bel ons op +32(0)89-308888.


Niet gevonden wat u zocht? Schrijf u dan vrijblijvend in en blijf op de hoogte van ons recentste aanbod.
Schrijf u in
Terug naar boven
Sluit menu STERK vastgoedmakelaars