U gebruikt een verouderde internetbrowser.
We raden u aan om de meest recente internetbrowser te installeren voor de beste weergave van deze website.
Een internetbrowser die up to date is, staat ook garant voor veilig surfen.

Bisschoppenstraat 1 , 3620 Lanaken

Omschrijving

IN OPTIE ! BEN-WONING MET 3 SLPKS OP EEN KINDVRIENDELIJKE LOCATIE TE LANAKEN !

IN OPTIE ! BEN-WONING MET 3 SLPKS OP EEN KINDVRIENDELIJKE LOCATIE TE LANAKEN !

We vinden deze bijna-energieneutrale woning terug op een rustige, doch centrale locatie in Lanaken.
De woning is gunstig gelegen op fietsafstand van het centrum van Lanaken. Bovendien is er in de directe nabijheid een scala aan voorzieningen zoals winkels, dokters en scholen. Daarnaast zijn omliggende gemeentes zoals Zutendaal, Maasmechelen, Bilzen en Maastricht makkelijk te bereiken.

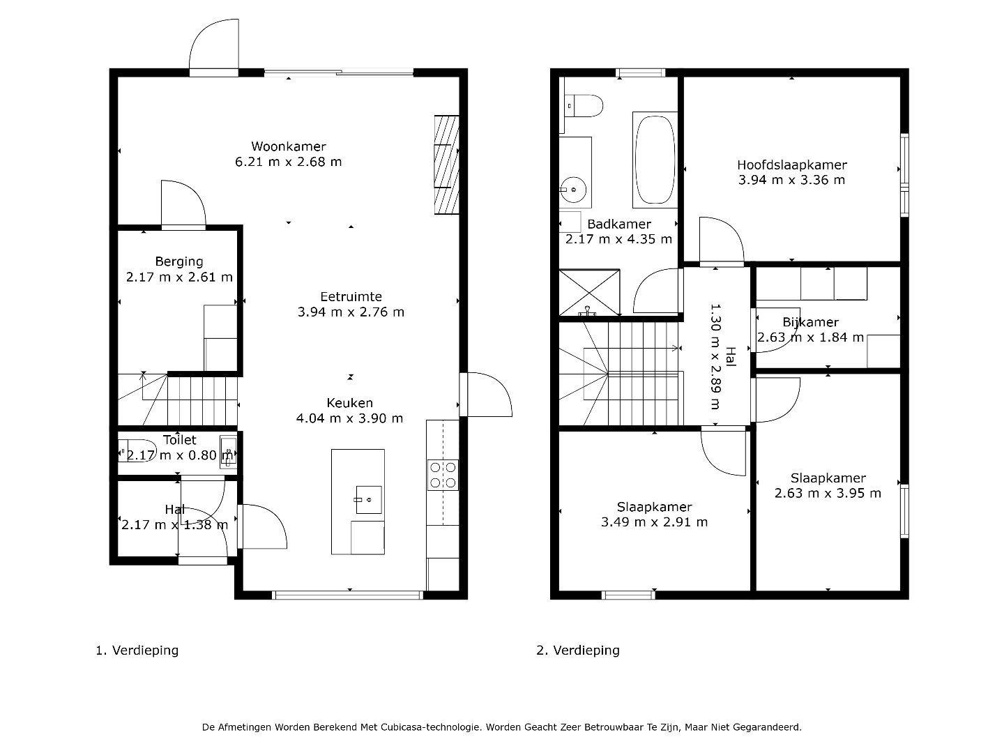
INDELING:

Via de inkomhal met gastentoilet betreedt men de open leefruimte, bestaande uit een gezellige woonkamer met elektrische haard en uitzicht op de tuin. Aansluitend vindt men de eetruimte en een volledig uitgeruste keuken met moderne toestellen zoals een elektrische kookplaat, quooker, ingebouwde koelkast, afwasmachine, oven en magnetron. Verder is er op het gelijkvloers ook een praktische berging en directe toegang tot de tuin.

Op de eerste verdieping bevinden zich 3 slaapkamers, een berging en de badkamer. De moderne badkamer is volledig uitgerust met een wastafel, ligbad, inloopdouche en toilet.

De zuidwestelijk-georiënteerde tuin beschikt over een ruim terras en een gazon. Bovendien is er ook een carport aanwezig voor het overdekt parkeren van uw wagen.

Enkele PLUSPUNTEN van deze woning opgelijst:
+ Toplocatie, gelegen op een rustige doch centrale locatie !
+ Op fietsafstand gelegen van het centrum van Lanaken !
+ Bouwjaar 2022 !
+ Energiezuinig, EPC label A !
+ Zuid-westelijk georiënteerd perceel !
+ Ventilatiesysteem D !
+ Regenwaterput (tuin + toilet) !
+ Zonnepanelen !

Alle dossierstukken kan u terugvinden onder het tabblad 'downloads'.

Voor een bezoek ter plaatse kan u ons contacteren via info@sterkvastgoedmakelaars.be of bel ons op +32(0)89-308888.


Kenmerken

Algemeen

Adres:Bisschoppenstraat 1
Lanaken
Referentie:TK381
Type:Woning
Beschikbaar vanaf:Bij akte
Perceeloppervlakte:337 m²
Bewoonbare opp.:144 m²
Type constructie:Traditioneel
Bouwjaar:2022
Algemene staat:Instapklaar

Indeling

Slaapkamers:3
Badkamers:Ja
WC:2
Woonkamer:Ja
Keuken:Ja
Berging:Ja
Wasplaats:Ja
Tuin:Ja
Tuin oriëntatie:Zuid-West
Tuin kwaliteit:Normaal
Garage:1 (1 plaats)
Garage Types:Carport
Parking:4

Comfort

Busknooppunt:Ja - op minder dan 500 m
Winkel:Ja
School:Ja
Kinderopvang:Ja
Bank:Ja
Ontspanning:Ja
Restaurant:Ja
Raamwerk:Aluminium
Beglazing:Dubbel
Elektriciteit:Conform
Verwarming:Open haard, Aardgas
Mech. ventilatie :Ja - D
Zonnepanelen:Ja

Kadastrale gegevens

Niet geïndexeerd K.I.:€ 702
Kadastrale benaming:Afd 2 Sectie E
Kadastrale Nummers:695A P0000
Kadastrale Oppervlakte:337 m²

Informatieplicht

EPC Index:26,00 kWh/(m² jaar)
Energielabel:A
Renovatieplicht:Neen
Stedenbouwkundige vergunning:Ja
Voorkooprecht:Neen
Verkavelingsvergunning van toepassing:Ja
Stedenbouwkundige bestemming:Woonuitbreidingsgebied
Dagvaarding en herstelvordering:Geen rechterlijke herstelmaatregel of bestuurlijke maatregel opgelegd
Overstromingsgevoelig:Niet meegedeeld
Overstromingsgebied:Niet meegedeeld
Overstromingskans perceel (P-score):A
Overstromingskans gebouw (G-score):A
Erfgoed:Geen beschermd erfgoed

Ligging

Neem vrijblijvend contact op

Wenst u meer informatie of het pand te bezoeken? Contacteer ons vrijblijvend voor meer informatie. 
Wanneer wij uw aanvraag hebben ontvangen zullen wij verder contact met u opnemen. 


U moet akkoord gaan met het privacybeleid van deze website
* Verplicht in te vullen

Chanou Bastiaens

Commercieel medewerker
089 30 88 88
chanou@sterkvastgoedmakelaars.be
Niet gevonden wat u zocht? Schrijf u dan vrijblijvend in en blijf op de hoogte van ons recentste aanbod.
Schrijf u in
Terug naar boven
Sluit menu STERK vastgoedmakelaars