U gebruikt een verouderde internetbrowser.
We raden u aan om de meest recente internetbrowser te installeren voor de beste weergave van deze website.
Een internetbrowser die up to date is, staat ook garant voor veilig surfen.

Helaas, dit pand is verkocht

3620 Lanaken

Omschrijving

IN OPTIE ! RUIME GEZINSWONING MET 5 SLPKS IN SMEERMAAS, VLAK BIJ DE NEDERLANDSE GRENS !

IN OPTIE ! RUIME GEZINSWONING MET 5 SLPKS IN SMEERMAAS, VLAK BIJ DE NEDERLANDSE GRENS !

We vinden deze instapklare gezinswoning terug in Smeeraas, deelgemeente van Lanaken en op slechts enkele meters van de Nederlandse grens. Dankzij de centrale ligging bevinden tal van winkels zich op fietsafstand, en het openbaar vervoer en de basisschool liggen om de hoek. Hierdoor geniet je van een uitstekende bereikbaarheid en alle nodige faciliteiten binnen handbereik.

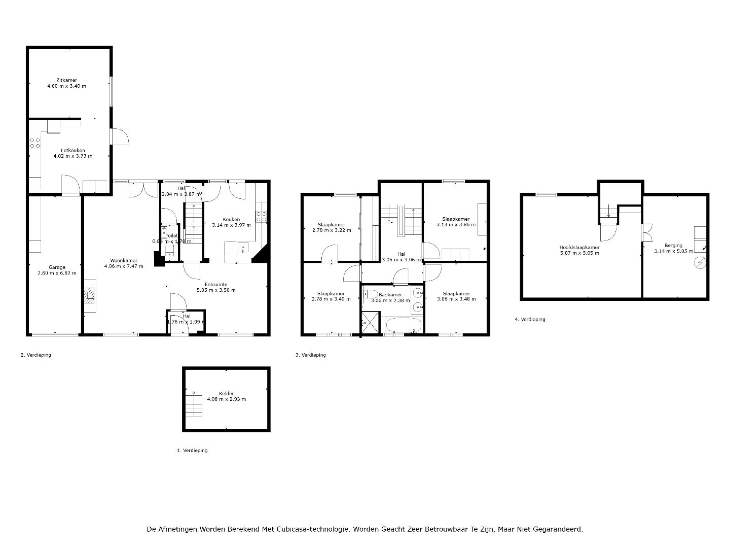
INDELING:

Bij het betreden van de woning bevindt men zich in de leefruimte, dewelke voorzien is van een gezellige houtkachel. De aangrenzende keuken werd in 2020 volledig vernieuwd en is uitgerust met een moderne inductiekookplaat, ingebouwde koelkast, afwasmachine en combi-oven. Daarnaast is de keuken ook voorzien van voldoende opbergruimte en een ontbijthoek.
Een unieke troef van deze woning is het extra leefgedeelte, dewelke zowel via de garage als via de tuin toegankelijk is. Dit gedeelte beschikt over een zitkamer en een tweede keuken, wat het ideaal maakt voor extra woonruimte of een aparte studio. Dit deel is volledig op te frissen naar eigen smaak en biedt tal van mogelijkheden.

Op de eerste verdieping bevinden zich 4 slaapkamers met oppervlaktes tussen 9 en 12 m². De recent vernieuwde badkamer biedt alle comfort, met een dubbele lavabo, inloopdouche, ligbad en toilet. Via de vaste trap in de nachthal bereikt men de zolderverdieping. Deze ruimte is momenteel ingericht als een royale slaapkamer van maar liefst 30 m². Daarnaast is er een aparte technische ruimte dewelke extra opbergruimte biedt.

De woning beschikt tevens over een kelderberging van circa 12 m² en een inpandige garage. De zuidoostelijk georiënteerde tuin biedt 2 overdekte terrassen en een tuinhuis. De rest van de tuin is nog volledig naar eigen smaak aan te leggen.

Enkele PLUSPUNTEN van deze woning opgelijst:
+ Toplocatie, op een steenworp van Maastricht !
+ Bewoonbare oppervlakte van 208 m² !
+ Tot 5 slaapkamers !
+ Elektriciteit conform !
+ 19 zonnepanelen !
+ Rolluiken !

Alle dossierstukken kan u terugvinden onder het tabblad 'downloads'.

Voor een bezoek ter plaatse kan u ons contacteren via info@sterkvastgoedmakelaars.be of bel ons op +32(0)89-308888.


Niet gevonden wat u zocht? Schrijf u dan vrijblijvend in en blijf op de hoogte van ons recentste aanbod.
Schrijf u in
Terug naar boven
Sluit menu STERK vastgoedmakelaars