U gebruikt een verouderde internetbrowser.
We raden u aan om de meest recente internetbrowser te installeren voor de beste weergave van deze website.
Een internetbrowser die up to date is, staat ook garant voor veilig surfen.

Helaas, dit pand is verkocht

3621 Lanaken

Omschrijving

IN OPTIE ! RUIME GEZINSWONING OP EEN PRACHTIG PERCEEL VAN CIRCA 27 ARE TE REKEM !

IN OPTIE ! RUIME GEZINSWONING OP EEN PRACHTIG PERCEEL VAN CIRCA 27 ARE TE REKEM !

We vinden deze instapklare woning met een bewoonbare oppervlakte van 308 m² terug in Rekem, deelgemeente van Lanaken. Dankzij deze ligging heeft u een goede bereikbaarheid met zowel het centrum van Lanaken, Maasmechelen, Maastricht en Zutendaal. Alle faciliteiten zoals winkels, scholen, dokters zijn op wandelafstand gelegen !

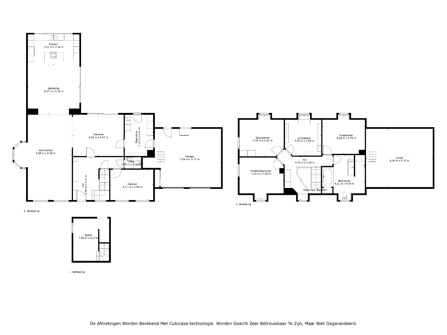
INDELING:

De woning is bereikbaar via de ruime oprit, afgesloten met een automatische poort.

Bij het betreden van de woning komt men terecht in de inkomhal, dewelke toegang biedt tot de royale, lichtrijke leefruimte. Deze ruimte van circa 68 m² sluit naadloos aan op de open keuken, die uitkijkt op de prachtig aangelegde tuin. De keuken is uitgerust met alle moderne comfort, waaronder een natuurstenen werkblad, inductiekookplaat, ingebouwde koelkast, diepvriezer, vaatwasser, oven, microgolfoven, combi-oven en stoomoven.

Op het gelijkvloers bevindt zich ook een praktische wasruimte met toegang tot de tuin en de dubbele inpandige garage. Daarnaast is er een aparte bureauruimte, dewelke flexibel ingericht kan worden als hobbykamer, speelruimte of extra slaapkamer.

Op de eerste verdieping vindt men 4 ruime slaapkamers, met oppervlaktes tussen de 14 en 18 m², en de badkamer terug. Eén van de slaapkamers is momenteel ingericht als inloopkast en 2 slaapkamers beschikken over airconditioning.
De badkamer is voorzien van een wastafel, ligbad, inloopdouche en toilet.

De woning beschikt bovendien over een kelderberging en een zolderruimte.

De tuin omringt de woning en is aangelegd met een mooi gazon, 2 terrassen (waarvan 1 overdekt en rechtstreeks bereikbaar via de keuken) en een tuinhuis. Samen met de ruime oprit vormt dit perceel een ideale buitenruimte voor wie houdt van rust en comfort.

Enkele PLUSPUNTEN van deze woning opgelijst:
+ Gelegen op een rustige locatie te Rekem !
+ Mooi perceel van 26a 70ca !
+ Ruime bewoonbare oppervlakte van 308 m² !
+ 4 tot 5 slaapkamers !
+ 34 zonnepanelen + 2 batterijen !
+ Laadpaal !
+ Alarm !
+ Rolluiken !

Alle dossierstukken kan u terugvinden onder het tabblad 'downloads'.

Voor een bezoek ter plaatse kan u ons contacteren via info@sterkvastgoedmakelaars.be of bel ons op +32(0)89-308888.


Niet gevonden wat u zocht? Schrijf u dan vrijblijvend in en blijf op de hoogte van ons recentste aanbod.
Schrijf u in
Terug naar boven
Sluit menu STERK vastgoedmakelaars