U gebruikt een verouderde internetbrowser.
We raden u aan om de meest recente internetbrowser te installeren voor de beste weergave van deze website.
Een internetbrowser die up to date is, staat ook garant voor veilig surfen.

Oude Heirbaan 102 , 3620 Lanaken
Vraagprijs: € 249.000

Omschrijving

OP TE KNAPPEN GEZINSWONING MET VEEL POTENTIEEL NABIJ MAASTRICHT !

OP TE KNAPPEN GEZINSWONING MET VEEL POTENTIEEL NABIJ MAASTRICHT !

We vinden deze woning met een bewoonbare oppervlakte van 202 m² terug op een perceel van 6a 83ca te Smeermaas, deelgemeente van Lanaken. De woning bevindt zich vlak bij de Maas en op een boogscheut van Maastricht. In de directe omgeving zijn winkels, scholen, horeca en openbaar vervoer vlot bereikbaar, terwijl ook het centrum van Lanaken en Maastricht zich op korte afstand bevinden.

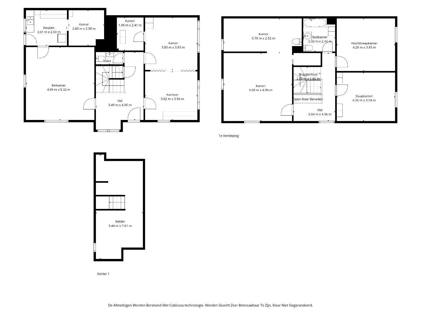
INDELING:

Bij het betreden van de woning komt men terecht in de inkomhal, dewelke meteen toegang geeft tot de verschillende leefruimtes. De lichtrijke woonkamer biedt voldoende plaats voor een gezellige zithoek en beschikt bovendien over een praktische berging. Aan de andere zijde van de woning bevindt zich de eetkamer met aansluitend de keuken, die uitgeeft op de tuin en volop potentieel biedt om te moderniseren en in te richten naar eigen smaak. De aanwezige ruimtes zijn flexibel inzetbaar en kunnen bijvoorbeeld ook dienstdoen als bureau, hobbyruimte of extra slaapkamer.

Op de eerste verdieping bevinden zich 3 slaapkamers en de badkamer. De slaapkamers beschikken over mooie oppervlaktes, variërend tussen 15 en 25 m². De hoofdslaapkamer is voorzien van een berging en aangrenzende ruimte van circa 15 m², waar zich momenteel een toilet bevindt.

Verder beschikt de woning over een kelderberging, die extra opslagruimte biedt.

Buiten geniet men van een groene tuin met voldoende privacy, waar het aangenaam vertoeven is. De tuin biedt tal van mogelijkheden voor ontspanning en tuinliefhebbers. Daarnaast is er ook een garage aanwezig, dewelke directe toegang biedt tot de tuin.

Enkele PLUSPUNTEN van deze woning opgelijst:
+ Op een steenworp gelegen van het bruisende Maastricht !
+ Mooi perceel van 6a 83ca !
+ 3 ruime slaapkamers met uitbreidingsmogelijkheden !
+ Garage !
+ Vlotte verbinding naar het centrum van Lanaken !
+ Te renoveren naar eigen smaak en wens !

Alle dossierstukken kan u terugvinden onder het tabblad 'downloads'.

Voor een bezoek ter plaatse kan u ons contacteren via info@sterkvastgoedmakelaars.be of bel ons op +32(0)89-308888.


Kenmerken

Algemeen

Adres:Oude Heirbaan 102
Lanaken
Referentie:TK460
Vraagprijs:€ 249.000
Type:Woning
Beschikbaar vanaf:Bij akte
Perceeloppervlakte:683 m²
Bewoonbare opp.:202 m²
Type constructie:Traditioneel
Bouwjaar:1987
Algemene staat:Te renoveren

Indeling

Slaapkamers:3
Badkamers:1
WC:3
Woonkamer:Ja
Keuken:Ja
Berging:Ja
Kelder:Ja
Tuin:Ja
Tuin oriëntatie:Noord
Tuin kwaliteit:Normaal
Garage:1 (1 plaats)
Parking:Ja

Comfort

Bushalte:Ja - op minder dan 500 m
Winkel:Ja
School:Ja
Kinderopvang:Ja
Bank:Ja
Ontspanning:Ja
Restaurant:Ja
Raamwerk:Hout
Beglazing:Dubbel
Elektriciteit:Niet conform
Verwarming:Elektriciteit
Rolluiken:Ja

Kadastrale gegevens

Niet geïndexeerd K.I.:€ 996
Kadastrale benaming:Afd 1
Kadastrale Nummers:660Y P0000, P0001 en P0002
Kadastrale Oppervlakte:683 m²

Informatieplicht

EPC Index:528,00 kWh/(m² jaar)
Energielabel:F
Renovatieplicht:Ja
Stedenbouwkundige vergunning:Ja
Voorkooprecht:Neen
Verkavelingsvergunning van toepassing:Ja
Stedenbouwkundige bestemming:Woongebied
Dagvaarding en herstelvordering:Geen rechterlijke herstelmaatregel of bestuurlijke maatregel opgelegd
Overstromingsgevoelig:Niet meegedeeld
Overstromingsgebied:Niet meegedeeld
Overstromingskans perceel (P-score):A
Overstromingskans gebouw (G-score):A
Erfgoed:Geen beschermd erfgoed
Deze eigendom kan onderhevig zijn aan de renovatieverplichting die door de Vlaamse overheid wordt opgelegd voor residentiële gebouwen. Consulteer voor meer informatie de website van het Vlaams Energie- en Klimaatagentschap via https://www.vlaanderen.be/een-woning-kopen/renovatieverplichting-voor-residentiele-gebouwen

Ligging

Neem vrijblijvend contact op

Wenst u meer informatie of het pand te bezoeken? Contacteer ons vrijblijvend voor meer informatie. 
Wanneer wij uw aanvraag hebben ontvangen zullen wij verder contact met u opnemen. 


U moet akkoord gaan met het privacybeleid van deze website
* Verplicht in te vullen

Chanou Bastiaens

Commercieel medewerker
089 30 88 88
chanou@sterkvastgoedmakelaars.be
Niet gevonden wat u zocht? Schrijf u dan vrijblijvend in en blijf op de hoogte van ons recentste aanbod.
Schrijf u in
Terug naar boven
Sluit menu STERK vastgoedmakelaars