U gebruikt een verouderde internetbrowser.
We raden u aan om de meest recente internetbrowser te installeren voor de beste weergave van deze website.
Een internetbrowser die up to date is, staat ook garant voor veilig surfen.

Keelhoffstraat 21 , 3620 Lanaken
Vraagprijs: € 439.000

Omschrijving

CASCO+ WONING OP EEN ZUIDGERICHT PERCEEL TE NEERHAREN !

CASCO+ WONING OP EEN ZUIDGERICHT PERCEEL TE NEERHAREN !

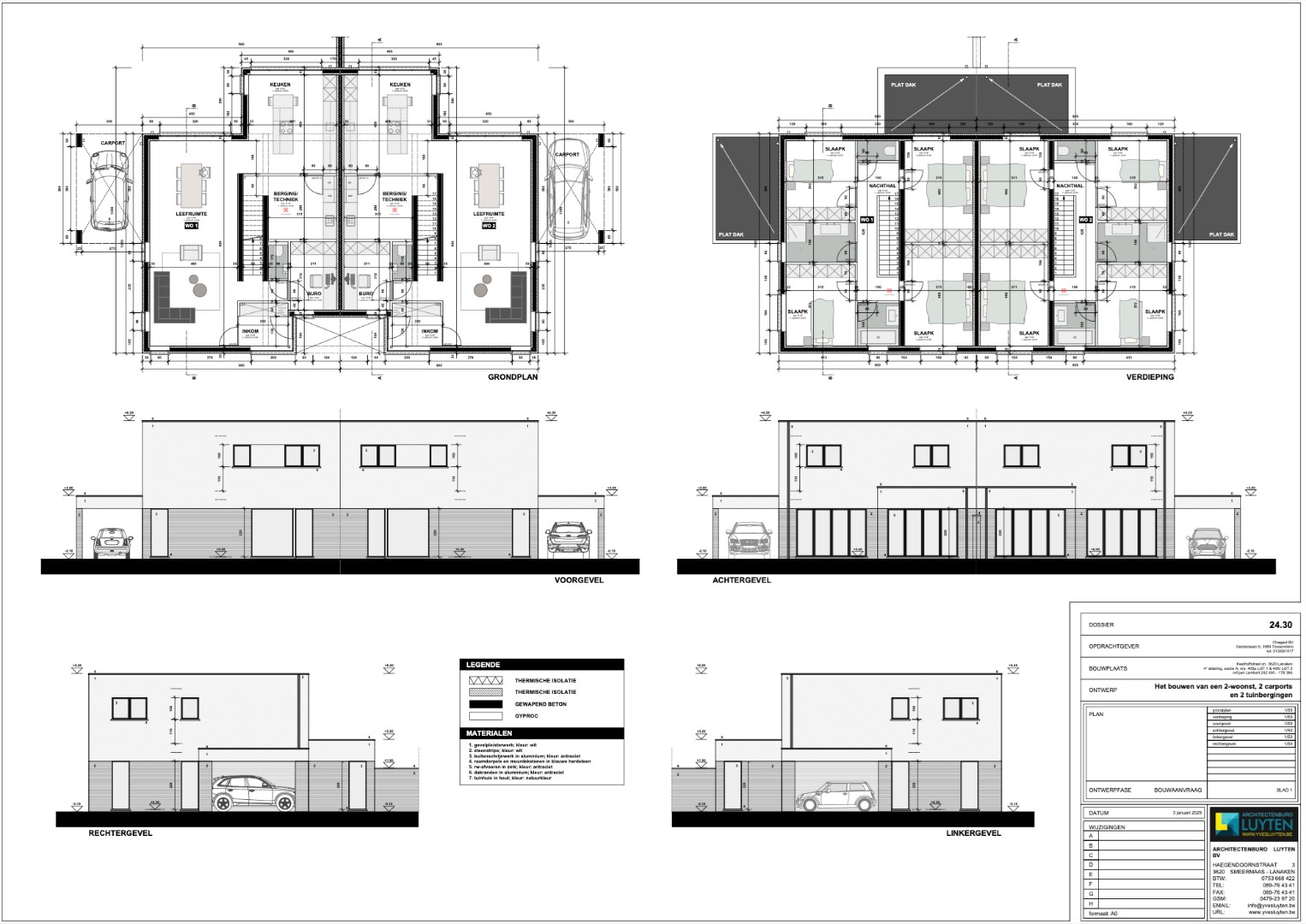
We vinden deze woning met een bewoonbare oppervlakte van 190 m² terug op een perceel van 3a 22ca te Neerharen, deelgemeente van Lanaken. Deze woning biedt een unieke kans voor mensen die op zoek zijn naar een woning dat ze naar hun eigen smaak en wensen kunnen afwerken.
Dankzij deze centrale locatie heeft u een goede bereikbaarheid met zowel het centrum van Lanaken als de omliggende gemeentes Maasmechelen en Zutendaal. Het bruisende centrum van Maastricht is slechts op een klein kwartiertje rijden bereikbaar!

INDELING:

Op het gelijkvloers bevindt zich een ruime en lichtrijke leefruimte met plaats voor een gezellige zithoek en eetruimte. Aansluitend is er een open keuken dewelke uitkijkt op de tuin, ideaal voor wie houdt van een open en verbonden leefomgeving. Verder is er een bureau en voldoende bergruimte voorzien.

De verdieping omvat ruimte voor 4 volwaardige slaapkamers en 2 badkamers. Dankzij de slimme indeling wordt elke vierkante meter optimaal benut, wat zorgt voor een aangenaam en praktisch woongevoel.

De woning beschikt over een zuidgerichte tuin, voorzien van omheining. Verder kan de tuin volledig door de koper worden ingericht naar eigen smaak en wensen. Dankzij de gunstige oriëntatie geniet men hier de hele dag door van een optimale zoninval, wat tal van mogelijkheden biedt voor terras en groenaanleg.
Daarnaast beschikt de woning over een carport en extra parkeermogelijkheid.

De woning zal casco+ opgeleverd worden. Dit wilt zeggen dat de woning wind- en waterdicht opgeleverd zal worden, inclusief alle structurele en technische elementen gaande van de sanitaire en elektrische leidingen, chape, pleisterwerken, centrale verwarming, ventilatie, volledige elektrische installatie en binnenwanden.

Grondaandeel: € 150.000,00 + 12% registratierechten = € 168.000,00
Constructie: € 289.000,00 + 21% BTW = € 349.700,00
TOTAAL = € 517.700,00 + notariskosten

Enkele PLUSPUNTEN van deze woning opgelijst:
+ Toplocatie in het geliefde Neerharen !
+ Kwalitatieve materialen !
+ Inclusief carport !
+ Vergunning voor tuinhuis aanwezig !
+ Optie voor het uitvoeren van meerwerken !
+ Zowel huisnummer 21, als huisnummer 23 te koop !
+ Naar eigen smaak af te werken !

Alle dossierstukken kan u terugvinden onder het tabblad 'downloads'.

Voor een bezoek ter plaatse kan u ons contacteren via info@sterkvastgoedmakelaars.be of bel ons op +32(0)89-308888.


Kenmerken

Algemeen

Adres:Keelhoffstraat 21
Lanaken
Referentie:TK439
Vraagprijs:€ 439.000
Type:Woning
Beschikbaar vanaf:Bij oplevering
Perceeloppervlakte:322 m²
Bewoonbare opp.:190 m²
Type constructie:Traditioneel
Bouwjaar:2025

Indeling

Slaapkamers:4
Badkamers:2
WC:2
Bureau:Ja
Woonkamer:Ja
Keuken:Ja
Berging:Ja
Tuin:Ja
Tuin oriëntatie:Zuid
Tuin kwaliteit:Aan te leggen
Garage:1 (1 plaats)
Garage Types:Carport
Parking:Ja

Comfort

Busknooppunt:Ja - op minder dan 500 m
Winkel:Ja
School:Ja
Kinderopvang:Ja
Bank:Ja
Ontspanning:Ja
Restaurant:Ja
Raamwerk:Aluminium
Dak:Plat dak
Beglazing:Dubbel
Verwarming:Vloerverw. gedeeltelijk, Warmtepomp
Isolatie:Dakisolatie, Muurisolatie, Vloerisolatie
Mech. ventilatie :Ja - C+

Kadastrale gegevens

Kadastrale benaming:Afd 4
Kadastrale Nummers:405N P0000/deel
Kadastrale Oppervlakte:322 m²

Informatieplicht

Energielabel:A
Renovatieplicht:Neen
EPC E-peil:12,00
Stedenbouwkundige vergunning:Ja
Voorkooprecht:Neen
Verkavelingsvergunning van toepassing:Ja
Stedenbouwkundige bestemming:Woongebied
Dagvaarding en herstelvordering:Geen rechterlijke herstelmaatregel of bestuurlijke maatregel opgelegd
Overstromingsgevoelig:Niet meegedeeld
Overstromingsgebied:Niet meegedeeld
Overstromingskans perceel (P-score):A
Overstromingskans gebouw (G-score):A
Erfgoed:Geen beschermd erfgoed

Ligging

Neem vrijblijvend contact op

Wenst u meer informatie of het pand te bezoeken? Contacteer ons vrijblijvend voor meer informatie. 
Wanneer wij uw aanvraag hebben ontvangen zullen wij verder contact met u opnemen. 


U moet akkoord gaan met het privacybeleid van deze website
* Verplicht in te vullen

Chanou Bastiaens

Commercieel medewerker
089 30 88 88
chanou@sterkvastgoedmakelaars.be
Niet gevonden wat u zocht? Schrijf u dan vrijblijvend in en blijf op de hoogte van ons recentste aanbod.
Schrijf u in
Terug naar boven
Sluit menu STERK vastgoedmakelaars