U gebruikt een verouderde internetbrowser.
We raden u aan om de meest recente internetbrowser te installeren voor de beste weergave van deze website.
Een internetbrowser die up to date is, staat ook garant voor veilig surfen.

Nijverheidslaan 139 , 3620 Lanaken
Vraagprijs: € 529.000

Omschrijving

CHARMANTE VILLA MET 5 SLPKS OP EEN GUNSTIGE LOCATIE NABIJ NEDERLAND !

CHARMANTE VILLA MET 5 SLPKS OP EEN GUNSTIGE LOCATIE NABIJ NEDERLAND !

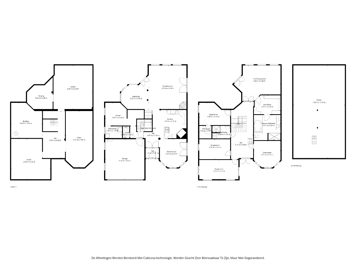
We vinden deze ruime gezinswoning met een bewoonbare oppervlakte van 332 m² terug op een perceel van 8a 90ca te Smeermaas, deelgemeente van Lanaken. De woning geniet van een uitstekende ligging aan de Belgisch-Nederlandse grens, wat zorgt voor een bijzonder vlotte verbinding met Nederland, waaronder Maastricht, en met omliggende gemeenten zoals Lanaken, Zutendaal en Maasmechelen. Winkels, scholen en openbaar vervoer bevinden zich in de onmiddellijke nabijheid, terwijl ook natuur, wandel- en fietsmogelijkheden makkelijk bereikbaar zijn.

INDELING:

Via de inkomhal betreedt men de woning. Vooraan in de woning bevindt zich een afzonderlijke polyvalente ruimte, ideaal als bureau, praktijkruimte, speelkamer of extra zithoek.

De leefruimte is bijzonder lichtrijk dankzij de grote raampartijen en straalt bovendien gezelligheid uit, mede door de aanwezige houtkachel. Aansluitend bevindt zich de eetruimte, dewelke extra indruk maakt door het zeer hoge plafond, wat zorgt voor een open en luchtig gevoel.
Aansluitend bevindt zich de keuken, afgewerkt met een natuurstenen werkblad, gasfornuis en een ingebouwde afwasmachine. Verder beschikt het gelijkvloers over een praktische berging/wasruimte, een gastentoilet en directe toegang tot de garage van circa 32 m².

Op de eerste verdieping bevinden zich maar liefst 5 volwaardige slaapkamers en 2 badkamers. De hoofdslaapkamer beschikt over een eigen inloopkast en riante ensuite badkamer, ingericht met een dubbele lavabo, een ruim ligbad, een douche en een toilet. De tweede badkamer is praktisch ingericht met een lavabo, douche en toilet.
Daarnaast zijn er op deze verdieping 2 balkons aanwezig: één aan de voorzijde van de woning en één aan de achterzijde, toegankelijk via de hoofdslaapkamer.

De woning beschikt over een kelderverdieping met meerdere ruimtes, ideaal als opslag, hobbyruimte, wijnkelder of technische ruimte. De ruime zolderverdieping biedt bijkomende opslagruimte en kan, indien gewenst, verder ingericht worden naar eigen wens.

Rondom de woning ligt een aangename tuin met terras en gazon, waar privacy centraal staat. Het perceel biedt voldoende ruimte om te ontspannen, te spelen of gezellig buiten te vertoeven.

Enkele PLUSPUNTEN van deze woning opgelijst:
+ Toplocatie met een goede bereikbaarheid naar Maastricht !
+ 5 slaapkamers, 2 badkamers !
+ Vloerverwarming !
+ Ventilatiesysteem C+ !
+ Zonnepanelen !
+ Recente CV-ketel (2024) !

Alle dossierstukken kan u terugvinden onder het tabblad 'downloads'.

Voor een bezoek ter plaatse kan u ons contacteren via info@sterkvastgoedmakelaars.be of bel ons op +32(0)89-308888.


Kenmerken

Algemeen

Adres:Nijverheidslaan 139
Lanaken
Referentie:TK448
Vraagprijs:€ 529.000
Type:Woning
Beschikbaar vanaf:Bij akte
Perceeloppervlakte:890 m²
Bewoonbare opp.:332 m²
Type constructie:Traditioneel
Bouwjaar:2013
Algemene staat:Normaal

Indeling

Slaapkamers:5
Badkamers:2
WC:3
Bureau:Ja
Woonkamer:Ja
Keuken:Ja
Berging:Ja
Zolder:Ja
Kelder:Ja
Balkon:Ja
Terras:Ja
Wasplaats:Ja
Tuin:Ja
Tuin oriëntatie:Noord-Oost
Garage:1 (1 plaats)
Parking:3

Comfort

Bushalte:Ja - op minder dan 500 m
Winkel:Ja
School:Ja
Kinderopvang:Ja
Bank:Ja
Ontspanning:Ja
Restaurant:Ja
Raamwerk:PVC
Beglazing:Dubbel
Elektriciteit:Niet conform
Verwarming:Open haard, Vloerverw. gedeeltelijk, Aardgas
Mech. ventilatie :Ja - C+
Zonnepanelen:Ja - 15 stuks

Kadastrale gegevens

Niet geïndexeerd K.I.:€ 1.571
Kadastrale benaming:Afd 1
Kadastrale Nummers:189D P0002
Kadastrale Oppervlakte:890 m²

Informatieplicht

EPC Index:121,00 kWh/(m² jaar)
Energielabel:B
Renovatieplicht:Neen
Stedenbouwkundige vergunning:Ja
Voorkooprecht:Neen
Verkavelingsvergunning van toepassing:Ja
Stedenbouwkundige bestemming:Woongebied
Dagvaarding en herstelvordering:Geen rechterlijke herstelmaatregel of bestuurlijke maatregel opgelegd
Overstromingsgevoelig:Niet meegedeeld
Overstromingsgebied:Niet meegedeeld
Overstromingskans perceel (P-score):B
Overstromingskans gebouw (G-score):A
Erfgoed:Geen beschermd erfgoed

Ligging

Neem vrijblijvend contact op

Wenst u meer informatie of het pand te bezoeken? Contacteer ons vrijblijvend voor meer informatie. 
Wanneer wij uw aanvraag hebben ontvangen zullen wij verder contact met u opnemen. 


U moet akkoord gaan met het privacybeleid van deze website
* Verplicht in te vullen

Chanou Bastiaens

Commercieel medewerker
089 30 88 88
chanou@sterkvastgoedmakelaars.be
Niet gevonden wat u zocht? Schrijf u dan vrijblijvend in en blijf op de hoogte van ons recentste aanbod.
Schrijf u in
Terug naar boven
Sluit menu STERK vastgoedmakelaars