U gebruikt een verouderde internetbrowser.
We raden u aan om de meest recente internetbrowser te installeren voor de beste weergave van deze website.
Een internetbrowser die up to date is, staat ook garant voor veilig surfen.

Koning Albertlaan 176 , 3620 Lanaken
Vraagprijs: € 425.000

Omschrijving

MODERN GERENOVEERDE GEZINSWONING MET 5 SLPKS + 2 BADKAMERS TE LANAKEN !

MODERN GERENOVEERDE GEZINSWONING MET 5 SLPKS + 2 BADKAMERS TE LANAKEN !

We vinden deze woning met een bewoonbare oppervlakte van 257 m² terug op een perceel van 2a 06ca te Lanaken. De woning bevindt zich op een boogscheut van het centrum van Lanaken en het bruisende Maastricht. Ook Maasmechelen, Genk en Bilzen zijn vlot bereikbaar, net zoals de autosnelweg op slechts 10 minuten rijden.

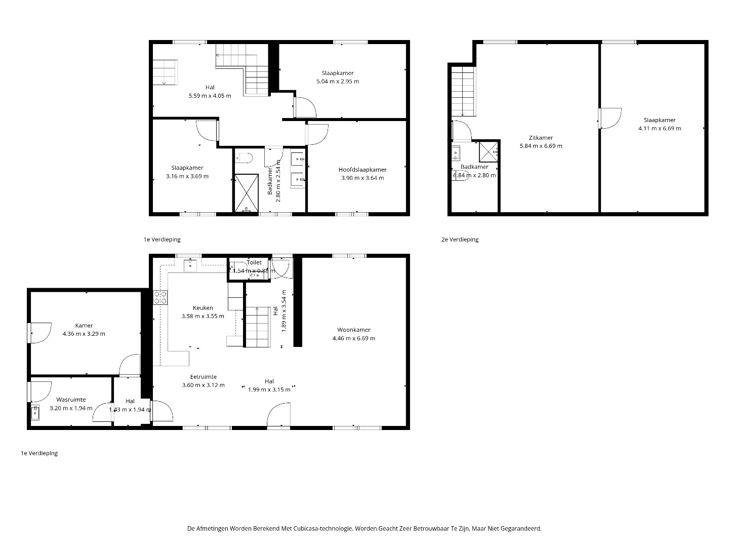
INDELING:

De woning is toegankelijk via zowel de voor- als achterzijde. Bij binnenkomst betreedt men de riante leefruimte waar de zithoek, eetplaats en keuken met elkaar verbonden zijn.
De moderne, volledig uitgeruste keuken is voorzien van een elektrische kookplaat, afwasmachine, oven, magnetron en biedt bovendien voldoende werk- en opbergruimte. Een absolute troef is de slaapkamer op het gelijkvloers., ideaal voor gelijkvloers wonen, bureau, speelkamer of hobbyruimte. Daarnaast is er een praktische berging/wasruimte aanwezig.

Op de eerste verdieping bevinden zich 3 slaapkamers en de eerste badkamer.
De badkamer op deze verdieping is ingericht met een dubbele lavabo, inloopdouche en toilet.

Via de vaste trap in de nachthal, bereikt men de zolderverdieping. Hier bevinden zich nog 2 ruime kamers en een tweede badkamer met wastafel, douche en toilet. Dit maakt de woning perfect voor grotere gezinnen of een masterverdieping met eigen sanitair.

Aan de zijkant van de woning bevindt zich een terras dat nog zal worden afgewerkt met hekwerk, zodat men hier in alle privacy kan genieten.
De overige buitenruimte biedt diverse mogelijkheden, men kan deze naar eigen smaak inrichten als tuinzone of gebruiken als parkeergelegenheid.

Enkele PLUSPUNTEN van deze woning opgelijst:
+ Op wandelafstand van centrum Lanaken !
+ Energiezuinig, EPC label B !
+ 5 slaapkamers, 2 badkamers !
+ Vloerverwarming (gelijkvloers) !
+ Rolluiken !
+ Moderne afwerking !

Alle dossierstukken kan u terugvinden onder het tabblad 'downloads'.

Voor een bezoek ter plaatse kan u ons contacteren via info@sterkvastgoedmakelaars.be of bel ons op +32(0)89-308888.


Kenmerken

Algemeen

Adres:Koning Albertlaan 176
Lanaken
Referentie:TK474
Vraagprijs:€ 425.000
Type:Woning
Beschikbaar vanaf:Bij akte
Perceeloppervlakte:206 m²
Bewoonbare opp.:257 m²
Type constructie:Traditioneel
Bouwjaar:1930
Renovatiejaar:2025
Algemene staat:Instapklaar

Indeling

Slaapkamers:5
Badkamers:2
WC:3
Woonkamer:Ja
Keuken:Ja
Berging:Ja
Zolder:Ja
Terras:Ja
Wasplaats:Ja
Tuin:Ja
Tuin oriëntatie:Zuid
Parking:2

Comfort

Bushalte:Ja - op minder dan 500 m
Winkel:Ja
School:Ja
Kinderopvang:Ja
Bank:Ja
Ontspanning:Ja
Restaurant:Ja
Raamwerk:PVC
Beglazing:Hoogrendementsglas
Verwarming:Airconditioning, Vloerverw. gedeeltelijk, Aardgas
Airco:Ja
Rolluiken:Ja

Kadastrale gegevens

Niet geïndexeerd K.I.:€ 475
Kadastrale benaming:Afd 1
Kadastrale Nummers:431F P0000
Kadastrale Oppervlakte:206 m²

Informatieplicht

EPC Index:127,00 kWh/(m² jaar)
Energielabel:B
Renovatieplicht:Neen
Stedenbouwkundige vergunning:Ja
Voorkooprecht:Neen
Verkavelingsvergunning van toepassing:Ja
Stedenbouwkundige bestemming:Woongebied
Dagvaarding en herstelvordering:Geen rechterlijke herstelmaatregel of bestuurlijke maatregel opgelegd
Overstromingsgevoelig:Niet meegedeeld
Overstromingsgebied:Niet meegedeeld
Overstromingskans perceel (P-score):  D
Overstromingskans gebouw (G-score):  D
Erfgoed:Geen beschermd erfgoed

Ligging

Neem vrijblijvend contact op

Wenst u meer informatie of het pand te bezoeken? Contacteer ons vrijblijvend voor meer informatie. 
Wanneer wij uw aanvraag hebben ontvangen zullen wij verder contact met u opnemen. 


U moet akkoord gaan met het privacybeleid van deze website
* Verplicht in te vullen

Chanou Bastiaens

Commercieel medewerker
089 30 88 88
chanou@sterkvastgoedmakelaars.be
Niet gevonden wat u zocht? Schrijf u dan vrijblijvend in en blijf op de hoogte van ons recentste aanbod.
Schrijf u in
Terug naar boven
Sluit menu STERK vastgoedmakelaars