U gebruikt een verouderde internetbrowser.
We raden u aan om de meest recente internetbrowser te installeren voor de beste weergave van deze website.
Een internetbrowser die up to date is, staat ook garant voor veilig surfen.

Koning Albertlaan 201 , 3620 Lanaken
Vraagprijs: € 289.000

Omschrijving

INSTAPKLARE WONING OP EEN CENTRALE LOCATIE LANAKEN !

INSTAPKLARE WONING OP EEN CENTRALE LOCATIE LANAKEN !

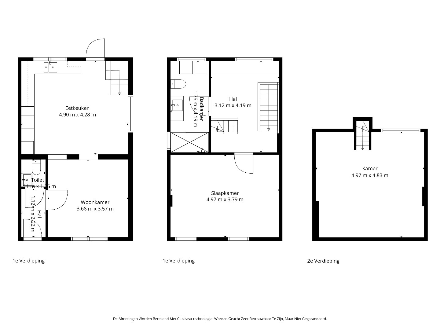
We vinden deze woning woning met een bewoonbare oppervlakte van 108 m² terug op een perceel van 2a 7ca te Lanaken. De woning is gelegen op een vlot bereikbare locatie met voorzieningen, winkels en verbindingswegen in de nabije omgeving. De woning werd grondig gerenoveerd in 2019, waardoor ze een hedendaagse uitstraling en modern wooncomfort biedt.

INDELING:

Via de inkomhal met gastentoilet betreedt men de woning. Vanuit de hal komt men terecht in de gezellige woonkamer, een aangename leefruimte met voldoende plaats voor een zithoek. Aansluitend bevindt zich de moderne eetkeuken, die het hart van de woning vormt. De keuken is uitgerust met een natuurstenen werkblad, inductiekookplaat, ingebouwde koelkast, afwasmachine, combi-oven en stoomoven. Vanuit de keuken is er toegang tot de trap naar de bovenverdiepingen en tot de tuin.

Op de eerste verdieping bevinden zich de nachthal met inbouwkasten, een ruime slaapkamer van circa 19 m², en de badkamer. De badkamer is praktisch ingericht en voorzien van een wastafel, inloopdouche en toilet. Daarnaast is er hier ook ruimte voorzien voor het installeren van een wasmachine en droogkast

Via een vaste trap bereikt men de zolderverdieping. Deze verdieping voorziet een tweede ruime slaapkamer van +/- 24 m². Dankzij de dakramen geniet deze ruimte van aangenaam natuurlijk licht en kan ze perfect dienst doen als extra slaapkamer, hobbyruimte of bureau.

De woning beschikt bovendien over een kelderberging, ideaal voor het stockeren van extra opslag.

Achter de woning bevindt zich een aangename tuin met een terras en gazon. Aan de voorzijde van de woning is er parkeergelegenheid.

Enkele PLUSPUNTEN van deze woning opgelijst:
+ Op wandelafstand van centrum Lanaken !
+ Instapklaar !
+ 2 ruime slaapkamers !
+ Elektriciteit conform !
+ Asbestveilig !
+ Alle faciliteiten in de nabije omgeving !

Alle dossierstukken kan u terugvinden onder het tabblad 'downloads'.

Voor een bezoek ter plaatse kan u ons contacteren via info@sterkvastgoedmakelaars.be of bel ons op +32(0)89-308888.


Kenmerken

Algemeen

Adres:Koning Albertlaan 201
Lanaken
Referentie:TK489
Vraagprijs:€ 289.000
Type:Woning
Beschikbaar vanaf:Bij akte
Perceeloppervlakte:207 m²
Bewoonbare opp.:108 m²
Type constructie:Traditioneel
Bouwjaar:1930
Renovatiejaar:2019
Algemene staat:Instapklaar

Indeling

Slaapkamers:2
Badkamers:1
WC:2
Woonkamer:Ja
Keuken:Ja
Zolder:Ja
Kelder:Ja
Terras:Ja
Tuin:Ja
Tuin oriëntatie:Noord-West
Tuin kwaliteit:Normaal
Parking:Ja

Comfort

Bushalte:Ja - op minder dan 500 m
Winkel:Ja
School:Ja
Kinderopvang:Ja
Bank:Ja
Ontspanning:Ja
Restaurant:Ja
Raamwerk:PVC
Beglazing:Dubbel
Elektriciteit:Conform
Verwarming:Aardgas

Kadastrale gegevens

Niet geïndexeerd K.I.:€ 361
Kadastrale benaming:Huis
Kadastrale Nummers:334A P0000
Kadastrale Oppervlakte:207 m²

Informatieplicht

EPC Index:460,00 kWh/(m² jaar)
Energielabel:E
Renovatieplicht:Ja
Stedenbouwkundige vergunning:Neen
Voorkooprecht:Neen
Verkavelingsvergunning van toepassing:Neen
Stedenbouwkundige bestemming:Woongebied
Dagvaarding en herstelvordering:Geen rechterlijke herstelmaatregel of bestuurlijke maatregel opgelegd
Overstromingsgevoelig:Niet meegedeeld
Overstromingsgebied:Niet meegedeeld
Overstromingskans perceel (P-score):B
Overstromingskans gebouw (G-score):B
Erfgoed:Geen beschermd erfgoed
Deze eigendom kan onderhevig zijn aan de renovatieverplichting die door de Vlaamse overheid wordt opgelegd voor residentiële gebouwen. Consulteer voor meer informatie de website van het Vlaams Energie- en Klimaatagentschap via https://www.vlaanderen.be/een-woning-kopen/renovatieverplichting-voor-residentiele-gebouwen

Ligging

Neem vrijblijvend contact op

Wenst u meer informatie of het pand te bezoeken? Contacteer ons vrijblijvend voor meer informatie. 
Wanneer wij uw aanvraag hebben ontvangen zullen wij verder contact met u opnemen. 


U moet akkoord gaan met het privacybeleid van deze website
* Verplicht in te vullen

Chanou Bastiaens

Commercieel medewerker
089 30 88 88
chanou@sterkvastgoedmakelaars.be
Niet gevonden wat u zocht? Schrijf u dan vrijblijvend in en blijf op de hoogte van ons recentste aanbod.
Schrijf u in
Terug naar boven
Sluit menu STERK vastgoedmakelaars