U gebruikt een verouderde internetbrowser.
We raden u aan om de meest recente internetbrowser te installeren voor de beste weergave van deze website.
Een internetbrowser die up to date is, staat ook garant voor veilig surfen.

Heirbaan 350 , 3621 Lanaken
Vraagprijs: € 449.000

Omschrijving

MODERNE GEZINSWONING MET EPC LABEL A TE REKEM !

MODERNE GEZINSWONING MET EPC LABEL A TE REKEM !

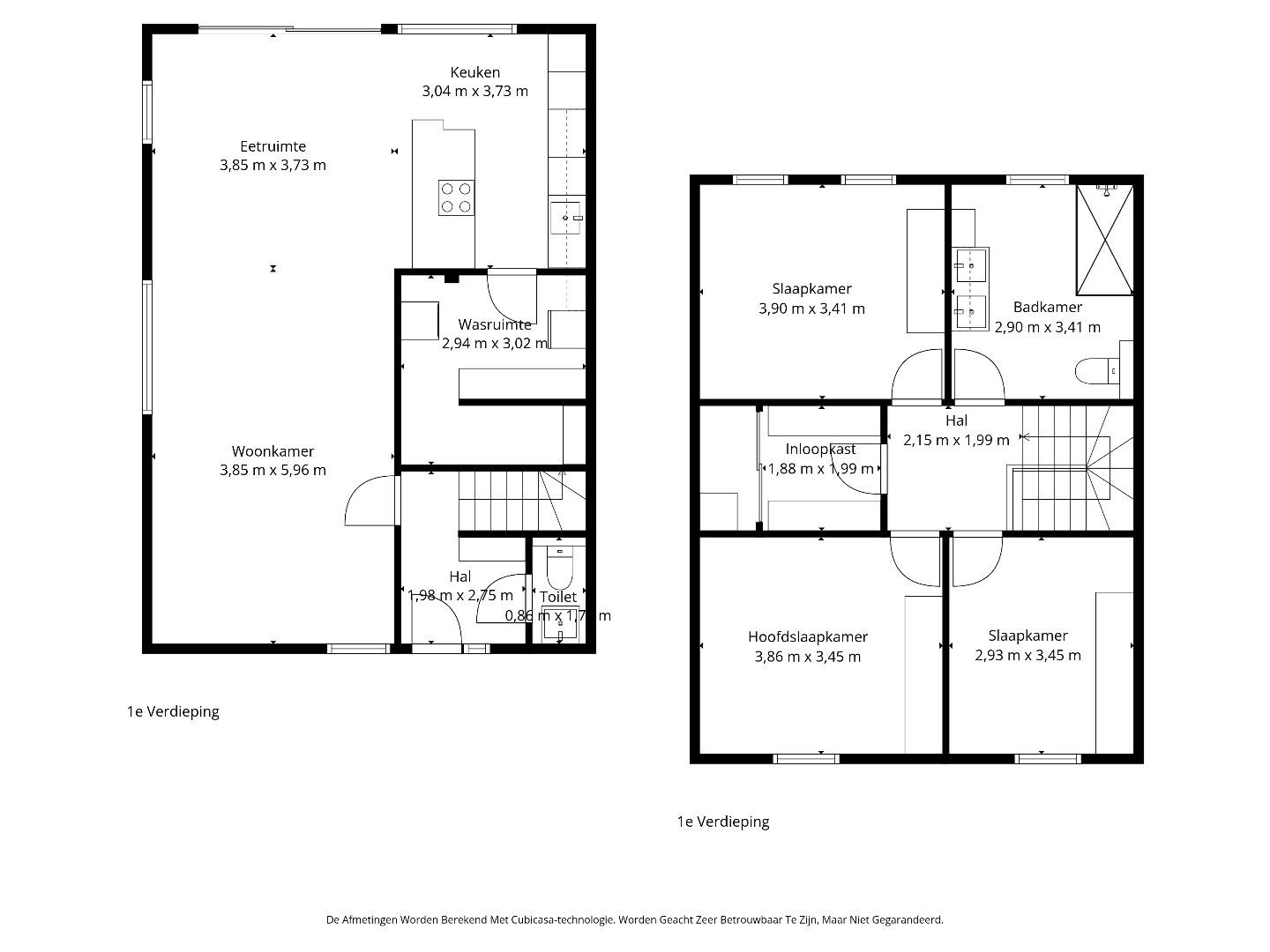
We vinden deze woning met een bewoonbare oppervlakte van 157 m² terug op een perceel van 4a 31 te Rekem-Lanaken. De woning is gelegen op een gegeerde locatie, vlakbij het Nationaal Park Hoge Kempen. Hier geniet men van de nabijheid van uitgestrekte bossen, wandel- en fietsroutes en een prachtige groene omgeving. Tegelijk is het centrum van Lanaken, Maasmechelen en Maastricht vlot bereikbaar, waar men terecht kan voor winkels, scholen, horeca en alle nodige voorzieningen.

INDELING:

Bij het betreden van de woning komt men terecht in een verzorgde inkomhal met gastentoilet. Van hieruit is er toegang tot de lichtrijke leefruimte, waar grote raampartijen zorgen voor een aangename connectie met de tuin. De woon- eetruimte vloeien naadloos in elkaar over en creëren een open en ruimtelijk gevoel. Aansluitend bevindt zich de moderne keuken, uitgerust met alle hedendaagse comfort zoals een inductiekookplaat met geïntegreerde dampkap, ingebouwde koelkast, afwasmachine en combi-oven. Verder is er op het gelijkvloers nog een handige wasruimte/berging voorzien.

Op de eerste verdieping bevinden zich 3 volwaardige slaapkamers, een inloopkast en de badkamer. De badkamer is ruim en voorzien van een dubbele lavabo, inloopdouche en toilet.

Buiten geniet men van een fraai aangelegde tuin met een verzorgd gazon en een overdekt terras. Achteraan de tuin bevindt zich een praktisch tuinhuis, ideaal voor het opbergen van tuinmateriaal, fietsen of ander spullen.
Voor de woning zijn er voldoende parkeermogelijkheden voorzien. Bovendien bestaat de mogelijkheid om een carport of garage op te richten.

Enkele PLUSPUNTEN van deze woning opgelijst:
+ Gelegen in het geliefde Rekem, vlakbij alle voorzieningen !
+ Recente woning, gebruik van degelijke materialen !
+ Energiezuinig, EPC label A !
+ Vloerverwarming !
+ Airco (2x) !
+ Ventilatiesysteem D !
+ Zonnepanelen !
+ Laadpaal !
+ 2% registratierechten bij eerste, eigen gezinswoning !

Alle dossierstukken kan u terugvinden onder het tabblad 'downloads'.

Voor een bezoek ter plaatse kan u ons contacteren via info@sterkvastgoedmakelaars.be of bel ons op +32(0)89-308888.


Kenmerken

Algemeen

Adres:Heirbaan 350
Lanaken
Referentie:TK491
Vraagprijs:€ 449.000
Type:Woning
Beschikbaar vanaf:Bij akte
Perceeloppervlakte:431 m²
Bewoonbare opp.:157 m²
Type constructie:Traditioneel
Bouwjaar:2021
Algemene staat:Instapklaar

Indeling

Slaapkamers:3
Badkamers:1
WC:2
Woonkamer:Ja
Keuken:Ja
Berging:Ja
Tuin:Ja
Tuin oriëntatie:Oost
Tuin kwaliteit:Fraai aangelegd
Parking:4

Comfort

Bushalte:Ja - op minder dan 500 m
Winkel:Ja
School:Ja
Kinderopvang:Ja
Bank:Ja
Ontspanning:Ja
Restaurant:Ja
Raamwerk:Aluminium
Beglazing:Dubbel
Elektriciteit:Conform
Verwarming:Vloerverw. gedeeltelijk, Aardgas
Airco:Ja - 2
Mech. ventilatie :Ja - D
Zonnepanelen:Ja - 14

Kadastrale gegevens

Niet geïndexeerd K.I.:€ 737
Kadastrale benaming:Huis lot 1
Kadastrale Nummers:300X P0000
Kadastrale Oppervlakte:431 m²

Informatieplicht

EPC Index:15,00 kWh/(m² jaar)
Energielabel:A
Renovatieplicht:Neen
EPC E-peil:13,00
Stedenbouwkundige vergunning:Ja
Voorkooprecht:Neen
Verkavelingsvergunning van toepassing:Neen
Stedenbouwkundige bestemming:Woongebied
Dagvaarding en herstelvordering:Geen rechterlijke herstelmaatregel of bestuurlijke maatregel opgelegd
Overstromingsgevoelig:Niet meegedeeld
Overstromingsgebied:Niet meegedeeld
Overstromingskans perceel (P-score):A
Overstromingskans gebouw (G-score):A
Erfgoed:Geen beschermd erfgoed

Ligging

Neem vrijblijvend contact op

Wenst u meer informatie of het pand te bezoeken? Contacteer ons vrijblijvend voor meer informatie. 
Wanneer wij uw aanvraag hebben ontvangen zullen wij verder contact met u opnemen. 


U moet akkoord gaan met het privacybeleid van deze website
* Verplicht in te vullen

Chanou Bastiaens

Commercieel medewerker
089 30 88 88
chanou@sterkvastgoedmakelaars.be
Niet gevonden wat u zocht? Schrijf u dan vrijblijvend in en blijf op de hoogte van ons recentste aanbod.
Schrijf u in
Terug naar boven
Sluit menu STERK vastgoedmakelaars