U gebruikt een verouderde internetbrowser.
We raden u aan om de meest recente internetbrowser te installeren voor de beste weergave van deze website.
Een internetbrowser die up to date is, staat ook garant voor veilig surfen.

Frans Kusterslaan 16 , 3621 Lanaken
Vraagprijs: € 219.000

Omschrijving

OP TE KNAPPEN GEZINSWONING OP EEN GUNSTIGE LOCATIE TE REKEM !

OP TE KNAPPEN GEZINSWONING OP EEN GUNSTIGE LOCATIE TE REKEM !

We vinden deze woning met een bewoonbare oppervlakte van 140 m² terug op een perceel van 2a 21ca te Rekem, deelgemeente van Lanaken. De woning geniet van een vlotte bereikbaarheid met scholen, winkels en openbaar vervoer in de nabije omgeving. Bovendien bevinden belangrijke verbindingswegen zich op korte afstand. Ook natuur- en wandelmogelijkheden zijn ruim aanwezig

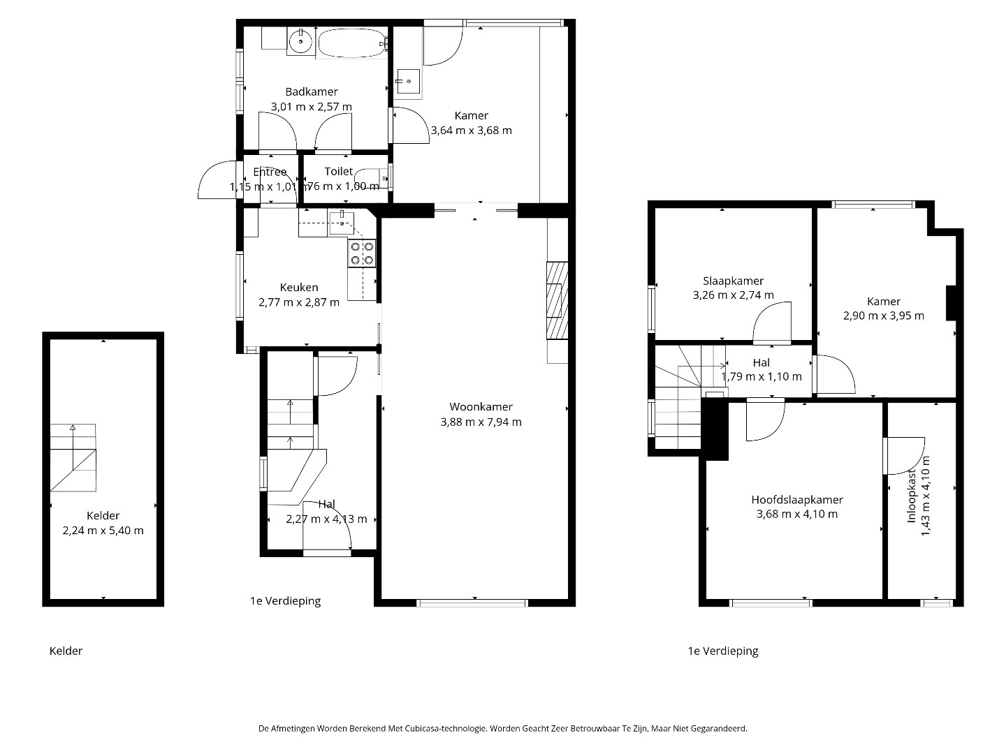
INDELING:

Vanuit de inkomhal bereikt men de lichtrijke leefruimte, die zich uitstrekt over de volledige diepte van de woning. Dankzij de grote raampartijen geniet deze ruimte van een aangename lichtinval. De woonkamer biedt voldoende plaats voor een zithoek en een ruime eetplaats. Aansluitend bevindt zich de keuken, dewelke volledig naar eigen smaak en wensen kan worden ingericht.
Verder beschikt het gelijkvloers over een badkamer, uitgerust met ligbad en lavabo, evenals een apart toilet.

Op de eerste verdieping zijn er 3 slaapkamers aanwezig. De ruime hoofdslaapkamer beschikt over een aansluitende inloopkast. De overige kamers zijn ideaal als slaap-, kinder- of hobbykamer.

De woning is tevens voorzien van een kelderberging en een zolder, bereikbaar via vlizotrap.

De ruime oprit biedt plaats voor meerdere voertuigen en geeft toegang tot de garage achteraan het perceel. De onderhoudsvriendelijke tuin met terras vormt de ideale plek om in alle rust te genieten en kan verder naar eigen smaak worden ingericht.

Enkele PLUSPUNTEN van deze woning opgelijst:
+ Centrale ligging nabij alle voorzieningen !
+ Goede verbinding richting Lanaken, Maastricht en autosnelwegen !
+ 3 volwaardige slaapkamers !
+ Perceel met onderhoudsvriendelijke buitenruimte !
+ Voldoende parking op eigen terrein !
+ Te renoveren naar eigen smaak en wens !

Alle dossierstukken kan u terugvinden onder het tabblad 'downloads'.

Voor een bezoek ter plaatse kan u ons contacteren via info@sterkvastgoedmakelaars.be of bel ons op +32(0)89-308888.


Kenmerken

Algemeen

Adres:Frans Kusterslaan 16
Lanaken
Referentie:TK492
Vraagprijs:€ 219.000
Type:Woning
Beschikbaar vanaf:Bij akte
Perceeloppervlakte:221 m²
Bewoonbare opp.:140 m²
Type constructie:Traditioneel
Bouwjaar:1957
Algemene staat:Te renoveren

Indeling

Slaapkamers:3
Badkamers:1
WC:1
Woonkamer:Ja
Keuken:Ja
Berging:Ja
Zolder:Ja
Kelder:Ja
Terras:Ja
Tuin:Ja
Tuin oriëntatie:Noord
Tuin kwaliteit:Normaal
Garage:1 (1 plaats)
Garage Types:Vrijstaand steen
Parking:3

Comfort

Bushalte:Ja - op minder dan 500 m
Winkel:Ja
School:Ja
Kinderopvang:Ja
Bank:Ja
Ontspanning:Ja
Restaurant:Ja
Raamwerk:Hout
Beglazing:Dubbel
Elektriciteit:Niet conform
Verwarming:Stookolie
Rolluiken:Ja - Deels

Kadastrale gegevens

Niet geïndexeerd K.I.:€ 451
Kadastrale benaming:Huis
Kadastrale Nummers:399G P0000
Kadastrale Oppervlakte:221 m²

Informatieplicht

EPC Index:819,00 kWh/(m² jaar)
Energielabel:F
Renovatieplicht:Ja
Stedenbouwkundige vergunning:Neen
Voorkooprecht:Neen
Verkavelingsvergunning van toepassing:Neen
Stedenbouwkundige bestemming:Woongebied
Dagvaarding en herstelvordering:Geen rechterlijke herstelmaatregel of bestuurlijke maatregel opgelegd
Overstromingsgevoelig:Niet meegedeeld
Overstromingsgebied:Niet meegedeeld
Overstromingskans perceel (P-score):B
Overstromingskans gebouw (G-score):B
Erfgoed:Geen beschermd erfgoed
Deze eigendom kan onderhevig zijn aan de renovatieverplichting die door de Vlaamse overheid wordt opgelegd voor residentiële gebouwen. Consulteer voor meer informatie de website van het Vlaams Energie- en Klimaatagentschap via https://www.vlaanderen.be/een-woning-kopen/renovatieverplichting-voor-residentiele-gebouwen

Ligging

Neem vrijblijvend contact op

Wenst u meer informatie of het pand te bezoeken? Contacteer ons vrijblijvend voor meer informatie. 
Wanneer wij uw aanvraag hebben ontvangen zullen wij verder contact met u opnemen. 


U moet akkoord gaan met het privacybeleid van deze website
* Verplicht in te vullen

Chanou Bastiaens

Commercieel medewerker
089 30 88 88
chanou@sterkvastgoedmakelaars.be
Niet gevonden wat u zocht? Schrijf u dan vrijblijvend in en blijf op de hoogte van ons recentste aanbod.
Schrijf u in
Terug naar boven
Sluit menu STERK vastgoedmakelaars