U gebruikt een verouderde internetbrowser.
We raden u aan om de meest recente internetbrowser te installeren voor de beste weergave van deze website.
Een internetbrowser die up to date is, staat ook garant voor veilig surfen.

Helaas, dit pand is verkocht

3630 Maasmechelen

Omschrijving

IN OPTIE ! HANDELSPAND MET WONING IN HARTJE MAASMECHELEN !

IN OPTIE ! HANDELSPAND MET WONING IN HARTJE MAASMECHELEN !

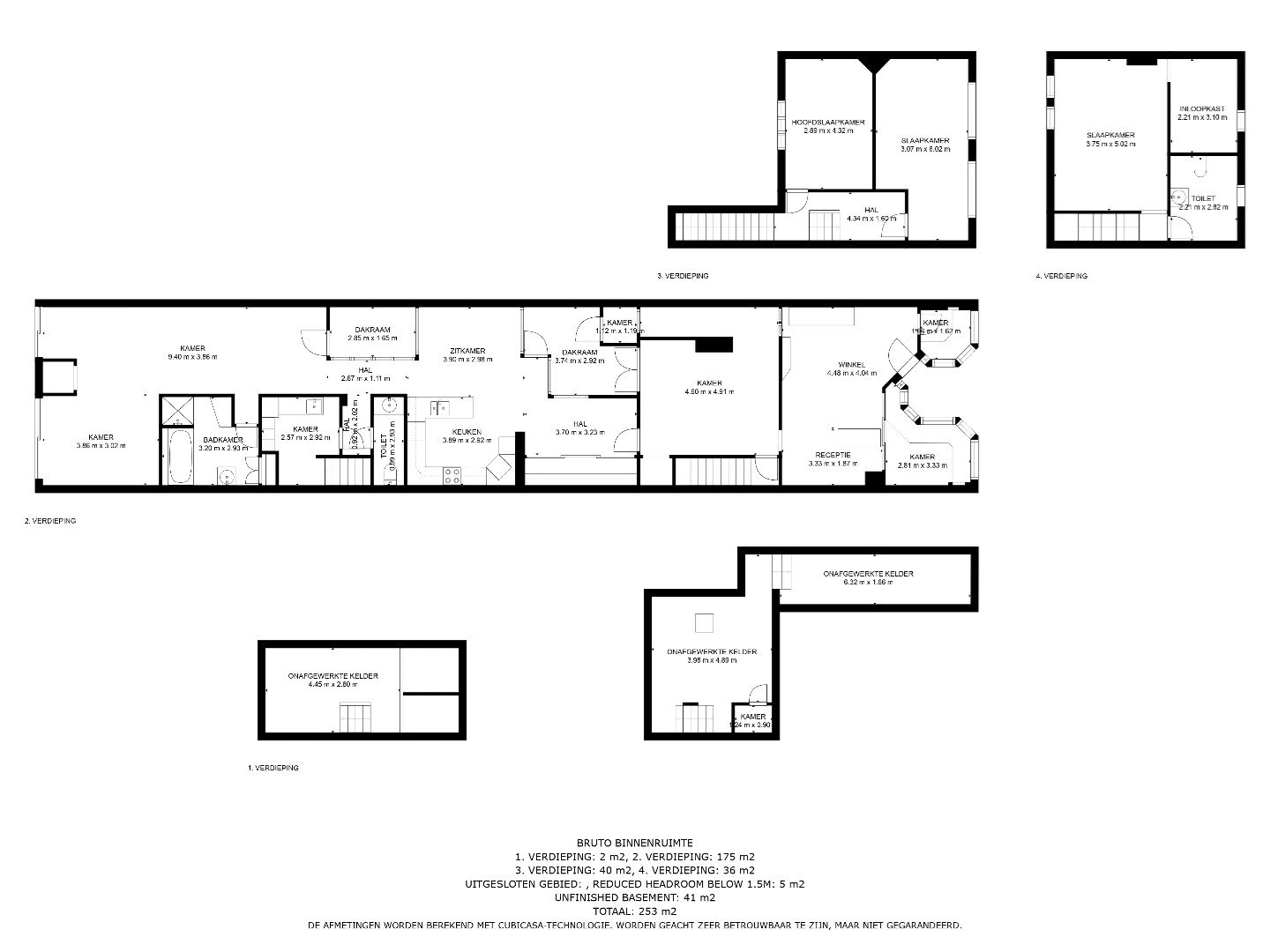
Dit handelspand van bouwjaar 1934 is volledig gerenoveerd in 1990. Het pand is gelegen in een levendige buurt en biedt veel mogelijkheden voor ondernemers. Met een oppervlakte van 253m² is er voldoende ruimte om uw bedrijf uit te bouwen.

Het pand is gemakkelijk bereikbaar en er is voldoende parkeergelegenheid in de buurt. De omgeving biedt tal van winkels, restaurants en andere voorzieningen. Zowel shoppingcenter M2 als Maasmechelen Village, Connecterra en de oprit van de E314 zijn goed bereikbaar.

INDELING

Aan de voorzijde van het gebouw bevindt zich het handelspand. Deze bestaat uit een ruime verkoopruimte met grote vitrine met elektrische rolluik en receptie. Achter de winkel bevindt zich nog een extra kamer.

Via de hal achter het handelspand betreedt u het woongedeelte. Het woongedeelte bestaat uit: een open keuken van het merk Siematic, eetkamer, ruime leefkamer, toilet en badkamer.

Vanuit de leefruimte met gashaard is er toegang naar de tuin. In de tuin is er een buitensauna, bergruimte en garage aanwezig. Het pand kan overigens ook via de tuin aan de Louis Mercierlaan betreden worden.

Op de bovenverdieping bevinden zich 2 slaapkamers. Op de zolderverdieping begeeft zich de derde slaapkamer met een dressing. Daarnaast is er ook een extra badkamer aanwezig.

Er zijn 2 kelders, deze zijn apart toegankelijk. In de kelders is er extra bergruimte mogelijk.

Enkele PLUSPUNTEN van dit pand opgelijst:
+ Toplocatie !
+ Sauna !
+ Alarminstallatie !
+ Groot oppervlakte !
+ Toegang langs de achterkant !
+ Op te frissen, in te richten naar eigen smaak en budget !

Voor meer info of een bezoek ter plaatse kan u ons contacteren via info@sterkvastgoedmakelaars.be of bel ons op +32(0)89-308888.


Niet gevonden wat u zocht? Schrijf u dan vrijblijvend in en blijf op de hoogte van ons recentste aanbod.
Schrijf u in
Terug naar boven
Sluit menu STERK vastgoedmakelaars