U gebruikt een verouderde internetbrowser.
We raden u aan om de meest recente internetbrowser te installeren voor de beste weergave van deze website.
Een internetbrowser die up to date is, staat ook garant voor veilig surfen.

Helaas, dit pand is verkocht

3630 Maasmechelen

Omschrijving

IN OPTIE ! LEVENSBESTENDIGE WONING MET 3 SLPKS OP EEN GUNSTIGE LOCATIE TE MAASMECHELEN !

IN OPTIE ! LEVENSBESTENDIGE WONING MET 3 SLPKS OP EEN GUNSTIGE LOCATIE TE MAASMECHELEN !

We vinden deze open bebouwing met een bewoonbare oppervlakte van maar liefst 442 m² terug op een perceel van 8a 34ca in Maasmechelen. Deze locatie biedt een vlotte verbinding naar het centrum van Maasmechelen, Zutendaal, As en Lanaken. Alle noodzakelijke faciliteiten zoals scholen, winkels, dokters en horecagelegenheden bevinden zich in de directe omgeving.

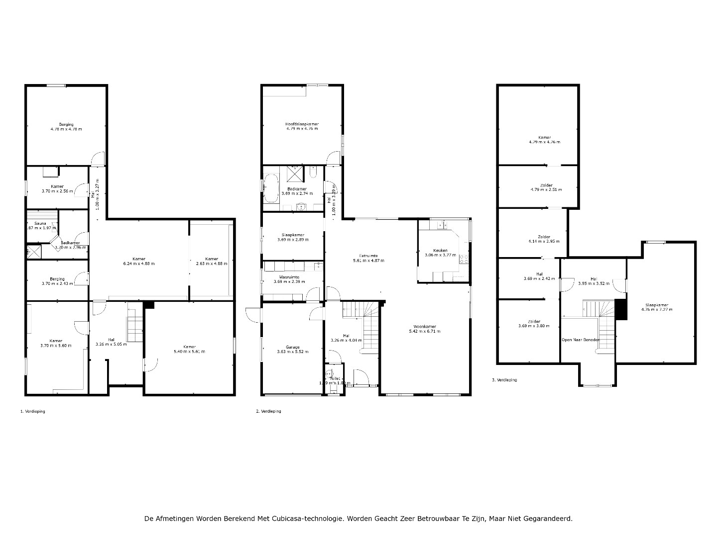
INDELING:

Bij het betreden van de woning komt men terecht in de inkomhal, dewelke toegang biedt tot verschillende ruimtes. De ruime leefkamer vormt het hart van de woning en biedt voldoende plaats voor het inrichten van een gezellige zit- en eetruimte. Aansluitend bevindt zich de keuken, dewelke uitgerust is met een inductiekookplaat, afwasmachine, oven en magnetron. Vanuit de keuken geniet men bovendien van een prachtig uitzicht op de fraai aangelegde tuin.
Verder op deze verdieping zijn er 2 slaapkamers en een badkamer aanwezig. De badkamer is voorzien van een wastafel, ligbad, douche en toilet. Tevens is er een praktische wasruimte en inpandige garage terug te vinden.

Op de zolderverdieping bevindt zich een afgewerkte zolderruimte, waar momenteel een royale slaapkamer is ondergebracht. De extra zolderkamers bieden bijkomende opberg- of uitbreidingsmogelijkheden.

Een bijzondere troef van deze woning is de volledig ingerichte kelderverdieping. Hier vindt men meerdere ruimtes, waaronder een ontspanningsruimte met sauna en een aparte douche, terug. Deze verdieping biedt tal van mogelijkheden, zoals hobbyruimte, fitness of wellness.

De zuid-oostelijk georiënteerde tuin beschikt over een overdekt terras en een verzorgd gazon.

Enkele PLUSPUNTEN van deze woning opgelijst:
+ Toplocatie, centraal doch rustig gelegen te Maasmechelen !
+ Levensbestendig wonen !
+ Energiezuinig, EPC label B !
+ Elektriciteit conform !
+ Volledig onderkelderde kelder met geïmpregneerde muren !
+ Gunstig gelegen op het zuid-oosten !
+ Regenwaterput (toiletten + buitenkraan) !
+ Alle voorzieningen in de directe omgeving !

Alle dossierstukken kan u terugvinden onder het tabblad 'downloads'.

Voor een bezoek ter plaatse kan u ons contacteren via info@sterkvastgoedmakelaars.be of bel ons op +32(0)89-308888.


Niet gevonden wat u zocht? Schrijf u dan vrijblijvend in en blijf op de hoogte van ons recentste aanbod.
Schrijf u in
Terug naar boven
Sluit menu STERK vastgoedmakelaars