U gebruikt een verouderde internetbrowser.
We raden u aan om de meest recente internetbrowser te installeren voor de beste weergave van deze website.
Een internetbrowser die up to date is, staat ook garant voor veilig surfen.

Grotestraat 76 , 3631 Maasmechelen
Vraagprijs: € 495.000

Omschrijving

VERRASSEND RUIME GEZINSWONING MET EEN PRACHTIGE TUIN TE BOORSEM !

VERRASSEND RUIME GEZINSWONING MET EEN PRACHTIGE TUIN TE BOORSEM !

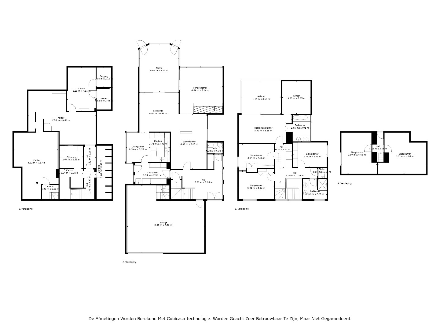
We vinden deze woning met een bewoonbare oppervlakte van 394 m² terug op een perceel van 11a 5ca te Boorsem, deelgemeente van Maasmechelen.
De woning is gelegen op wandelafstand van winkels, scholen en eetgelegenheden en geniet bovendien van een vlotte verbinding naar het centrum van Maasmechelen, Maasmechelen Village en de E314.

INDELING:

Vanuit de inkomhal is er toegang tot de verschillende leefruimtes. De woonkamer is lichtrijk en sluit mooi aan bij de eetkamer en de familiekamer. In de familiekamer zorgt een gezellige houtkachel voor warmte en sfeer. Verder vindt men een veranda, dewelke uitkijkt op de zuid-oostelijk georiënteerde tuin.
De functionele keuken biedt de perfecte kans om naar eigen smaak te moderniseren. Daarnaast is er een praktische wasruimte en een inpandige garage aanwezig. De garage deed vroeger dienst als apotheek, waardoor deze ruimte bijzonder interessant is voor wie een vrij beroep wil uitoefenen of de garage opnieuw commercieel wil benutten.

Op de eerste verdieping vindt men de master bedroom met aangrenzend terras en ensuite badkamer, uitgerust met dubbele lavabo en ligbad. Daarnaast zijn er nog 3 ruime slaapkamers en een tweede badkamer met dubbele lavabo en douche aanwezig op deze verdieping.

De zolder is volledig ingericht met 2 extra slaapkamers, ideaal voor een groot gezin, logees of als hobbyruimte. De woning is bovendien volledig onderkelderd met diverse ruimtes.

De tuin bestaat uit een groot, groen perceel met volwassen bomen en hagen dewelke zorgen voor privacy en rust. Bovendien is er nog een vrijstaande garage aanwezig, wat extra opslagruimte biedt.

Enkele PLUSPUNTEN van deze woning opgelijst:
+ Gelegen op een mooi perceel te Boorsem !
+ Zonnepanelen !
+ 6 slaapkamers !
+ 2 badkamers !
+ Tuin gelegen op het zuid-oosten !
+ Te moderniseren naar eigen smaak en wens !

Alle dossierstukken kan u terugvinden onder het tabblad 'downloads'.

Voor een bezoek ter plaatse kan u ons contacteren via info@sterkvastgoedmakelaars.be of bel ons op +32(0)89-308888.


Kenmerken

Algemeen

Adres:Grotestraat 76
Maasmechelen
Referentie:TK426
Vraagprijs:€ 495.000
Type:Woning
Beschikbaar vanaf:Bij akte
Perceeloppervlakte:1.105 m²
Bewoonbare opp.:394 m²
Type constructie:Traditioneel
Bouwjaar:1977
Algemene staat:Op te frissen

Indeling

Slaapkamers:6
Badkamers:2
WC:2
Woonkamer:Ja
Keuken:Ja
Berging:Ja
Zolder:Ja
Kelder:Ja
Terras:Ja
Wasplaats:Ja
Tuin:Ja
Tuin oriëntatie:Zuid-Oost
Tuin kwaliteit:Fraai aangelegd
Garage:2 (2 plaatsen)
Garage Types:Vrijstaand steen, Inpandig
Parking:3

Comfort

Bushalte:Ja - op minder dan 500 m
Winkel:Ja
School:Ja
Kinderopvang:Ja
Bank:Ja
Ontspanning:Ja
Restaurant:Ja
Raamwerk:Hout
Beglazing:Dubbel
Elektriciteit:Niet conform
Verwarming:Aardgas
Zonnepanelen:Ja - 14 stuks

Kadastrale gegevens

Niet geïndexeerd K.I.:€ 1.785
Kadastrale benaming:Afd 7 Sectie A
Kadastrale Nummers:650M P0000
Kadastrale Oppervlakte:1.105 m²

Informatieplicht

EPC Index:260,00 kWh/(m² jaar)
Energielabel:C
Renovatieplicht:Neen
Stedenbouwkundige vergunning:Ja
Voorkooprecht:Neen
Verkavelingsvergunning van toepassing:Neen
Stedenbouwkundige bestemming:Woongebied met landelijk karakter
Dagvaarding en herstelvordering:Geen rechterlijke herstelmaatregel of bestuurlijke maatregel opgelegd
Overstromingsgevoelig:Niet meegedeeld
Overstromingsgebied:Niet meegedeeld
Overstromingskans perceel (P-score):  D
Overstromingskans gebouw (G-score):A
Erfgoed:Geen beschermd erfgoed

Ligging

Neem vrijblijvend contact op

Wenst u meer informatie of het pand te bezoeken? Contacteer ons vrijblijvend voor meer informatie. 
Wanneer wij uw aanvraag hebben ontvangen zullen wij verder contact met u opnemen. 


U moet akkoord gaan met het privacybeleid van deze website
* Verplicht in te vullen

Chanou Bastiaens

Commercieel medewerker
089 30 88 88
chanou@sterkvastgoedmakelaars.be
Niet gevonden wat u zocht? Schrijf u dan vrijblijvend in en blijf op de hoogte van ons recentste aanbod.
Schrijf u in
Terug naar boven
Sluit menu STERK vastgoedmakelaars