U gebruikt een verouderde internetbrowser.
We raden u aan om de meest recente internetbrowser te installeren voor de beste weergave van deze website.
Een internetbrowser die up to date is, staat ook garant voor veilig surfen.

Schoorstraat 105 , 3630 Maasmechelen
Vraagprijs: € 235.000

Omschrijving

CHARMANTE GEZINSWONING OP EEN RIANT PERCEEL VAN CIRCA 31 ARE !

CHARMANTE GEZINSWONING OP EEN RIANT PERCEEL VAN CIRCA 31 ARE !

We vinden deze woning met een bewoonbare oppervlakte van 154 m² terug op een perceel van 30a 96ca te Uikhoven, deelgemeente van Maasmechelen. De woning geniet van een landelijke ligging vlak bij de Maas, terwijl winkels, scholen en verbindingswegen richting Maastricht en Genk vlot bereikbaar zijn. De omgeving staat bekend om haar uitgebreide wandel- en fietsroutes, natuurgebieden zoals De Maasvallei, en gezellige horecazaken.

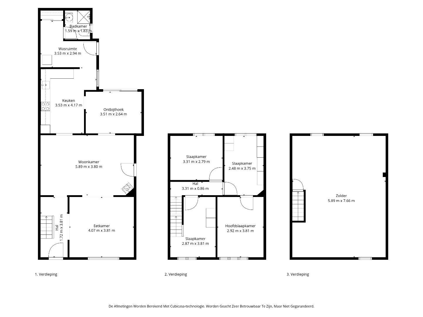
INDELING:

Bij binnenkomst betreedt men de inkomhal, dewelke via een authentieke boogstructuur toegang geeft tot de leefruimte. Aansluitend bevindt zich de praktisch ingerichte keuken, uitgerust met een elektrische kookplaat, ingebouwde koelkast, oven en magnetron. Grenzend aan de keuken bevindt zich een verlengstuk van de leefruimte, een aangename plek met grote raampartijen en zicht op de tuin.
Verder beschikt het gelijkvloers over een wasruimte, alsook een op te knappen badkamer met wastafel, douche en toilet.

De eerste verdieping telt 3 volwaardige slaapkamers. Een vierde kamer biedt toegang tot de zolder via een vaste trap en kan perfect gebruikt worden als dressing, bureau, logeerkamer of extra opbergruimte.

De zolder vormt een ruime, open verdieping. Dankzij de vaste trap en de royale afmetingen is deze verdieping in te richten als hobbyruimte, extra slaapkamer of ruime bergzolder.

Achter de woning strekt zich een indrukwekkend lang perceel uit, volledig in het groen en met volop privacy. De tuin biedt talloze mogelijkheden, waaronder het houden van dieren of het inrichten van meerdere ontspanningszones zoals een terras of speelweide. Op het perceel staat tevens een garage, ideaal voor het stallen van een wagen, fietsen of tuinmateriaal.

*De stedenbouwkundige inlichtingen zijn in aanvraag.

Enkele PLUSPUNTEN van deze woning opgelijst:
+ Rustige gelegen in Uikhoven !
+ Indrukwekkend perceel van 30a 96ca !
+ Uitbreidingsmogelijkheden !
+ Rolluiken !
+ Te renoveren naar eigen smaak en wens !

Alle dossierstukken kan u terugvinden onder het tabblad 'downloads'.

Voor een bezoek ter plaatse kan u ons contacteren via info@sterkvastgoedmakelaars.be of bel ons op +32(0)89-308888.


Kenmerken

Algemeen

Adres:Schoorstraat 105
Maasmechelen
Referentie:TK449
Vraagprijs:€ 235.000
Type:Woning
Beschikbaar vanaf:Bij akte
Perceeloppervlakte:3.096 m²
Bewoonbare opp.:154 m²
Type constructie:Traditioneel
Bouwjaar:1953
Renovatiejaar:1999
Algemene staat:Te renoveren

Indeling

Slaapkamers:3
Badkamers:1
WC:1
Woonkamer:Ja
Keuken:Ja
Berging:Ja
Zolder:Ja
Veranda:Ja
Terras:Ja
Wasplaats:Ja
Tuin:Ja
Tuin oriëntatie:Noord-West
Tuin kwaliteit:Fraai aangelegd
Garage:1 (1 plaats)
Parking:3

Comfort

Bushalte:Ja - op minder dan 500 m
Winkel:Ja
School:Ja
Kinderopvang:Ja
Bank:Ja
Ontspanning:Ja
Restaurant:Ja
Raamwerk:Hout
Beglazing:Enkel, Dubbel
Elektriciteit:Niet conform
Verwarming:Kolenkachel
Rolluiken:Ja

Kadastrale gegevens

Niet geïndexeerd K.I.:€ 522
Kadastrale benaming:Afd 8 Sectie A
Kadastrale Nummers:935M P0000 en 934B P0001
Kadastrale Oppervlakte:3.096 m²

Informatieplicht

EPC Index:844,00 kWh/(m² jaar)
Energielabel:F
Renovatieplicht:Ja
Voorkooprecht:Neen
Dagvaarding en herstelvordering:Geen rechterlijke herstelmaatregel of bestuurlijke maatregel opgelegd
Overstromingsgevoelig:Niet meegedeeld
Overstromingsgebied:Niet meegedeeld
Overstromingskans perceel (P-score):A
Overstromingskans gebouw (G-score):A
Erfgoed:Niet meegedeeld
Deze eigendom kan onderhevig zijn aan de renovatieverplichting die door de Vlaamse overheid wordt opgelegd voor residentiële gebouwen. Consulteer voor meer informatie de website van het Vlaams Energie- en Klimaatagentschap via https://www.vlaanderen.be/een-woning-kopen/renovatieverplichting-voor-residentiele-gebouwen

Ligging

Neem vrijblijvend contact op

Wenst u meer informatie of het pand te bezoeken? Contacteer ons vrijblijvend voor meer informatie. 
Wanneer wij uw aanvraag hebben ontvangen zullen wij verder contact met u opnemen. 


U moet akkoord gaan met het privacybeleid van deze website
* Verplicht in te vullen

Chanou Bastiaens

Commercieel medewerker
089 30 88 88
chanou@sterkvastgoedmakelaars.be
Niet gevonden wat u zocht? Schrijf u dan vrijblijvend in en blijf op de hoogte van ons recentste aanbod.
Schrijf u in
Terug naar boven
Sluit menu STERK vastgoedmakelaars