U gebruikt een verouderde internetbrowser.
We raden u aan om de meest recente internetbrowser te installeren voor de beste weergave van deze website.
Een internetbrowser die up to date is, staat ook garant voor veilig surfen.

Verbindingsweg 52 , 3770 Riemst
Vraagprijs: € 429.000

Omschrijving

INSTAPKLARE GEZINSWONING MET EPC LABEL B TE VAL-MEER !

INSTAPKLARE GEZINSWONING MET EPC LABEL B TE VAL-MEER !

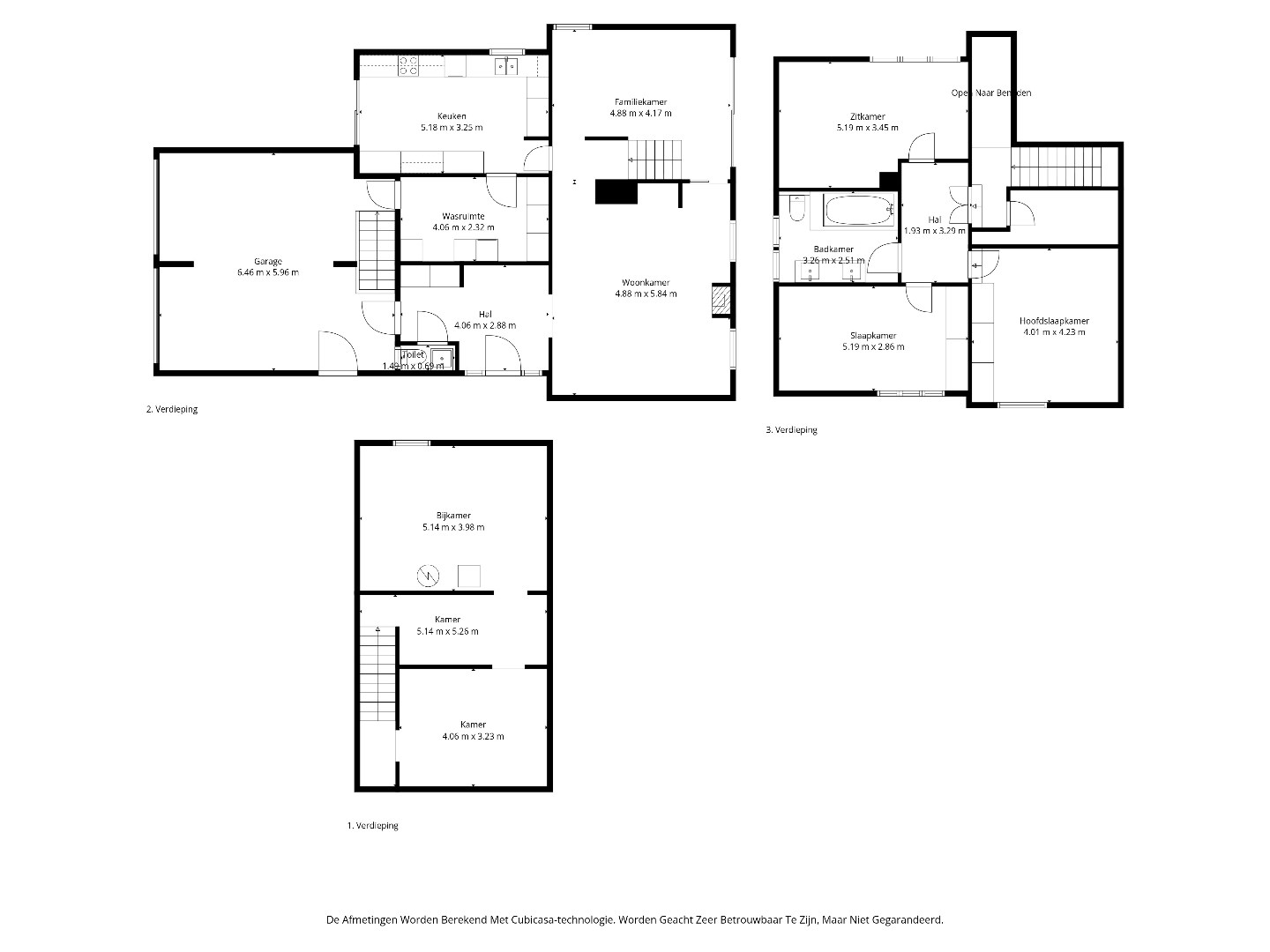
We vinden deze woning met een bewoonbare oppervlakte van 187 m² terug op een perceel van 8a 35ca te Val-Meer, deelgemeente van Riemst. De locatie is bijzonder gunstig, namelijk op korte afstand van scholen, winkels en verbindingswegen richting Tongeren, Bilzen en Maastricht.

INDELING:

Via de inkomhal met gastentoilet, bereikt men de ruime woonkamer met een gezellige bio-ethanolhaard. Het grote raam zorgt voor een aangenaam zicht op de fraai aangelegde tuin. Aansluitend bevindt zich de eetkamer, dewelke toegang biedt tot het overdekte terras.
De keuken is volledig uitgerust met een natuurstenen werkblad, inductiekookplaat, ingebouwde koelkast, oven en een recente afwasmachine (2024). Naast de keuken bevindt zich een praktische wasruimte met aansluiting voor was- en droogkast. Vanuit de inkomhal heeft men ook rechtstreeks toegang tot de inpandige garage, voorzien van 2 elektrische poorten.

Op de eerste verdieping bevinden zich 3 slaapkamers met oppervlaktes tussen de 15 en 18 m². De badkamer is stijlvol ingericht met een dubbele lavabo, bad-douchecombinatie en toilet.

De zolder is bereikbaar via een schuifplaat. Daarnaast beschikt de woning over een kelderberging met kruipkelder, wat zorgt voor extra opbergruimte.

Buiten valt het verzorgde terras aan de voorzijde op, voorzien van een zonneluifel. Achteraan bevindt zich een onderhoudsvriendelijke tuin met overdekt terras en gazon.

Enkele PLUSPUNTEN van deze woning opgelijst:
+ Groene ligging te Val-Meer !
+ EPC label B !
+ Airco (2022) over de volledige oppervlakte !
+ 17 zonnepanelen !
+ Elektriciteit conform !
+ Regenwaterput (toiletten, wasmachine + buitenkraan) !

Alle dossierstukken kan u terugvinden onder het tabblad 'downloads'.

Voor een bezoek ter plaatse kan u ons contacteren via info@sterkvastgoedmakelaars.be of bel ons op +32(0)89-308888.


Kenmerken

Algemeen

Adres:Verbindingsweg 52
Riemst
Referentie:TK435
Vraagprijs:€ 429.000
Type:Woning
Beschikbaar vanaf:Bij akte
Perceeloppervlakte:835 m²
Bewoonbare opp.:187 m²
Type constructie:Traditioneel
Bouwjaar:1980
Algemene staat:Instapklaar

Indeling

Slaapkamers:3
Badkamers:1
WC:2
Woonkamer:Ja
Keuken:Ja
Zolder:Ja
Kelder:Ja
Terras:Ja
Wasplaats:Ja
Tuin:Ja
Tuin oriëntatie:West
Tuin kwaliteit:Normaal
Garage:2 (2 plaatsen)
Garage Types:Inpandig, Elektrische poort
Parking:4

Comfort

Bushalte:Ja - op 500 m tot 1000 m
Winkel:Ja
School:Ja
Kinderopvang:Ja
Bank:Ja
Ontspanning:Ja
Restaurant:Ja
Raamwerk:PVC, Hout, Aluminium
Beglazing:Dubbel
Elektriciteit:Conform
Verwarming:Aardgas
Airco:Ja
Zonnewering:Ja
Zonnepanelen:Ja - 17 stuks

Kadastrale gegevens

Niet geïndexeerd K.I.:€ 867
Kadastrale benaming:Afd 7 Sectie C
Kadastrale Nummers:282C P0000 en 282M P0000
Kadastrale Oppervlakte:835 m²

Informatieplicht

EPC Index:193,00 kWh/(m² jaar)
Energielabel:B
Renovatieplicht:Neen
Stedenbouwkundige vergunning:Ja
Voorkooprecht:Neen
Verkavelingsvergunning van toepassing:Ja
Stedenbouwkundige bestemming:Woongebied met landelijk karakter
Dagvaarding en herstelvordering:Geen rechterlijke herstelmaatregel of bestuurlijke maatregel opgelegd
Overstromingsgevoelig:Niet meegedeeld
Overstromingsgebied:Niet meegedeeld
Overstromingskans perceel (P-score):A
Overstromingskans gebouw (G-score):A
Erfgoed:Geen beschermd erfgoed

Ligging

Neem vrijblijvend contact op

Wenst u meer informatie of het pand te bezoeken? Contacteer ons vrijblijvend voor meer informatie. 
Wanneer wij uw aanvraag hebben ontvangen zullen wij verder contact met u opnemen. 


U moet akkoord gaan met het privacybeleid van deze website
* Verplicht in te vullen

Chanou Bastiaens

Commercieel medewerker
089 30 88 88
chanou@sterkvastgoedmakelaars.be
Niet gevonden wat u zocht? Schrijf u dan vrijblijvend in en blijf op de hoogte van ons recentste aanbod.
Schrijf u in
Terug naar boven
Sluit menu STERK vastgoedmakelaars