U gebruikt een verouderde internetbrowser.
We raden u aan om de meest recente internetbrowser te installeren voor de beste weergave van deze website.
Een internetbrowser die up to date is, staat ook garant voor veilig surfen.

De Moult 2 , 3770 Riemst
Vraagprijs: € 549.000

Omschrijving

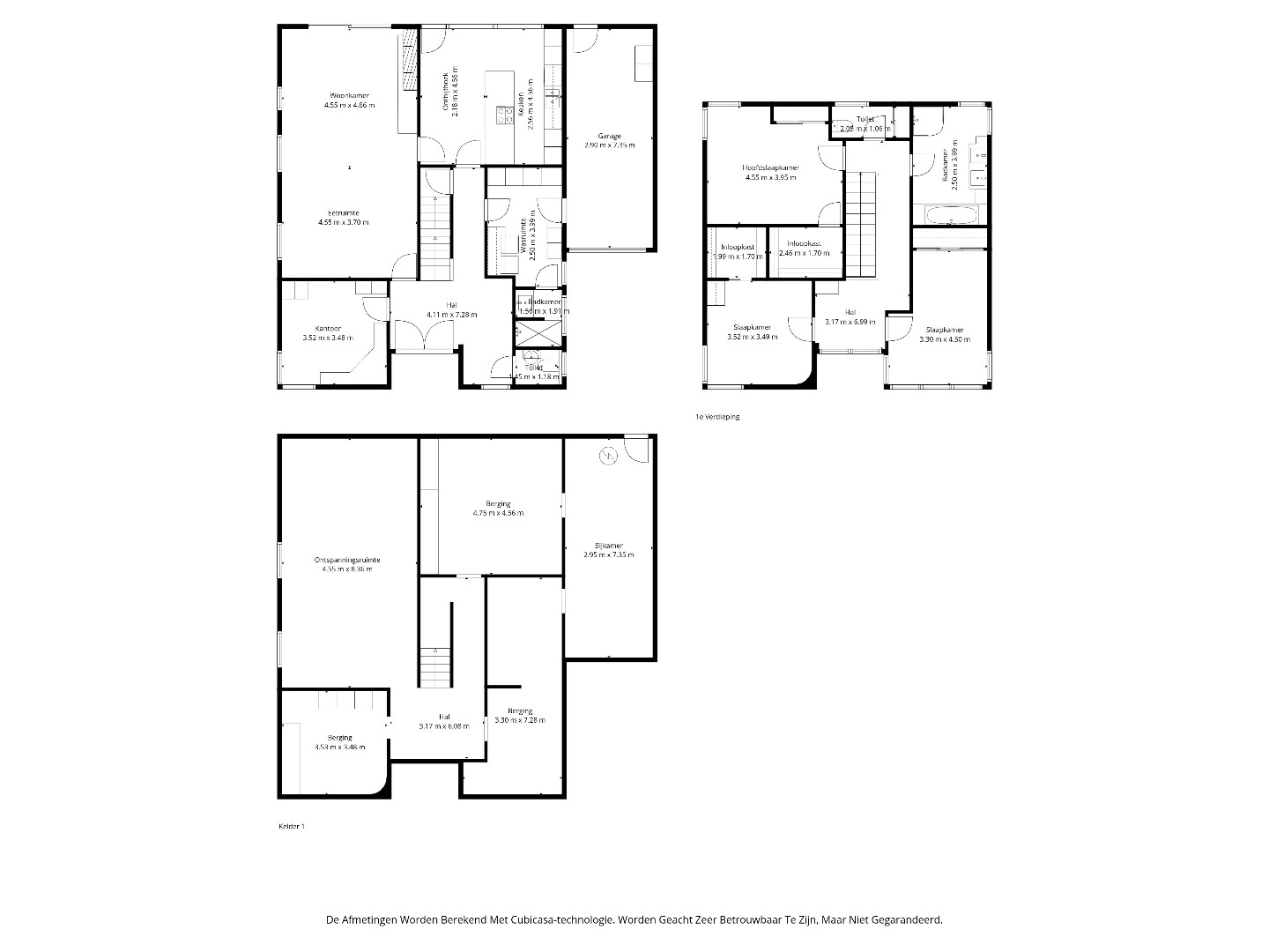
INSTAPKLARE GEZINSWONING MET EEN BEWOONBARE OPP. VAN 390 M² TE ZUSSEN !

INSTAPKLARE GEZINSWONING MET EEN BEWOONBARE OPP. VAN 390 M² TE ZUSSEN !

We vinden deze woning met een bewoonbare oppervlakte van 390 m² terug op een perceel van 5a 81ca in Zichen-Zussen-Bolder, deelgemeente van Riemst. De woning is gelegen in een rustige, residentiële buurt in het hart van de Voerstreek. De omgeving staat bekend om haar groene karakter, talrijke wandelroutes en charmante dorpskernen. Bovendien geniet men van vlotte verbindingen richting Maastricht, Tongeren, en Bilzen en bevinden winkels, scholen en sportfaciliteiten zich vlakbij.

INDELING:

Bij het binnenkomen betreedt men de ruime inkomhal, dewelke toegang geeft tot de verschillende leefruimtes. Aan de voorzijde van de woning bevindt zich een praktische bureauruimte, dewelke ook kan dienen als vierde slaapkamer, speelkamer of hobbyruimte.

De lichte leefruimte biedt voldoende plaats voor het inrichten van een woon- en eetkamer. Vanuit deze kamer is er een prachtig uitzicht op het overdekte terras en de rest van de tuin. De warme vloer en de gashaard zorgen hier voor een gezellige sfeer.
De volledig uitgeruste keuken is voorzien van een natuurstenen werkblad, elektrische kookplaat, oven en een afwasmachine. Bovendien is hier voldoende ruimte voor het inrichten van een extra eetplaats.
Op het gelijkvloers vindt men verder een badkamer met wastafel en douche, en een praktische wasruimte met toegang tot de garage.

Op de eerste verdieping bevinden zich 3 ruime slaapkamers, elk voorzien van een inloop-of inbouwkast.
De badkamer op deze verdieping is ingericht met een dubbele lavabo, ligbad en douche. Het toilet bevindt zich apart.

De woning beschikt over een bijzonder ruime kelderverdieping, volledig betegeld en verwarmd. Dankzij de nette afwerking voelt de kelder als een volwaardig extra woonniveau. Daarnaast is er een zolder, bereikbaar via vlizotrap.

De zuidwest georiënteerde tuin is volledig omheind en fraai aangelegd. Het overdekte terras biedt ruimte voor zowel een loungehoek als een grote eettafel.
Aan het terras grenst het verwarmde zwembad, perfect geïntegreerd in de tuin.

*De stedenbouwkundige inlichtingen zijn in aanvraag.

Enkele PLUSPUNTEN van deze woning opgelijst:
+ Gelegen op een rustige locatie te Zussen !
+ Energiezuinig, EPC label B !
+ Goed onderhouden !
+ Verwarmd zwembad !
+ 3 tot 4 slaapkamers !
+ Rolluiken (deels) !
+ Zonnepanelen met certificaten !

Alle dossierstukken kan u terugvinden onder het tabblad 'downloads'.

Voor een bezoek ter plaatse kan u ons contacteren via info@sterkvastgoedmakelaars.be of bel ons op +32(0)89-308888.


Kenmerken

Algemeen

Adres:De Moult 2
Riemst
Referentie:TK451
Vraagprijs:€ 549.000
Type:Woning
Beschikbaar vanaf:Bij akte
Perceeloppervlakte:581 m²
Bewoonbare opp.:390 m²
Type constructie:Traditioneel
Bouwjaar:2005
Algemene staat:Instapklaar

Indeling

Slaapkamers:3
Badkamers:2
WC:2
Bureau:1
Woonkamer:Ja
Keuken:Ja
Berging:Ja
Zolder:Ja
Kelder:Ja
Terras:Ja
Wasplaats:Ja
Tuin:Ja
Tuin oriëntatie:Zuid-West
Garage:1 (1 plaats)
Parking:3

Comfort

Bushalte:Ja - op 500 m tot 1000 m
Winkel:Ja
School:Ja
Kinderopvang:Ja
Bank:Ja
Ontspanning:Ja
Restaurant:Ja
Raamwerk:Aluminium
Beglazing:Dubbel
Elektriciteit:Conform
Verwarming:Gashaard, Aardgas
Rolluiken:Ja - Deels
Zwembad:Ja - Verwarmd
Zonnepanelen:Ja

Kadastrale gegevens

Niet geïndexeerd K.I.:€ 1.031
Kadastrale benaming:Afd 6 Sectie A
Kadastrale Nummers:720D P0001
Kadastrale Oppervlakte:581 m²

Informatieplicht

EPC Index:127,00 kWh/(m² jaar)
Energielabel:B
Renovatieplicht:Neen
Voorkooprecht:Neen
Stedenbouwkundige bestemming:Woongebied
Dagvaarding en herstelvordering:Geen rechterlijke herstelmaatregel of bestuurlijke maatregel opgelegd
Overstromingsgevoelig:Niet meegedeeld
Overstromingsgebied:Niet meegedeeld
Overstromingskans perceel (P-score):C
Overstromingskans gebouw (G-score):A
Erfgoed:Geen beschermd erfgoed

Ligging

Neem vrijblijvend contact op

Wenst u meer informatie of het pand te bezoeken? Contacteer ons vrijblijvend voor meer informatie. 
Wanneer wij uw aanvraag hebben ontvangen zullen wij verder contact met u opnemen. 


U moet akkoord gaan met het privacybeleid van deze website
* Verplicht in te vullen

Chanou Bastiaens

Commercieel medewerker
089 30 88 88
chanou@sterkvastgoedmakelaars.be
Niet gevonden wat u zocht? Schrijf u dan vrijblijvend in en blijf op de hoogte van ons recentste aanbod.
Schrijf u in
Terug naar boven
Sluit menu STERK vastgoedmakelaars