U gebruikt een verouderde internetbrowser.
We raden u aan om de meest recente internetbrowser te installeren voor de beste weergave van deze website.
Een internetbrowser die up to date is, staat ook garant voor veilig surfen.

Trichterweg 61 , 3690 Zutendaal
Vraagprijs: € 395.000

Omschrijving

GELIJKVLOERSE WONING MET 4 SLPKS, 2 BADKAMERS EN GROTE TUIN TE ZUTENDAAL !

GELIJKVLOERSE WONING MET 4 SLPKS, 2 BADKAMERS EN GROTE TUIN TE ZUTENDAAL !

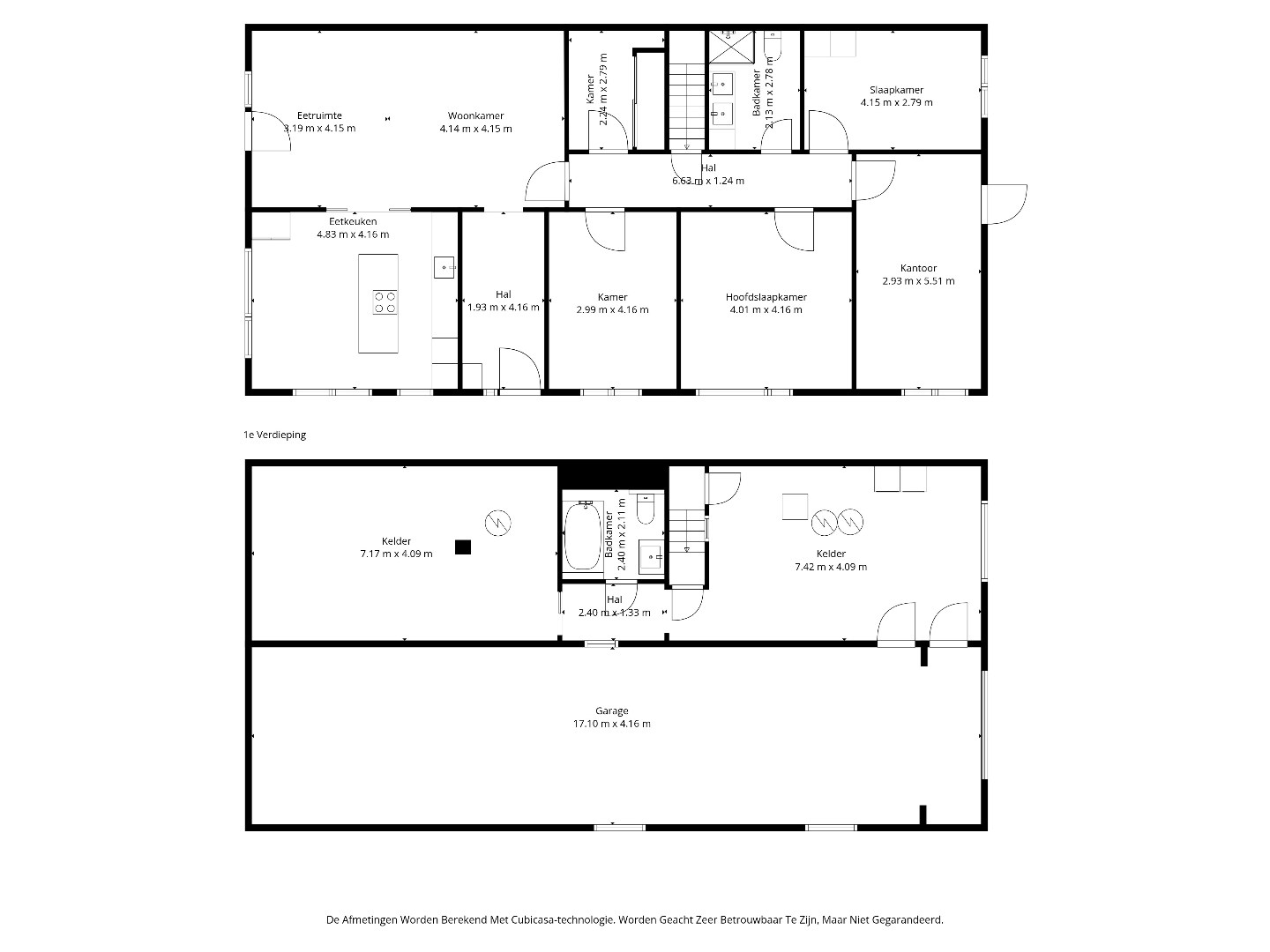
We vinden deze woning met een bewoonbare oppervlakte van 239 m² terug op een perceel van 15a 54ca te Zutendaal. De woning is gelegen in een groene omgeving nabij bosrijke wandel- en fietsroutes. Op korte afstand vindt men lokale winkels, horeca, scholen en verbindingswegen richting Genk, Bilzen, Lanaken en de E314.

INDELING:

Via de inkomhal komt men terecht in de lichtrijke woon- en eetkamer, met een gezellige zithoek en plaats voor een ruime eettafel. Aansluitend bevindt zich de recente keuken (2022), uitgerust met een elektrische kookplaat, afwasmachine en oven.

In de nachthal bevinden zich 4 slaapkamers, de eerste badkamer en een praktische berging.
De slaapkamers hebben een oppervlakte tussen de 12 en 17 m². De badkamer is voorzien van een
dubbele lavabo, douche en toilet.

Onder de woning bevindt zich een uitzonderlijk ruime kelderverdieping. Hier vindt men een enorme garage van circa 17m op 4m met plaats voor meerdere wagens, alsook extra berging en voorraadruimte. In de kelder is een tweede badkamer aanwezig, ingericht met wastafel, ligbad en toilet.

Achteraan de woning bevindt zich een mooi uitgestrekte tuin met veel privacy en groen rondom. Aan de woning grenst een ruim terras met zonneluifel, ideaal om te genieten van zomerse dagen of om schaduw te creëren wanneer gewenst. Verder is er een carport achteraan in de tuin, wat een handige overdekte parkeerplaats of opslagmogelijkheid biedt.

*De stedenbouwkundige inlichtingen zijn in aanvraag.

Enkele PLUSPUNTEN van deze woning opgelijst:
+ Centrale ligging !
+ 4 slaapkamers, 2 badkamers !
+ Recente keuken !
+ Zonneboiler !
+ Rolluiken (deels) !
+ Ruime oprit !
+ Levensbestendig wonen !

Alle dossierstukken kan u terugvinden onder het tabblad 'downloads'.

Voor een bezoek ter plaatse kan u ons contacteren via info@sterkvastgoedmakelaars.be of bel ons op +32(0)89-308888.


Kenmerken

Algemeen

Adres:Trichterweg 61
Zutendaal
Referentie:TK453
Vraagprijs:€ 395.000
Type:Woning
Beschikbaar vanaf:Bij akte
Perceeloppervlakte:1.554 m²
Bewoonbare opp.:239 m²
Type constructie:Traditioneel
Bouwjaar:1972
Renovatiejaar:2018
Algemene staat:Instapklaar

Indeling

Slaapkamers:4
Badkamers:2
WC:2
Woonkamer:Ja
Keuken:Ja
Berging:Ja
Kelder:Ja
Terras:Ja
Tuin:Ja
Tuin oriëntatie:Noord-Oost
Garage:2 (3 plaatsen)
Garage Types:Carport, Inpandig
Parking:5
Parking Types:Privé

Comfort

Busknooppunt:Ja - op minder dan 500 m
Winkel:Ja
School:Ja
Kinderopvang:Ja
Bank:Ja
Ontspanning:Ja
Restaurant:Ja
Raamwerk:PVC
Beglazing:Dubbel
Elektriciteit:Conform
Verwarming:Aardgas, Stookolie
Rolluiken:Ja - Deels
Zonnewering:Ja

Kadastrale gegevens

Niet geïndexeerd K.I.:€ 1.095
Kadastrale benaming:Afd 1 Sectie A
Kadastrale Nummers:497P P0000
Kadastrale Oppervlakte:1.554 m²

Informatieplicht

EPC Index:250,00 kWh/(m² jaar)
Energielabel:C
Renovatieplicht:Neen
Voorkooprecht:Neen
Stedenbouwkundige bestemming:Woongebied
Dagvaarding en herstelvordering:Geen rechterlijke herstelmaatregel of bestuurlijke maatregel opgelegd
Overstromingsgevoelig:Niet meegedeeld
Overstromingsgebied:Niet meegedeeld
Overstromingskans perceel (P-score):A
Overstromingskans gebouw (G-score):A
Erfgoed:Geen beschermd erfgoed

Ligging

Neem vrijblijvend contact op

Wenst u meer informatie of het pand te bezoeken? Contacteer ons vrijblijvend voor meer informatie. 
Wanneer wij uw aanvraag hebben ontvangen zullen wij verder contact met u opnemen. 


U moet akkoord gaan met het privacybeleid van deze website
* Verplicht in te vullen

Chanou Bastiaens

Commercieel medewerker
089 30 88 88
chanou@sterkvastgoedmakelaars.be
Niet gevonden wat u zocht? Schrijf u dan vrijblijvend in en blijf op de hoogte van ons recentste aanbod.
Schrijf u in
Terug naar boven
Sluit menu STERK vastgoedmakelaars